Istra, Pula: Dvosoban stan s lođom
Šijana, Pula
199.000€
3 372 €/m2
Tip
Apartman
Površina
59 m2
Struktura
3
Detalji
- Tip
- Apartman
- Struktura
- 3
- Cijena
- 199.000€
- Površina
- 59 m2 (3 372 €/m2)
- Kat
- 2
- Parkirno mjesto
- Da
- Ažuriran
- 17.04.2026
- ID
- 106468
Opis
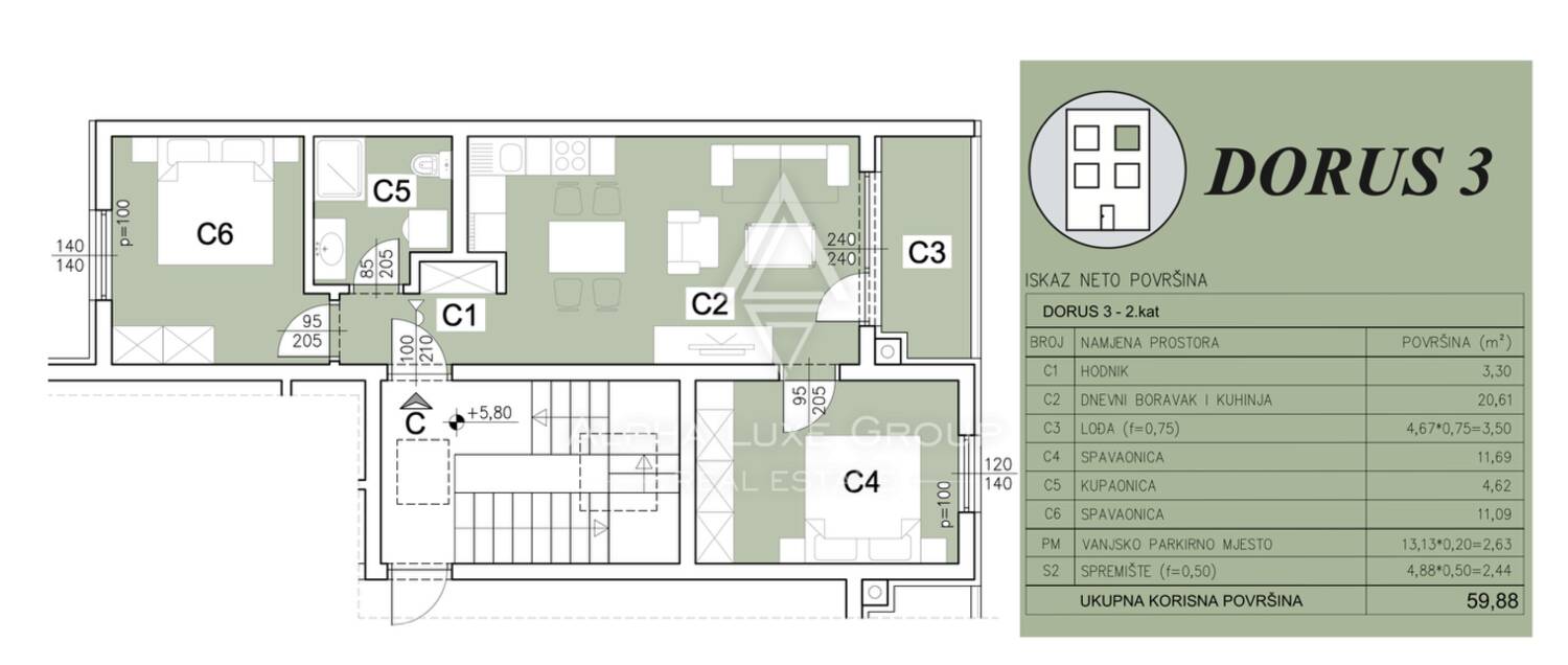
Ovaj moderno koncipiran stan nalazi se na drugom katu suvremene stambene zgrade te nudi ukupnu neto površinu od 59,88 m², uključujući lođu, vanjsko parkirno mjesto i privatno spremište.
Raspored uključuje svijetao i ugodan dnevni boravak povezan s kuhinjom i blagovaonicom, čime se dobiva funkcionalan open space idealan za svakodnevni život. Nekretnina se sastoji od dvije spavaće sobe, kupaonice i hodnika, pažljivo raspoređenih kako bi se maksimalno iskoristio prostor i osigurala udobnost. Lođa pruža ugodan vanjski prostor, savršen za opuštanje i boravak na svježem zraku.
U cijenu su uključeni vanjsko parkirno mjesto i spremište u prizemlju zgrade, što dodatno povećava praktičnost i vrijednost nekretnine. Vlasništvo je uredno i potpuno registrirano, što jamči sigurnu kupoprodaju.
Poreč je jedan od najtraženijih obalnih gradova u Istri, poznat po prekrasnim plažama, razvijenoj infrastrukturi i živahnom načinu života. Lokacija nudi izniman investicijski potencijal, bilo za cjelogodišnje stanovanje ili kao turističku nekretninu, uz blizinu svih sadržaja, restorana i Jadranskog mora.
Cijena uključuje PDV, a kupac ne plaća porez na promet nekretnina.
Vaše zadovoljstvo je naša misija. Veselimo se budućoj suradnji!
Razgledavanje nekretnine moguće je isključivo uz prethodno potpisan ugovor o posredovanju, sukladno Zakonu o posredovanju u prometu nekretnina.
Posrednička provizija iznosi 3% + PDV i plaća se prilikom sklapanja p
Kontakt info
- Agencija
-
ALPHA LUXE GROUP d.o.o.
- Kontakt osoba
- Marijana Budimir
- Telefon 1
- + 385 52 204... Prikaži broj
- Telefon 2
- + 385 95 363 ... Prikaži broj
- Adresa
- Ul. Mate Vlašića 17
- Poreč, Hrvatska
Slične nekretnine
Istra, Pula: Dvosoban stan s lođom
- 199.000€ 60 m2
Istra, Pula: Dvosoban stan s lođom
- 199.000€ 60 m2
Istra, Pula: Dvosoban stan s garažom
- 233.000€ 71 m2
Istra, Poreč: Moderan dvosoban stan
- 238.000€ 60 m2
Istra, Pula: Dvosoban stan s garažom
- 238.000€ 73 m2
Istra, Pula: Dvosoban stan s garažom
- 238.000€ 73 m2