Kvalitetna novogradnja na mirnoj lokaciji - 2027g. gradnja
Šikići, Pula
161.000€
3 354 €/m2
Tip
Stan
Površina
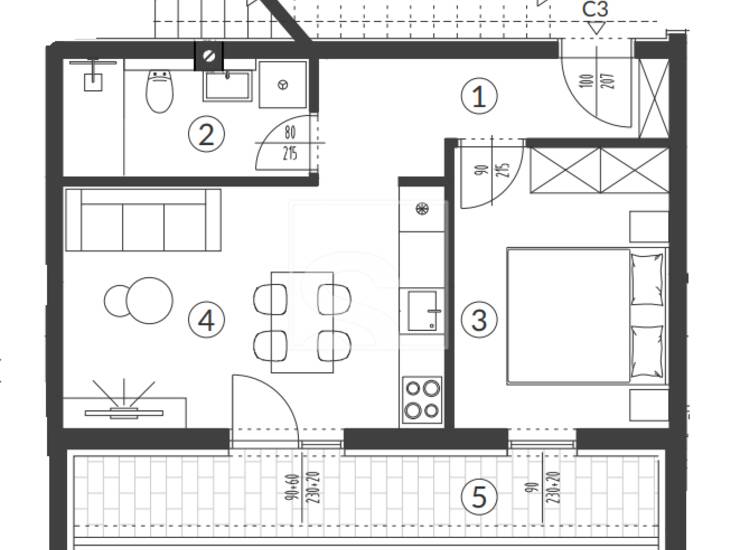
48 m2
Struktura
2
Detalji
- Tip
- Stan
- Struktura
- 2
- Cijena
- 161.000€
- Površina
- 48 m2 (3 354 €/m2)
- Kat
- Prizemlje
- Terasa
- Da
- Udaljenost od mora
- 4800m
- Parkirno mjesto
- Da
- Ažuriran
- 22.05.2026
- ID
- 102909
Opis
IDEALAN PROJEKT ZA ŽIVOT - ŠIKIĆI - NOVOGRADNJA NA SAVRŠENOJ LOKACIJI - VISOKO KVALITETNA IZVEDBA I GRADNJA!
Šikići su prigradsko naselje u Puli koje administrativno pripada mjesnom odboru Busoler. Sa sjevera graniči s naseljem "Monte Turko", s istoka graniči uz rub općine Medulin i Ližnjan, s juga s naseljem "Valdebek" te sa zapada s naseljem "Škatari" sva navedena naselja nalaze se u sklopu grada Pule! Mjesto je na idealnoj poziciji, između dvije zaobilaznice, niže sa "gradskom" zaobilaznicom koja spaja sva naselja u gradu i sami centar te višlje uz "vanjsku" zaobilaznicu koja se proteže od izlaza sa "Y" (autoceste) pa sve do Premanture spajajući tako sva turistička mjesta (Ližnjan, Medulin, Pomer, Banjole, Premanturu, itd..).
U već navedenom naselju, smjestio se ovaj novi projekt visokokvalitetne novogradnje! Projekt će se sastojati od ukupno 4 zgrade, od kojih će tri biti s po 15 stambenih jedinica te zadnja, četvrta, s 13 stambenih jedinica. Projektiranje, dizajn i arhitekturu potpisuje najveći projektantski studio u Puli koji djeluje i puno šire te ih krasi mnoštvo izvanrednih projekata! Koncept zgrada osmišljen je kao moderne dvokatnice sastavljene od stanova u prizemlju s dijelom dvorišta te stanovima na 1. i 2. katu s prostranim terasama.
Stanovi su predviđeni kao veći komforni jednosobni te manji dvosobni.
S obzirom na to da se radi o jednom od najvećih i stopostotno sigurnom investitoru, gradnja će biti shodna s time. Ka
Kontakt info
- Agencija
-
SevenHills
- Reg. posrednika br.
- 191/2021
- Kontakt osoba
- Claudio Mezzalira
- Telefon 1
- 099285... Prikaži broj
- Adresa
- Šišanska cesta 16
- Pula, Hrvatska
Slične nekretnine
Istra, Pula - Šikići, moderna novogradnja, 1s+db
- 161.000€ 48 m2
Istra, Pula - Šikići, moderna novogradnja, 1s+db
- 161.000€ 47 m2
Istra, Pula - Šikići, moderna novogradnja, 1s+db
- 161.000€ 45 m2
Istra, Pula - Šikići, moderna novogradnja, 1s+db
- 160.000€ 48 m2
Šikići - stan u prizemlju s dvorištem - zgrada C
- 159.800€ 48 m2
Novogradnja Šikići - stan u prizemlju
- 159.800€ 48 m2
ISTRA, PULA - Stan u novogradnji s vrtom
- 163.000€ 53 m2
Istra, Pula - Šikići, moderna novogradnja, 1s+db
- 159.000€ 48 m2
Istra, Pula - Šikići, moderna novogradnja, 1s+db
- 159.000€ 47 m2
Stan u novogradnji - gradnja 2027g. - prizemlje
- 158.800€ 47 m2
ISTRA, PULA - Stan u novogradnji
- 158.100€ 45 m2
ISTRA, PULA - Stan u novogradnji s terasom
- 158.100€ 45 m2