ISTRA, PULA Stan s vrtom na odličnoj lokaciji! NOVOGRADNJA!
Valmade, Pula
195.000€
3 611 €/m2
Tip
Stan
Površina
54 m2
Struktura
2
Detalji
- Tip
- Stan
- Struktura
- 2
- Cijena
- 195.000€
- Površina
- 54 m2 (3 611 €/m2)
- Površina zemljišta
- 87
- Kat
- Prizemlje
- Grijanje
- Sustav grijanja, klimatizacije i ventilacije
- Terasa
- Da
- Parkirno mjesto
- Da
- Ažuriran
- 19.12.2025
- ID
- 98024
Opis
ISTRA, PULA Stan s vrtom na odličnoj lokaciji! NOVOGRADNJA!
U ponudi DUX nekretnina nudimo stan s vrtom u neposrednoj blizini centra!
Radi se o novom stambenom kompleksu ali predmetna zgrada ima sveukupno 3 stambene jedinice.
LOKACIJA:
Na pješačkoj udaljenosti od trgovine, teretane , kafića i restorana tako da su vam svi sadržaji osigurani zaista blizu dok je strogi centar grada udaljen 15 minuta hoda!
Završetak radova kraj 2026. godine.
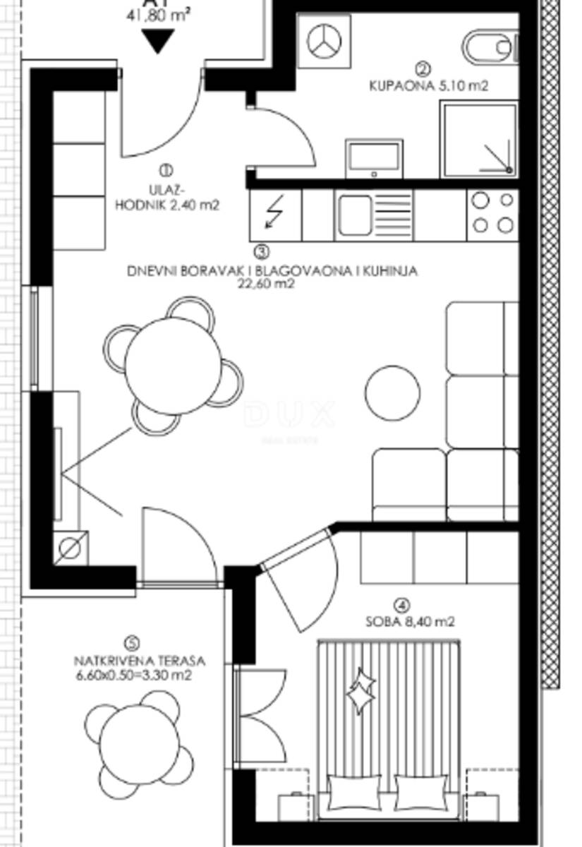
Predmetni stan nudi 41,80 m2 stambenog prostora te mu pripada parkirno mjesto (2,75 m2- prema koeficijentu) , spremište 1,12 m2 te vrt od 87m2 mjesta sveukupne površine 54,37m2
Oprema:
Klima uređaji u dnevnom boravku i svim spavaćim sobama
Električno podno grijanje u dnevnom boravaku, blagovaonici, kuhinji, hodniku i kupaonici
U spavaćim sobama laminat, ostatak stana keramičke pločice
PVC stolarija antracit boje s komarnicima
Električni podizači roleta iznad staklene stijene u dnevnom boravku
Faze plaćanja:
Kapara 10%
Roh bau 50%
Završni radovi 20%
Uporabna dozvola 20%
Kupci oslobođeni poreza na promet nekretnina jer je prodavatelj pravna osoba.
Za više informacija slobodno nas kontaktirajte!
ID KOD AGENCIJE: 44245
Ivana Škoro
Agent s licencom
Mob: + 385 95 388 ... Prikaži broj
Tel: + 385 99 640 ... Prikaži broj
E-mail: ivana@dux-istra.com
www.dux-istra.com
Kontakt info
- Agencija
-
DUX NEKRETNINE
- Kontakt osoba
- Dux Nekretnine
- Telefon 1
- + 385 51 518... Prikaži broj
- Telefon 2
- + 385 91 480 ... Prikaži broj
- Adresa
- Tizianova 8
- Rijeka, Hrvatska
Slične nekretnine
PULA, ODLIČAN STAN NA 1. KATU (Zgrada B stan A2)
- 203.200€ 55 m2
PULA, KOMPAKTAN STAN U PRIZEMLJU ZGRADE (Zgrada B stan A1)
- 203.200€ 48 m2
ISTRA, PULA - Stan 60m2 na mirnoj lokaciji!
- 180.000€ 60 m2
Valmade - Stan 54 m2, 2 sobe, parking
- 163.000€ 54 m2
ISTRA, PULA - Dvosobni stan s konobom
- 259.200€ 99 m2
Istra, Pula, luksuzni dizajnerski stan, 2s+db, lođa i balkon
- 280.000€ 65 m2
ISTRA, PULA - Stan 2S+DB u blizini centra! NOVOGRADNJA!
- 295.000€ 92 m2