Rab-luksuzan stan na prvom katu samo 50m od mora
Barbat na Rabu, Rab
467.000€
3 891 €/m2
Tip
Stan
Površina
120 m2
Struktura
3
Detalji
- Tip
- Stan
- Struktura
- 3
- Cijena
- 467.000€
- Površina
- 120 m2 (3 891 €/m2)
- Kat
- 1
- Grijanje
- Sustav grijanja, klimatizacije i ventilacije
- Terasa
- Da
- Udaljenost od mora
- 50m
- Ažuriran
- 22.01.2026
- ID
- 35689
Opis
Apartman se nalazi na odličnoj lokaciji na otoku Rabu, samo 50 metara udaljen od mora i plaže. To pruža prekrasan pogled na more i blizinu obalne šetnice, grada, taxi brodica i trajekta.
Projekt se ističe visokom kvalitetom gradnje i vrhunskim materijalima.
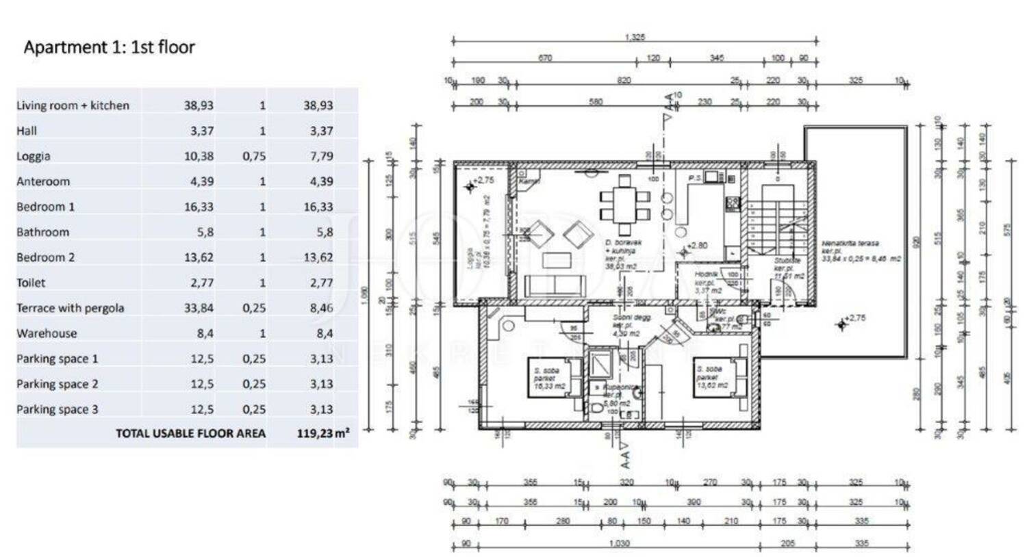
Apartman se nalazi na 1. katu i proteže se na 120 četvornih metara stambene površine. Ima dvije spavaće sobe, kuhinju s dnevnim boravkom, kupaonicu, zaseban WC, loggiu s pogledom na more, spremište i čak 2 parkirna mjesta.
Apartman će biti opremljen visokokvalitetnom PVC stolarijom s troslojnim staklom, klima uređajem i pripremom za električno grijanje. Podovi će biti obloženi kvalitetnom keramikom i vinil oblogama.
Stan je izgrađen s pažljivim dizajnom i pruža udobnost, funkcionalnost i suvremeni stil života, što ga čini privlačnim za ljubitelje mora, sunca i otoka.
ID KOD AGENCIJE: 5253
Ana Šutalo, bcc.oec
Agent s licencom
Mob: 097625... Prikaži broj
Tel: 05140... Prikaži broj
E-mail: ana@joda-nekretnine.hr
www.joda-nekretnine.hr
Kontakt info
- Agencija
-
JO-DA NEKRETNINE d.o.o.
- Reg. posrednika br.
- 040220748
- Kontakt osoba
- Josip Šikić
- Telefon 1
- 091890... Prikaži broj
- Telefon 2
- 05140... Prikaži broj
- Adresa
- Kralja Tomislava 116
- Crikvenica, Hrvatska
Slične nekretnine
RAB - BARBAT - PREMIUM PENTHAUS 60 m od MORA
- 480.000€ 110 m2
Rab, Barbat - prodaja penthousa u luksuznoj vili
- 450.000€ 104 m2
Rab - stan u vrhunskoj novogradnji 50 m od mora!
- 499.000€ 119 m2
RAB, BARBAT - Kućica u nizu s okućnicom, BLIZINA MORA!
- 401.000€ 92 m2
Rab, Barbat - prodaja stana u luksuznoj vili
- 340.000€ 96 m2
RAB - BARBAT - KVALITETNA NOVOGRADNJA 60 m od MORA
- 340.000€ 89 m2
OTOK RAB, BARBAT - 2S+DB na 1.katu novogradnje 65m2
- 249.000€ 65 m2
OTOK RAB, BARBAT - 2S+DB u prizemlju novogradnje 64m2
- 249.000€ 63 m2
OTOK RAB, BARBAT - 2S+DB u prizemlju novogradnje 70m2
- 249.000€ 69 m2
RAB - BARBAT - STAN s BAZENOM 250 m od MORA
- 246.000€ 87 m2