OTOK RAB, BANJOL - TOP INVESTICIJA - Građevinsko zemljište spremno za gradnju
Banjol, Rab
310.000€
380 €/m2
Tip
Zemljiste
Površina
815 m2
Struktura
3
Detalji
- Tip
- Zemljiste
- Struktura
- 3
- Cijena
- 310.000€
- Površina
- 815 m2 (380 €/m2)
- Površina zemljišta
- 815
- Udaljenost od mora
- 350m
- Ažuriran
- 28.04.2026
- ID
- 104359
Opis
OTOK RAB, BANJOL - TOP INVESTICIJA - Građevinsko zemljište spremno za gradnju, s pogledom na more i staru jezgru!
Prodaje se ekskluzivno građevinsko zemljište ukupne površine 815 m2, na jednoj od najtraženijih i najatraktivnijih lokacija na otoku Rabu. Ovo zemljište predstavlja idealnu priliku za investitore jer se prodaje s pravomoćnom građevinskom dozvolom i plaćenim komunalnim doprinosima. Doslovno možete sutra otvoriti gradilište!
OSNOVNE INFORMACIJE:
Lokacija: Banjol, otok Rab
Površina zemljišta: 815 m2
Infrastruktura: Voda i struja na terenu, direktan pristup s asfaltirane prometnice.
DETALJI PROJEKTA:
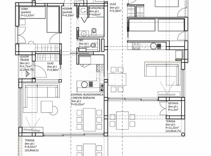
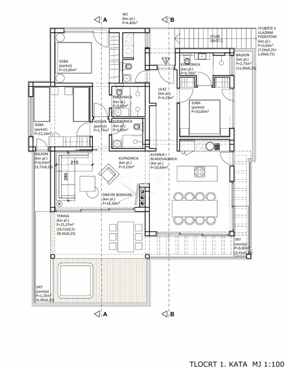
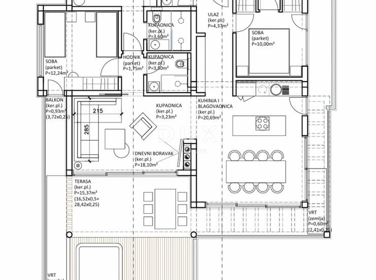
Projekt je projektiran kako bi se iskoristio potencijal terena i zadovoljila velika potražnja za apartmanima na Rabu. Dozvola obuhvaća izgradnju modernog objekta s 3 prostrane stambene jedinice - 2 stana u prizemlju s pripadajućom okućnicom i 1 komforan stan na katu - penthouse s fantastičnim pogledom.
SAVRŠENA INVESTICIJA?
Zemljište nudi spektakularan, otvoren pogled na more i prepoznatljivu staru jezgru grada Raba s njena četiri zvonika, a istovremeno se nalazi blizu svih bitnih sadržaja i predivnih pješčanih plaža.
Budući da je sva dokumentacija već riješena, novi vlasnik preskače dugotrajan i iscrpljujući proces ishodovanja dozvola.
Zemljišta s ovakvim pogledom, na ovoj mikrolokaciji i s ovakvim statusom rijetko se nalaze na tržištu.
Vlasništvo: 1/1, bez tereta, u sustavu PDV-a.
***
Poštovani klijenti, agencijska pr
Kontakt info
- Agencija
-
DUX NEKRETNINE
- Kontakt osoba
- Dux Nekretnine
- Telefon 1
- + 385 51 518... Prikaži broj
- Telefon 2
- + 385 91 480 ... Prikaži broj
- Adresa
- Tizianova 8
- Rijeka, Hrvatska
Slične nekretnine
OTOK RAB, ZEMLJIŠTE NA ODLIČNOJ LOKACIJI
- 1.123.000€ 5400 m2