Gorski Kotar, Ravna Gora, građevinsko zemljište s projektom
Ravna Gora
319.000€
189 €/m2
Tip
Zemljiste
Površina
1686 m2
Detalji
- Tip
- Zemljiste
- Cijena
- 319.000€
- Površina
- 1686 m2 (189 €/m2)
- Ažuriran
- 08.03.2026
- ID
- 14759
Opis
U ponudi je zemljište od 4.100m2 od čega je 1.686m2 unutar građevinskog područja, a 2.412m2 izvan građevinskog područja - zeleni pojas.
Prema idejnom projektu predviđena je izgradnja kuće s bazenom.
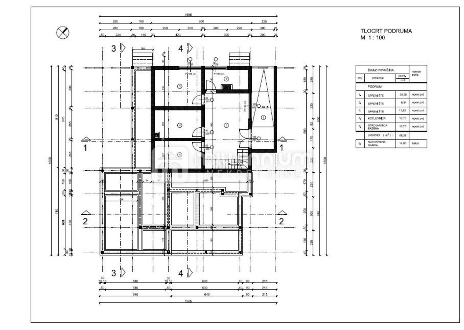
Suteren: tri spremišta, kotlovnica, strojarnica bazena i natkrivena rampa.
Prizemlje: hodnik, kuhinja s blagovaonicom i dnevnim boravkom u velikom i otvorenom prostoru, spavaća soba, kupaonica, bazen, terasa, sunčalište, ulazni trijem.
Potkrovlje: galerija sa stubištem, kupaonica, dvije spavaće sobe.
U dnevnim dijelu prema projektu predviđene su velike staklene stijene s pogledom na šumu i kamin.
ID KOD AGENCIJE: T383
Damir Begonja
Agent s licencom, Vanjski suradnik
Mob: + 385 99 413 ... Prikaži broj
Tel: 051 322... Prikaži broj
Fax: 051 311... Prikaži broj
E-mail: damir@millennium-nekretnine.hr
www.millennium-nekretnine.hr
Millennium Nekretnine Exclusive d.o.o.
Mob: + 385 91 322 ... Prikaži broj
Tel: 051 322... Prikaži broj
Fax: 051 311... Prikaži broj
E-mail: info@millennium-nekretnine.hr
www.millennium-nekretnine.hr
Kontakt info
- Agencija
-
Millennium Nekretnine
- Kontakt osoba
- Millennium Nekretnine
- Telefon 1
- + 385 91 322 ... Prikaži broj
- Telefon 2
- + 385 51 322... Prikaži broj
- Adresa
- Rikarda Katalinića Jeretova 1 (1. kat)
- Rijeka, Hrvatska
Slične nekretnine
Gorski kotar, Ravna Gora - okolica, 2.530m2, građevinsko zemljište
- 329.000€ 2530 m2
Gorski kotar, Ravna Gora - okolica, 2.346m2, građevinsko zemljište
- 305.000€ 2346 m2
Gorski kotar, Ravna Gora - okolica, 2.659m2, građevinsko zemljište
- 346.000€ 2659 m2
GORSKI KOTAR, RAVNA GORA - Građevinsko zemljište 1553 m2 uz potok
- 242.000€ 1553 m2
Gorski kotar, Ravna Gora - okolica, 3.115m2, građevinsko zemljište
- 405.000€ 3115 m2
Gorski kotar, Ravna Gora - okolica, 1.734m2, građevinsko zemljište
- 225.500€ 1734 m2
SKRAD, HLEVCI - Prekrasan građevinski teren 4193 m2
- 209.500€ 4193 m2
GORSKI KOTAR, RAVNA GORA - Atraktivno građevinsko zemljište, 1341 m2
- 208.000€ 1341 m2
Gorski kotar, Ravna Gora, zemljište 4.825m2
- 450.000€ 4824 m2
RAVNA GORA - OKOLICA, GRAĐEVINSKO ZEMLJIŠTE NA MIRNOJ LOKACIJI
- 185.000€ 6110 m2
RAVNA GORA - Prilika za investiciju - 4370 m2 na rubu naselja
- 155.000€ 4370 m2