Zamet – atraktivno građevinsko zemljište s pravomoćnom dozvolom
Zamet, Rijeka
412.000€
280 €/m2
Tip
Zemljiste
Površina
1470 m2
Detalji
- Tip
- Zemljiste
- Cijena
- 412.000€
- Površina
- 1470 m2 (280 €/m2)
- Ažuriran
- 30.03.2026
- ID
- 101011
Opis
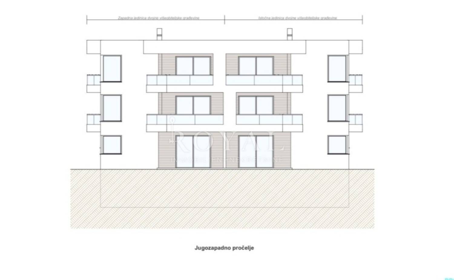
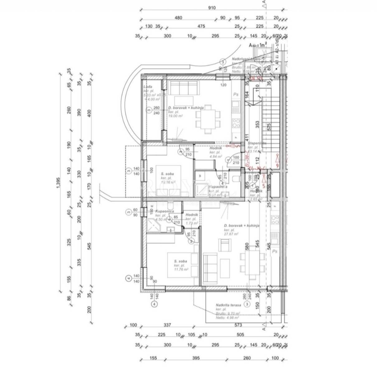
Na traženoj lokaciji u Zametu prodaje se građevinsko zemljište s pravomoćnom građevinskom dozvolom za izgradnju moderne stambene zgrade s 8 stambenih jedinica, liftom, 8 garaža i 12 vanjskih parkirnih mjesta.
Projekt je funkcionalno i arhitektonski kvalitetno osmišljen, a dodatnu vrijednost predstavlja mogućnost prenamjene projekta za ukupno 12 stambenih jedinica, čime se značajno povećava investicijski potencijal i isplativost.
Lokacija je jedna od ključnih prednosti – mirno, urbano okruženje u neposrednoj blizini škole, vrtića, trgovina, javnog prijevoza i svih bitnih sadržaja, što jamči visoku potražnju budućih kupaca ili najmoprimaca.
Ključne prednosti za investitore:
• pravomoćna građevinska dozvola – odmah spremno za gradnju
• mogućnost povećanja broja stanova
• osigurana parkirna i garažna mjesta
• lift – dodatna tržišna vrijednost
• izuzetno tražena i likvidna lokacija
• pogodno za prodaju ili dugoročni najam
Idealna prilika za investitore koji traže siguran projekt s jasnim potencijalom povrata na jednoj od najpoželjnijih lokacija za stanovanje.
Napomena:
Poštovani klijenti, agencijska provizija naplaćuje se u
skladu s Općim uvjetima poslovanja.
https://royal-nekretnine.hr/o-nama/opci-uvjeti-za-obavljanje-posredovanja
Ako je za ovu nekretninu na nekoj drugoj web stranici objavljena niža cijena ista vrijedi i kod nas.
ID KOD AGENCIJE: 30146
Hisen Salihi
Agent s licencom
Mob: 091494... Prikaži broj
Te
Kontakt info
- Agencija
-
Royal nekretnine
- Kontakt osoba
- Eni Vlahov
- Telefon 1
- + 385 51 410... Prikaži broj
- Telefon 2
- + 385 95 396... Prikaži broj
- Adresa
- Ul. Vjekoslava Dukića 2
- Rijeka, Hrvatska
Slične nekretnine
ZAMET, TEREN S PRAVOMOĆNOM GRAĐEVINSKOM DOZVOLOM ZA 8 STANOVA
- 400.000€ 1370 m2
Rijeka, Zamet, građevinsko zemljište za 6 stanova
- 360.000€ 1100 m2
ZAMET, GRAĐEVINSKO ZEMLJIŠTE ODLIČNE KONFIGURACIJE
- 350.000€ 2155 m2
ZAMET, ZEMLJIŠTE ZA STAMBENU GRADNJU
- 338.000€ 3256 m2
RIJEKA, ZAMET - ravno građevinsko zemljište za 12 stanova
- 338.000€ 1514 m2
Zamet - prodaja građevinskog zemljišta
- 325.000€ 1300 m2
Zamet
- 325.000€ 1300 m2
GORNJI ZAMET, ZEMLJIŠTE S GRAĐEVINSKOM DOZVOLOM
- 225.000€ 1328 m2