BRODARICA- STAN U PRIZEMLJU NOVOGRADNJE- 2S+DB
Brodarica, Šibenik
235.000€
3 507 €/m2
Tip
Stan
Površina
67 m2
Struktura
3
Detalji
- Tip
- Stan
- Struktura
- 3
- Cijena
- 235.000€
- Površina
- 67 m2 (3 507 €/m2)
- Kat
- Prizemlje
- Grijanje
- Sustav grijanja, klimatizacije i ventilacije
- Terasa
- Da
- Udaljenost od mora
- 400m
- Parkirno mjesto
- Da
- Ažuriran
- 13.04.2026
- ID
- 106309
Opis
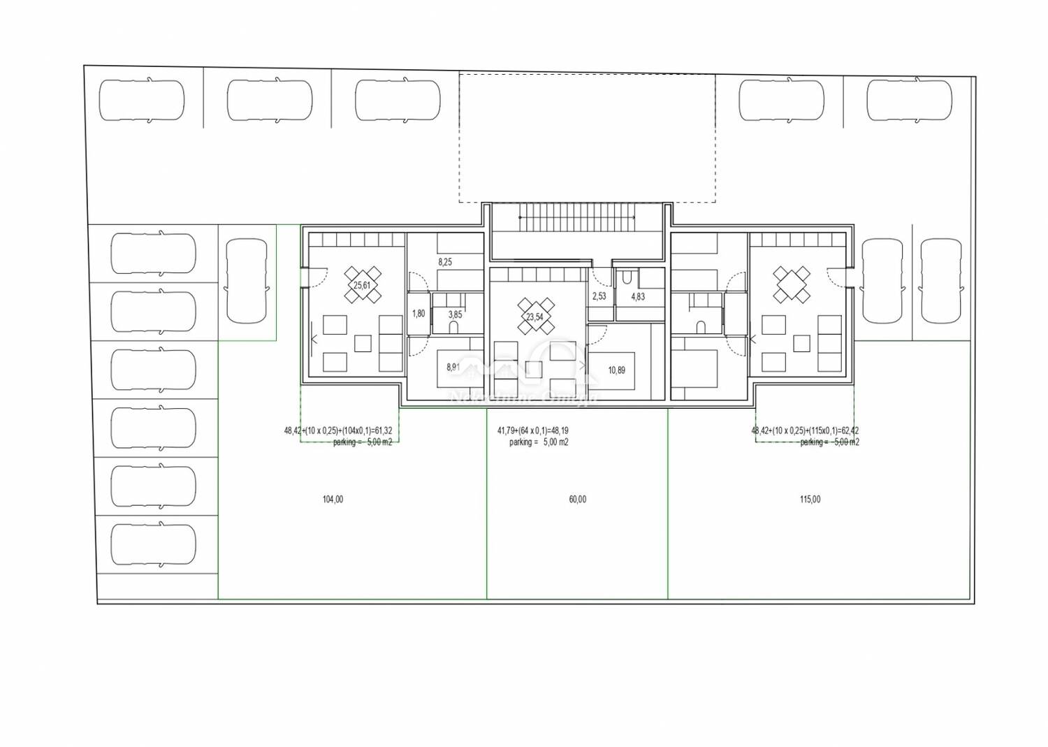
Prodaje se stan S3 ukupne obračunske površine 67,42 m², smješten u prizemlju novogradnje.
Stan ima stambenu površinu od 48,42 m² i odlikuje se funkcionalnim i dobro iskorištenim tlocrtom. Sastoji se od open space prostora kuhinje, blagovaonice i dnevnog boravka površine 25,61 m², iz kojeg se hodnikom dolazi do dvije spavaće sobe (9,24 m² i 7,92 m²) te kupaonice površine 3,85 m².
Iz dnevnog boravka i jedne spavaće sobe izlazi se na terasu površine 10 m² te prostrano dvorište od 115 m², što predstavlja rijetkost na tržištu i pruža visoku razinu privatnosti te mogućnost različitih načina korištenja.
Stan ima zaseban ulaz s bočne strane zgrade te mu pripadaju dva parkirna mjesta.
Oprema uključuje klima uređaje u svim prostorijama, podno grijanje u kupaonici te PVC stolariju s troslojnim staklom. Posebna pažnja posvećena je kvaliteti materijala i izvedbi.
Lokacija je vrlo atraktivna, udaljena svega 400 metara od mora, s jednostavnim pristupom zahvaljujući pothodniku ispod magistrale. U neposrednoj blizini nalaze se trgovine, restorani, kafići, škola i vrtić.
Gradnja je u tijeku, završetak se očekuje do kraja 2026. godine.
Moguća je kupnja putem kredita uz kaparu od 20%.
Budući da je vlasnik fizička osoba, kupac plaća porez na promet nekretnina.
ID KOD AGENCIJE: SBR-035
Paolo Miškić
Viši savjetnik
Mob: + 385 (0)99 210 ... Prikaži broj
Tel: + 385 (0)99 210 ... Prikaži broj
E-mail: paolo@nekretnine-omega.hr
www.nekretnine-omega.hr
Kontakt info
- Agencija
-
Nekretnine Omega
- Kontakt osoba
- Paolo Miškić
- Telefon 1
- 095527... Prikaži broj
- Telefon 2
- 091160... Prikaži broj
- Adresa
- Put Male Gospe 2
- Tribunj
- Šibenik, Hrvatska
Slične nekretnine
BRODARICA, S3 NA PRVOM KATU, OTVORENI POGLED NA MORE
- 235.000€ 73 m2
BRODARICA- NOVI PROJEKT- S1 NA PRVOM KATU- 74.01m2
- 229.431€ 74 m2
Dvosoban stan, 2 parkinga - novogradnja (S1)
- 229.431€ 74 m2
BRODARICA- NOVI PROJEKT- A2 U PRIZEMLJU- 2SB+ DB+ VRT 70m2
- 241.061€ 78 m2
Dvosoban apartman, 2 parkinga - novogradnja (A2)
- 241.061€ 78 m2
Jednosoban stan, top pogled - novogradnja
- 243.480€ 60 m2