ISTRA, SVETI LOVREČ - Kuća s bazenom
Sveti Lovreč
350.000€
3 763 €/m2
Tip
Kuća
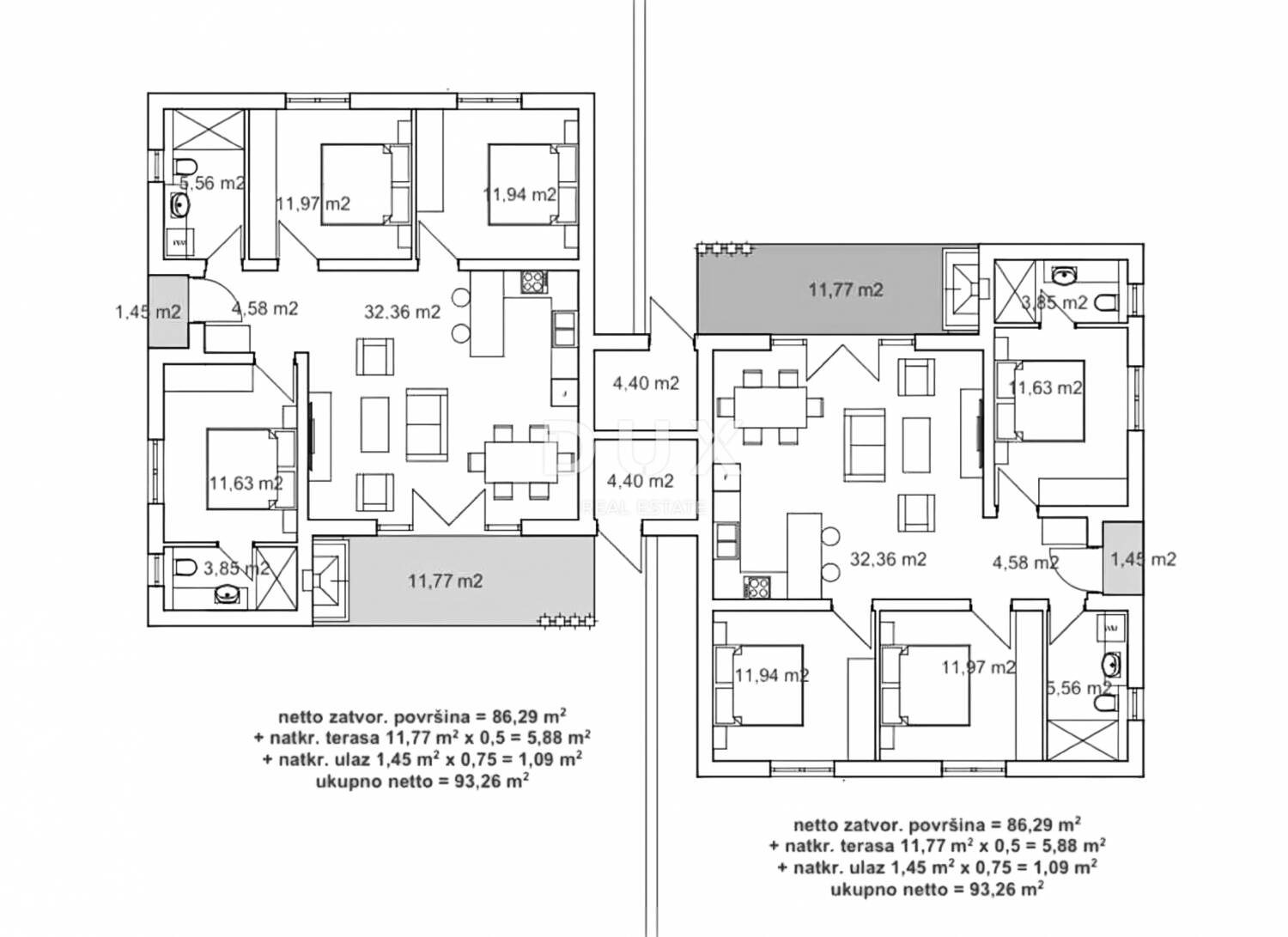
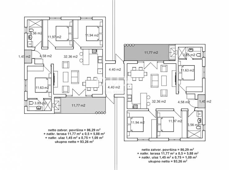
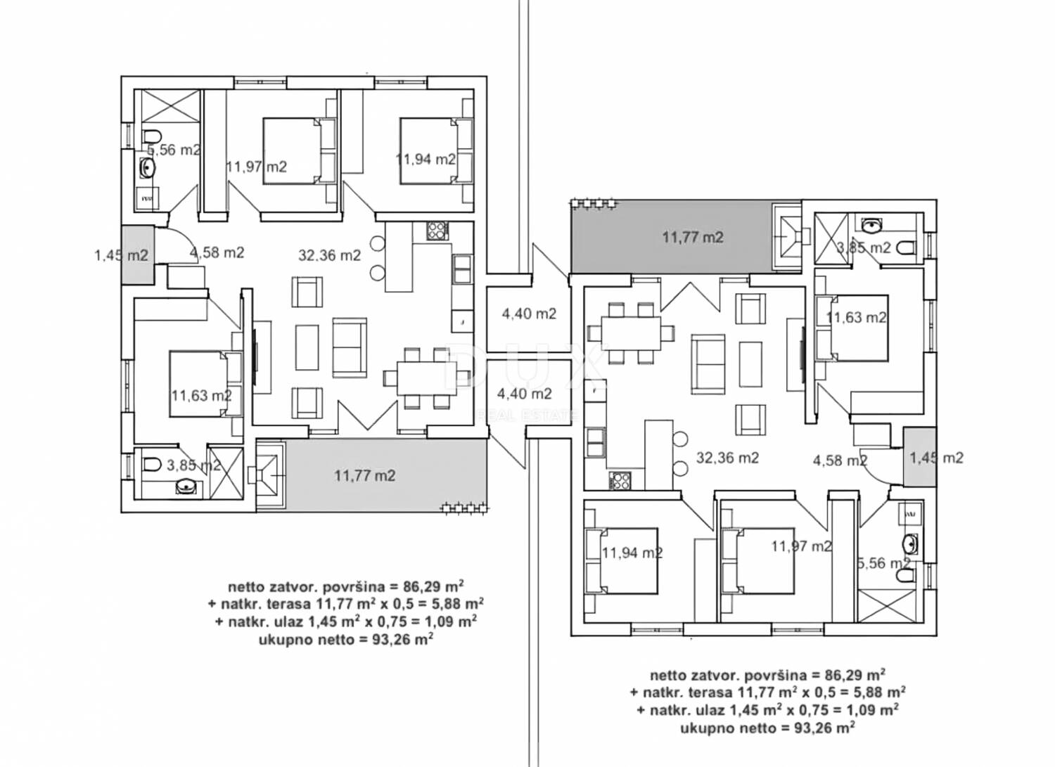
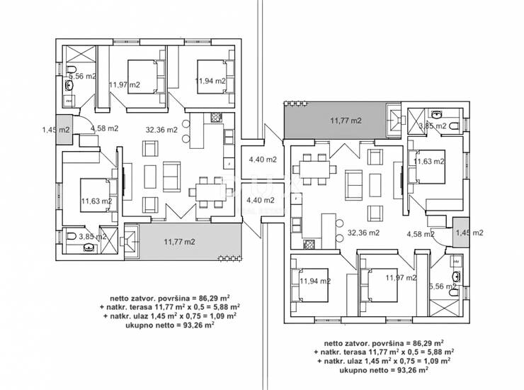
Površina
93 m2
Struktura
4
Detalji
- Tip
- Kuća
- Struktura
- 4
- Cijena
- 350.000€
- Površina
- 93 m2 (3 763 €/m2)
- Površina zemljišta
- 500
- Grijanje
- Podno grijanje
- Udaljenost od mora
- 15000m
- Ažuriran
- 17.10.2025
- ID
- 93447
Opis
ISTRA, SVETI LOVREČ - Kuća s bazenom
Na uzvisini s koje puca predivan pogled na pitoma polja, vinograde, maslinike i more u daljini smjestio se Sveti Lovreč. Sveti Lovreč je smješten usred bujnih polja lavande u zapadnom dijelu istarskog poluotoka, u neposrednom zaleđu Vrsara , Poreča i Rovinja i jedan je od najbolje očuvanih srednjovjekovnih utvrđenih gradova u Istri.
Smještaj gradića na blagoj uzvisini koja dominira prostorom po kojem je razasuto čak 22 naselja, sela i zaselaka govori o njegovoj značajnoj ulozi kroz povijest.
Duž blago razvedene zapadne obale Istre ističe se nekoliko dubokih zaljeva od kojih se Limski zaljev djelomično nalazi u sastavu Općine Sveti Lovreč. Limski zaljev predstavlja prirodnu pojavu od velike znanstvene i estetske vrijednosti; proglašen je posebnim rezervatom u moru.
U pitomom susjedstvu nedaleko Svetog Lovreča, na prodaju je dvojna kuća s bazenom.
Mikrolokacija nudi autentičan doživljaj malog istarskog mjesta, intimnost, rasterećenost od svakog užurbanog napora i odmor od buke a ujedno dovoljno blizu dinamičnih gradova Istre s nizom sadržaja.
Osim pogodne lokacije, nekretninu odlikuje i kvaliteta gradnje što jamči dugoročno zadovoljstvo i kvalitetu stanovanja.
Kuća bezvremenske arhitekture se oblikovno i koloristički uklopa u naselje i krajolik a koncipirana je kao jedna stambena jedinica koja se proteže kroz jednu etažu.
Sastoji od prostora otvorenog konceta koji ujedinjuje kuhinju, blagovaonicu
Kontakt info

- Agencija
-
DUX NEKRETNINE
- Kontakt osoba
- Dux Nekretnine
- Telefon 1
- + 385 51 518... Prikaži broj
- Telefon 2
- + 385 91 480 ... Prikaži broj
- Adresa
- Tizianova 8
- Rijeka, Hrvatska
Slične nekretnine

ISTRA, SVETI LOVREČ - Dvojna kuća s bazenom
- 350.000€ 93 m2

Sveti Lovreč - prodaja kamene istarske starine
- 239.000€ 270 m2

Sveti Lovreč - prodaja kamene istarske starine
- 239.000€ 270 m2

Sveti Lovreč, kamena istarska kuća sa dvorištem u centru
- 260.000€ 180 m2

ISTRA, SVETI LOVREČ - Kuća s bazenom na rubu naselja
- 450.000€ 140 m2

ISTRA, SV. LOVREČ - Vila u visokom roh bau na super lokaciji!
- 460.000€ 186 m2

Sv. Lovreč – moderna montažna vila 190 m² s pogledom na more
- 460.000€ 190 m2

ISTRA,LOVREČ - Kamena kuća s okućnicom
- 239.000€ 200 m2

ISTRA, LOVREČ - Istarska kamena kuća s predivnim pogledom
- 199.000€ 140 m2