Istra, Svetvinčenat, građevinsko zemljište + projekt kuće s bazenom
Svetvinčenat
78.000€
142 €/m2
Tip
Zemljiste
Površina
547 m2
Detalji
- Tip
- Zemljiste
- Cijena
- 78.000€
- Površina
- 547 m2 (142 €/m2)
- Ažuriran
- 27.01.2026
- ID
- 52829
Opis
U ponudi je građevinsko zemljište s projektom za kuću s bazenom smješteno u autohtonom istarskom mjestu, u okolici Svetvinčenata!
Ovo zemljište je pravilnog oblika, površine 547m2 koje je s dvije strane je omeđeno suhozidom.
Ima pristup s javnog puta, a sva potrebna infrastruktura nalazi se u neposrednoj blizini.
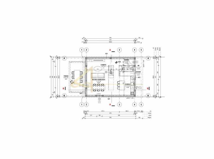
Na navedenom zemljištu prema projektu je predviđena gradnja samostojeće stambene građevine, prizemlje i kat – koncept dvoetažnog stana, pomoćnih građevina - vanjski bazen, spremište s bazenskom tehnikom, biološki pročistač, a predviđena su i 2 parkirna mjesta.
U prizemlju kuće su predviđene sljedeće prostorije: dnevni boravak, blagovaonica i kuhinja kao open space prostor, ostava, toalet i hodnik.
Na kat se dolazi unutarnjim stubištem, a na katu su predviđene 3 spavaće sobe, svaka sa vlastitim kupaonicama.
Vanjska terasa iznosi 40m2, bazen 28m2.
U neposrednoj blizini zemljišta se nalaze kuće mještana i kuće za odmor, te je buduća kuća idealna za one koje žele uživati u svim blagodatima koje nudi mirno istarsko selo ili pak za investitore koji mogu ostvariti odličan prihod od iznajmljivanja kuće za odmor.
Poštovani klijenti, agencijska provizija naplaćuje se u skladu s Općim uvjetima poslovanja.
ID KOD AGENCIJE: T868
Vesna Malner
Asistent u posredovanju
Mob: + 38591252... Prikaži broj
Tel: + 38591494... Prikaži broj , + 3855161... Prikaži broj
E-mail: vesnamalner@four-nekretnine.hr
www.four-nekretnine.hr
Kontakt info
- Agencija
-
Four Nekretnine d.o.o.
- Reg. posrednika br.
- 040441798
- Kontakt osoba
- Four Nekretnine
- Telefon 1
- 05161... Prikaži broj
- Telefon 2
- 38591494... Prikaži broj
- Adresa
- Trpimirova 4A
- Centar
- Rijeka, Hrvatska
Slične nekretnine
Svetvinčenat okolica, zemljište sa građevinskom dozvolom
- 78.000€ 550 m2
Svetvinčenat, okolica, zemljište na mirnoj lokaciji
- 79.000€ 351 m2
Istra Svetvinčenat poljoprivredno zemljište
- 76.668€ 19167 m2
Građevinsko zemljište 959 m2, okolica Svetvinčenta
- 80.000€ 959 m2
Svetvinčenat, okolica, idealno zemljište za novu kuću
- 75.000€ 908 m2
ISTRA, SVETVINČENAT - Zemljište sa građevinskom dozvolom
- 82.000€ 351 m2
Veliko poljoprivredno zemljište na rubu urbanizacije
- 83.000€ 5292 m2
ISTRA, SVETVINČENAT, ZEMLJIŠTE SA DOZVOLOM ZA GRADNJU
- 70.000€ 350 m2