Svetvinčenat okolica, zemljišta sa dozvolom za gradnju kuće sa bazenom
Svetvinčenat
78.000€
141 €/m2
Tip
Zemljiste
Površina
550 m2
Struktura
3
Detalji
- Tip
- Zemljiste
- Struktura
- 3
- Cijena
- 78.000€
- Površina
- 550 m2 (141 €/m2)
- Površina zemljišta
- 550
- Udaljenost od mora
- 15000m
- Ažuriran
- 21.02.2026
- ID
- 94432
Opis
Istra, Svetvinčenat okolica
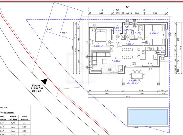
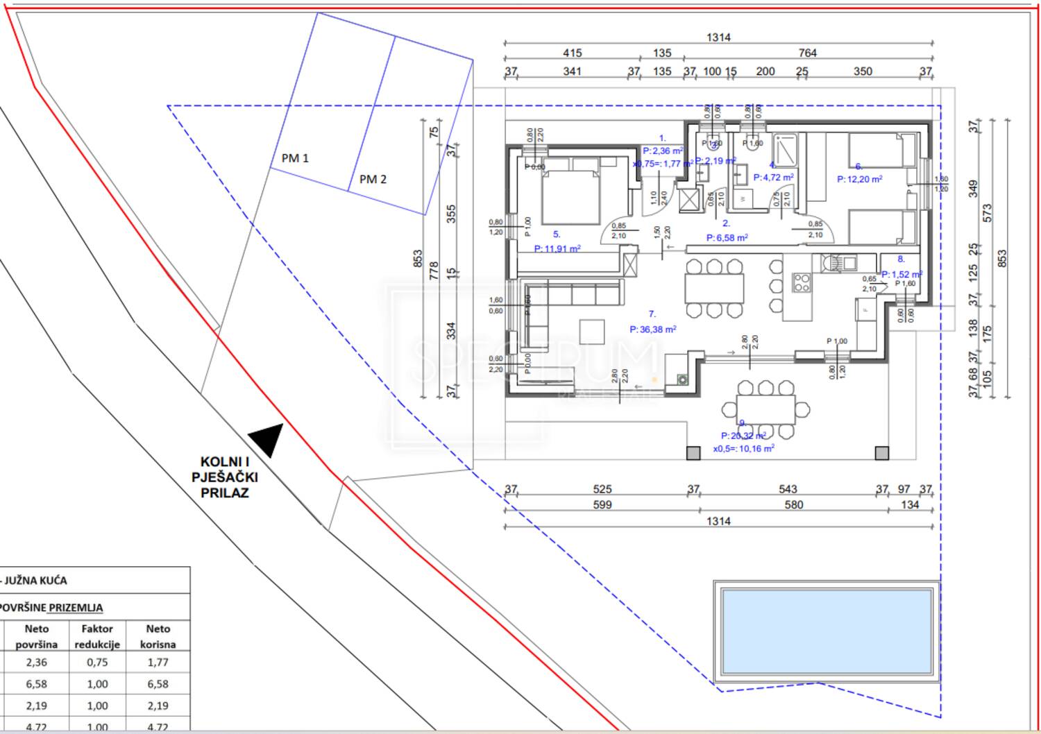
Prodaje se zemljište sa građevinskom dozvolom na mirnoj lokaciji u okolici Svetvinčenta.
Površina zemljišta iznosi 550 m2. Zemljište ima građevinsku dozvolu za izgradnju kuće za odmor sa bazenom, što budućem vlasniku omogućava brz i jednostavan početak gradnje. Do zemljišta vodi ucrtani i asfaltirani pristupni put.
Zemljište se nalazi u malom i mirnom istarskom mjestu, udaljenom svega nekoliko minuta vožnje od Svetvinčenta. U blizini zemljišta se nalaze restorani, agroturizmi, trgovine, kafići, škola, vrtić, banka, pošta, autocesta, šetnice, biciklističke staze i razni drugi sadržaji.
S obzirom da se radi o zemljištu sa građevinskom dozvolom, smještenom na mirnoj lokaciji, zemljište je idealno za investiciju u gradnju kuće za obiteljski život, turističke svrhe, ali i za odmor od gradske gužve.
ID KOD AGENCIJE: 611
SPECTRUM REAL ESTATE
Mob: + 385 91 955 ... Prikaži broj
E-mail: info@spectrum-realestate.eu
www.spectrum-realestate.eu
Kontakt info
- Agencija
-
SPECTRUM REAL ESTATE
- Reg. posrednika br.
- 75/2024
- Kontakt osoba
- Davide Malinarich
- Telefon 1
- 091955... Prikaži broj
- Adresa
- Ulica rijeke Dragonje 7
- Novigrad, Hrvatska
Slične nekretnine
Svetvinčenat okolica, zemljište sa građevinskom dozvolom
- 78.000€ 550 m2
Svetvinčenat, okolica, zemljište na mirnoj lokaciji
- 79.000€ 351 m2
Istra Svetvinčenat poljoprivredno zemljište
- 76.668€ 19167 m2
Građevinsko zemljište 959 m2, okolica Svetvinčenta
- 80.000€ 959 m2
Svetvinčenat, okolica, idealno zemljište za novu kuću
- 75.000€ 908 m2
ISTRA, SVETVINČENAT - Zemljište sa građevinskom dozvolom
- 82.000€ 351 m2
Veliko poljoprivredno zemljište na rubu urbanizacije
- 83.000€ 5292 m2
ISTRA, SVETVINČENAT, ZEMLJIŠTE SA DOZVOLOM ZA GRADNJU
- 70.000€ 350 m2