ISTRA, TAR - Stan u novogradnji na izvrsnoj lokaciji
Tar, Tar-Vabriga
302.000€
4 507 €/m2
Tip
Stan
Površina
67 m2
Struktura
3
Detalji
- Tip
- Stan
- Struktura
- 3
- Cijena
- 302.000€
- Površina
- 67 m2 (4 507 €/m2)
- Kat
- 2
- Grijanje
- Podno grijanje
- Udaljenost od mora
- 1800m
- Parkirno mjesto
- Da
- Ažuriran
- 03.10.2025
- ID
- 86650
Opis
ISTRA, TAR - Stan u novogradnji na izvrsnoj lokaciji
U mjestu Tar, nedaleko od Poreča, smjestio se moderan stan u novogradnji koji objedinjuje udobnost, estetiku i idealnu lokaciju za svakodnevni život ili ljetni boravak. U sklopu urbane poslovno-stambene zgrade, koja se sastoji od šest stambenih jedinica i poslovnog prostora u prizemlju, ovaj stan nudi prekrasne poglede na more i blizinu svih važnih sadržaja – od vrtića i škole, do trgovine, kafića, ljekarne i restorana. Plaže su udaljene svega nekoliko minuta laganog hoda.
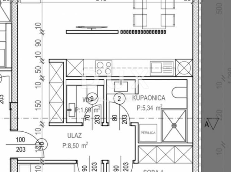
Stan površine 67,57 m² koncipiran je funkcionalno i suvremeno te se sastoji od ulaznog prostora, open-space dnevnog boravka s kuhinjom i blagovaonicom, dvije spavaće sobe, kupaonice, dodatnog WC-a te lođe.
Pri gradnji koriste se vrhunski materijali, a keramika će biti po izboru kupca, čime se dodatno prilagođava osobnim preferencijama. Dio standardne opreme uključuje bešumne liftove, protuprovalna vrata visoke sigurnosne klase te video portafone, osiguravajući visoku razinu komfora i sigurnosti.
Radovi na zgradi započeli su u svibnju 2025., a završetak s mogućnošću useljenja planiran je za kraj ožujka 2027., što ostavlja dovoljno vremena za organizaciju, personalizaciju i pripremu budućeg doma.
Ova nekretnina predstavlja savršen spoj moderne gradnje, mirne ali sadržajne lokacije te kvalitetnog životnog prostora – idealna prilika za one koji traže novo poglavlje uz more.
Poštovani klijenti, agencijska pro
Kontakt info

- Agencija
-
DUX NEKRETNINE
- Kontakt osoba
- Dux Nekretnine
- Telefon 1
- + 385 51 518... Prikaži broj
- Telefon 2
- + 385 91 480 ... Prikaži broj
- Adresa
- Tizianova 8
- Rijeka, Hrvatska
Slične nekretnine

ISTRA, TAR - Stan u novogradnji na izvrsnoj lokaciji
- 302.000€ 67 m2

ISTRA, TAR - Stan u novogradnji na izvrsnoj lokaciji
- 302.000€ 67 m2

ISTRA, TAR - Stan u novogradnji na izvrsnoj lokaciji
- 302.000€ 67 m2

ISTRA, TAR - Stan u novogradnji na izvrsnoj lokaciji
- 302.000€ 67 m2

Poreč, Tar - vrhunska novogradnja na odličnoj lokaciji
- 303.000€ 83 m2

Poreč, Tar - vrhunska novogradnja na odličnoj lokaciji
- 303.000€ 83 m2

Moderan stan u srcu Tara
- 299.300€ 70 m2

Ekskluzivna prilika za život ili poslovanje u srcu Tara!
- 299.300€ 70 m2

Poreč, Tar - vrhunska novogradnja na odličnoj lokaciji
- 306.000€ 84 m2

Poreč, Tar - vrhunska novogradnja na odličnoj lokaciji
- 306.000€ 84 m2

ISTRA, POREČ - Prekrasan stan na 1. katu novogradnje
- 296.000€ 81 m2