Istra, Tinjan, zemljište s građ. dozvolom za vilu s bazenom
Tinjan
125.000€
176 €/m2
Tip
Zemljiste
Površina
710 m2
Detalji
- Tip
- Zemljiste
- Cijena
- 125.000€
- Površina
- 710 m2 (176 €/m2)
- Ažuriran
- 25.04.2026
- ID
- 33666
Opis
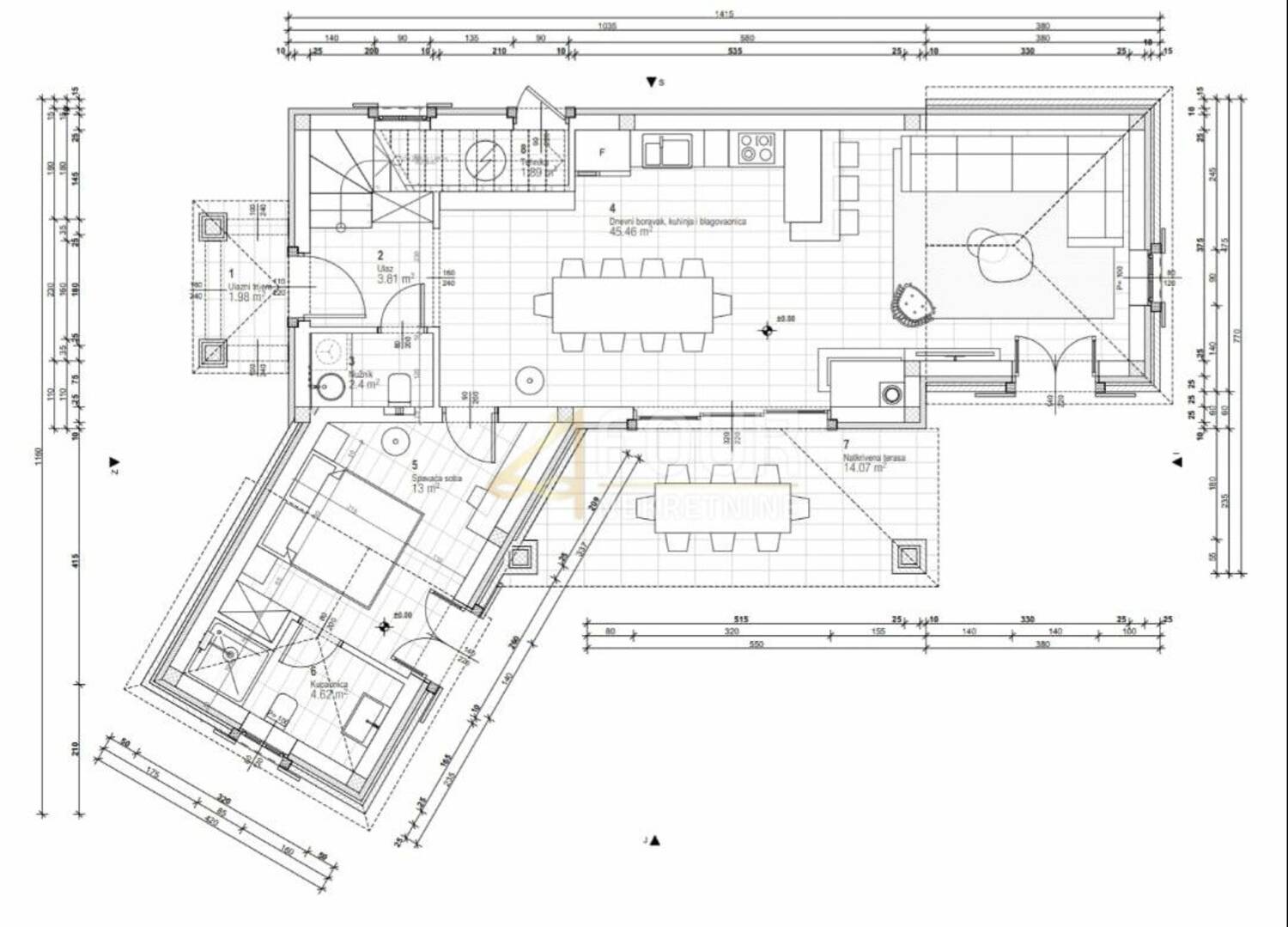
U ponudi je zemljište 710m2 s građevinskom dozvolom i projektom za izgradnju vile s bazenom.
Prema projektu kuća je koncipirana kao dvoetažna stambena jedinica, P+1.
Prizemlje: ulazni trijem, ulaz sa stepeništem, tehnička prostorija, toalet, kuhinja s blagovaonicom i dnevnim boravkom u otvorenom prostoru, spavaća soba s vlastitom kupaonicom, natkrivena terasa.
1. kat: hodnik, dvije spavaće sobe s vlastitim kupaonicama, natkrivena terasa.
Korisna površina kuće (netto): 125.31m2/ Brutto površina: 135.84m2
Bazen: 38.25m2
Popločeni dio s parkingom: 166.73m2
Zelena površina: 463.34m2
Mogućnost kupnje i kompletno završene kuće tzv. princip "ključ u ruke", cijena na upit!
Poštovani klijenti, agencijska provizija naplaćuje se u skladu s Općim uvjetima poslovanja.
ID KOD AGENCIJE: T425
Hilda Ćoso
Agent s licencom
Mob: + 3859831... Prikaži broj
Tel: + 38591494... Prikaži broj , + 3855161... Prikaži broj
E-mail: hildacoso@four-nekretnine.hr
www.four-nekretnine.hr
Kontakt info
- Agencija
-
Four Nekretnine d.o.o.
- Reg. posrednika br.
- 040441798
- Kontakt osoba
- Four Nekretnine
- Telefon 1
- 05161... Prikaži broj
- Telefon 2
- 38591494... Prikaži broj
- Adresa
- Trpimirova 4A
- Centar
- Rijeka, Hrvatska
Slične nekretnine
Poreč, okolica, građevinsko zemljište sa projektom
- 120.000€ 1128 m2
ISTRA, TINJAN - Građevinsko zemljište 1789 m2
- 131.000€ 1789 m2
ISTRA, TINJAN - Dva građevinska zemljišta na mirnoj lokaciji!
- 134.000€ 1589 m2
ISTRA, TINJAN - Građevinsko zemljište
- 110.000€ 1311 m2
TINJAN, PROSTRANO GRAĐEVINSKO ZEMLJIŠTE 40€/m²
- 140.000€ 3810 m2
ISTRA, TINJAN - Zemljište s građevinskom dozvolom
- 108.000€ 965 m2
ISTRA, TINJAN - Građevinsko zemljište zadnje u zoni gradnje
- 145.000€ 1840 m2
Istra, Pinezići - Zemljište za gradnju s potencijalom za vile
- 145.000€ 2093 m2
ISTRA, TINJAN - Zemljište s lokacijskom dozvolom
- 103.500€ 554 m2
ISTRA TINJAN - Građevinsko zemljište s dozvolom za vilu!
- 147.000€ 260 m2