ISTRA, SAVUDRIJA - Prizemnica u ROH BAU fazi nedaleko od mora! PRILIKA!
Savudrija, Umag
195.000€
2 267 €/m2
Tip
Kuća
Površina
86 m2
Struktura
3
Detalji
- Tip
- Kuća
- Struktura
- 3
- Cijena
- 195.000€
- Površina
- 86 m2 (2 267 €/m2)
- Površina zemljišta
- 330
- Grijanje
- Sustav grijanja, klimatizacije i ventilacije
- Udaljenost od mora
- 2000m
- Parkirno mjesto
- Da
- Ažuriran
- 22.01.2026
- ID
- 66582
Opis
ISTRA, SAVUDRIJA - Prizemnica u ROH BAU fazi nedaleko od mora! PRILIKA!
U ponudi DUX nekretnina nudimo prizemnicu smještenu u mirnoj ulici 4 minute vožnje udaljene od prve plaže (Kanegra)!
Radi se o odličnoj prilici za sve one koji traže dom s malo održavanja, a da ipak imate svoju privatnost!
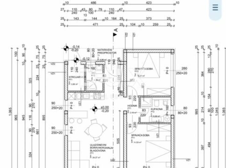
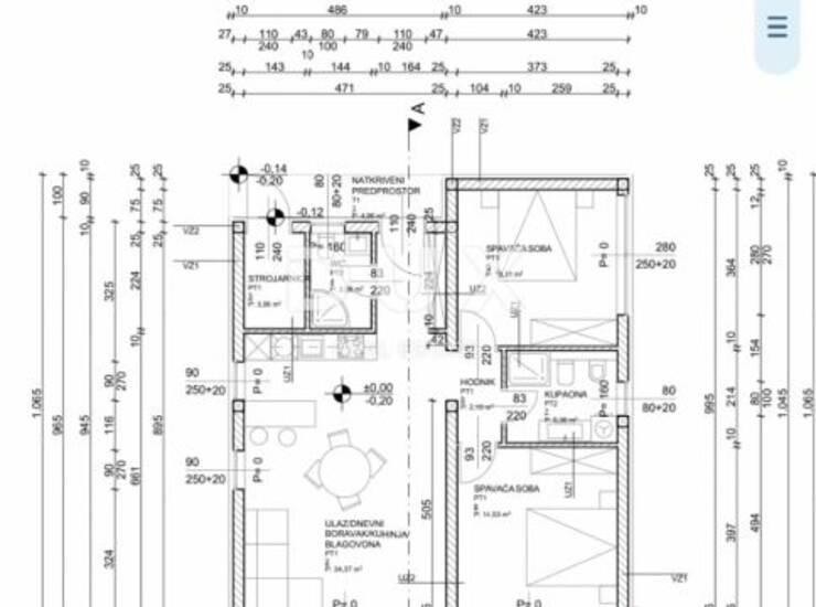
Prizemnica nudi 86 m2 neto stambene površine i sastoji se od ulaznog hodnika, open space dnevnog boravka s kuhinjom i blagovaonicom, dvije spavaće sobe, dvije kupaonice te tehničke sobe.
Prodaje se u stanju vidljivim na fotografijama stoga budući vlasnici imaju priliku po svojim preferencijama urediti eksterijer i interijer.
Hlađenje i grijanje predviđeno je putem klima uređaja.
Okućnica osigurava prostor za dva parkirna mjesta.
ZANIMLJIVOST!
Budući vlasnici mogu ići na izmjenu građevinske dozvole i dignuti još dva kata kuće, a s prvog kata Vam je osiguran pogled na more!
Lokacija Vam nudi puno mira i privatnosti, plaže se nalaze 4 minute vožnje od kuće, a veće trgovine nalaze se u centru Umaga.
Ova nekretnina idealna je za obitelj koja preferira život u kući, ali isto tako kao dobar turistički proizvod za iznajmljivanje obzirom da je održavanje okućnice svedeno na minimum.
DOKUMENTACIJA:
- Vlasništvo 1/1
- Nema tereta
Super prilika !
Za sve ostale informacije kontaktirajte nas i dogovorite razgled ove super nekretnine!
Poštovani klijenti, agencijska provizija naplaćuje se u skladu s Općim uvjetima poslovanja
www.dux-nekretnine.hr/o
Kontakt info
- Agencija
-
DUX NEKRETNINE
- Kontakt osoba
- Dux Nekretnine
- Telefon 1
- + 385 51 518... Prikaži broj
- Telefon 2
- + 385 91 480 ... Prikaži broj
- Adresa
- Tizianova 8
- Rijeka, Hrvatska
Slične nekretnine
Istra, Savudrija: Kuća u nizu s pogledom na more
- 198.000€ 150 m2
Savudrija - prodaja samostojeće kuće
- 298.000€ 330 m2
Savudrija - Kuća za adaptaciju sa 1200m2 zemljišta
- 350.000€ 80 m2
Prilika! Umag, okolica dvojna kuća blizu plaže!
- 450.000€ 125 m2
ISTRA, UMAG - Dvojna kuća u novogradnji sa bazenom B
- 530.000€ 147 m2
ISTRA, UMAG - Dvojna kuća u novogradnji sa bazenom A
- 530.000€ 147 m2
Savudrija, okolica! Moderna kuća s bazenom!
- 530.000€ 132 m2
Savudrija, okolica! Moderna kuća s bazenom!
- 530.000€ 132 m2
Prilika! Savudrija, samostojeća kuća 200 metara do mora!
- 610.000€ 176 m2
Moderna kuća samo 800 metara od mora
- 700.000€ 169 m2
ISTRA, SAVUDRIJA - Urbana vila s bazenom i pogledom na more
- 850.000€ 194 m2