ISTRA, VIŠNJAN - Vrhunska prizemnica s pogledom na more
Višnjan
815.000€
4 578 €/m2
Tip
Kuća
Površina
178 m2
Struktura
4
Detalji
- Tip
- Kuća
- Struktura
- 4
- Cijena
- 815.000€
- Površina
- 178 m2 (4 578 €/m2)
- Površina zemljišta
- 1261
- Grijanje
- Sustav grijanja, klimatizacije i ventilacije
- Terasa
- Da
- Udaljenost od mora
- 11100m
- Parkirno mjesto
- Da
- Namještenost
- Namješten
- Ažuriran
- 23.01.2026
- ID
- 24820
Opis
ISTRA, VIŠNJAN - Vrhunska prizemnica s pogledom na more
Višnjan je slikovit i živopisan gradić i općina u zapadnom dijelu Istre. Općina Višnjan broji 56 naselja i nalazi se na prostoru između rijeke Mirne na sjeveru i Limskog kanala na jugu. Romantični Višnjan smjestio se na blagoj uzvisini od 244 m nadmorske visine okružen livadama, oranicama i šumama hrasta medunca i bijeloga graba. Danas je Višnjan najpoznatiji po svojoj jedinstvenoj zvjezdarnici, koja je po broju otkrivenih asteroida jedna od dvanaest najproduktivnijih zvjezdarnica svijeta svih vremena.
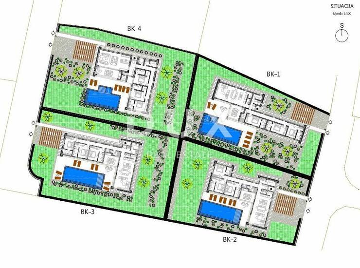
Nedaleko od centra ovog pitoresknog istarskog naselja Višnjan smjestio se privatni luksuzni resort od 4 vila kombinacije modernog i tradicionalnog dizajna. Smještene na uzvisini manjega brda okružene maslinama i zadnje u građevinskoj zoni privatnost je osigurana, a veliku vrijednost pridodaje i to što se sa svake vile se pruža pogled na more sa zalaskom sunca kao i pogled prema samome naselju. Blizina grada Poreč, koji je udaljen svega 12km, pridodaje na vrijednosti vilama kao i kvaliteti i jednostavnosti života.
Priroda i mir ovoga kraja koji okružuje i krasi vile, svoje posjetioce ne ostavljaju ravnodušnima, pa tako i jedne od najpoznatijih pješačkih i biciklističke staza koje se protežu ovim krajem. Tako zaljubljenici u prirodu i mir mogu uživati pod toplim istarskim suncem uz udobnost i kvalitetu modernog života.
Dizajn vila je fokusiran na jednostavnost i lakoću korištenja
Kontakt info
- Agencija
-
DUX NEKRETNINE
- Kontakt osoba
- Dux Nekretnine
- Telefon 1
- + 385 51 518... Prikaži broj
- Telefon 2
- + 385 91 480 ... Prikaži broj
- Adresa
- Tizianova 8
- Rijeka, Hrvatska
Slične nekretnine
ISTRA, VIŠNJAN - Moderna prizemnica neponovljivog dizajna
- 815.000€ 165 m2
ISTRA, VIŠNJAN - Prizemnica vrhunskog dizajna
- 815.000€ 167 m2
ISTRA, VIŠNJAN - Moderna prizemnica s pogledom na more
- 815.000€ 169 m2
Prizemnica s bazenom i pogledom na more, Istra, Višnjan
- 815.000€ 178 m2
Istra, Višnjan, moderna kamena vila s bazenom
- 830.000€ 191 m2
Višnjan, Istra - Luksuzna kamena vila u mirnom okruženju
- 780.000€ 198 m2
ISTRA, VIŠNJAN - Impozantna kamena vila u mirnom okruženju
- 775.000€ 205 m2
Istra, Višnjan: Kamena vila s bazenom i intimom
- 775.000€ 205 m2
ISTRA, VIŠNJAN - Kamena ljepotica s panoramskim pogledom na more
- 860.000€ 265 m2
Istra, Višnjan- okolica, novogradnja, kuća s bazenom
- 768.000€ 198 m2
Istra, Otmjena Vila nadomak Poreča!
- 750.000€ 200 m2
Istra, Otmjena Vila nadomak Poreča!
- 885.000€ 200 m2