Građevinsko zemljište s predanom dozvolom, 443 m2
Vodice
125.000€
282 €/m2
Tip
Zemljiste
Površina
443 m2
Detalji
- Tip
- Zemljiste
- Cijena
- 125.000€
- Površina
- 443 m2 (282 €/m2)
- Ažuriran
- 28.04.2026
- ID
- 107294
Opis
Prodaje se građevinsko zemljište u Vodicama s već predanom dozvolom za izgradnju vile s bazenom. Struja i voda nalaze se na terenu.
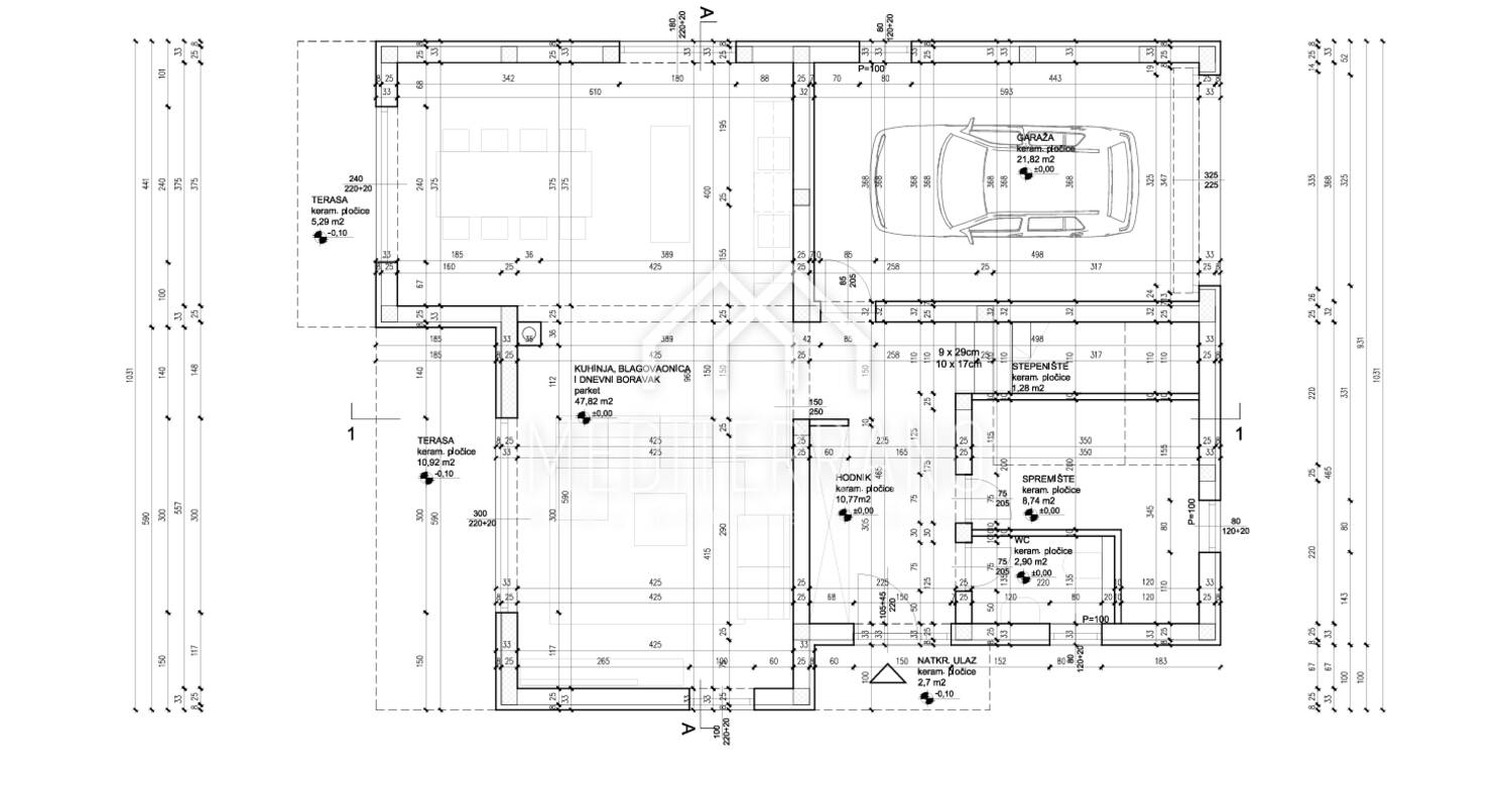
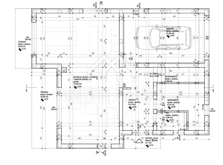
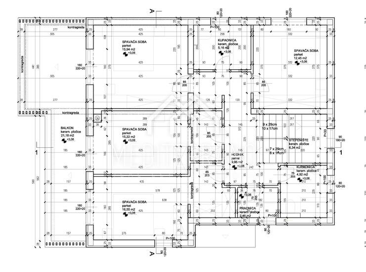
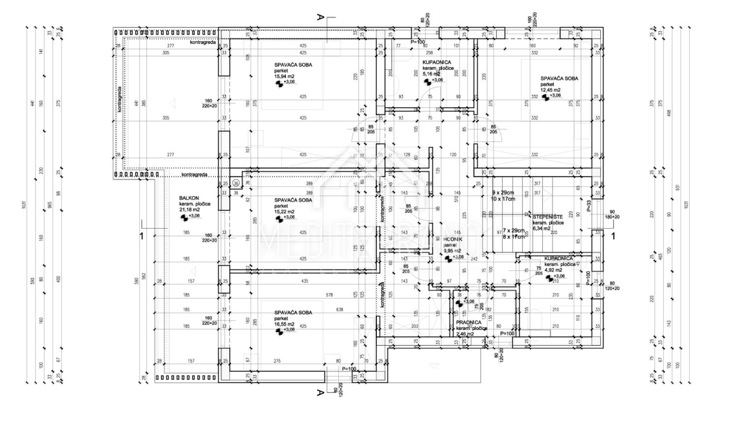
Projektirana vila sastoji se od prizemlja i prvog kata. U prizemlju su predviđeni garaža, prostrana kuhinja s blagovaonicom i dnevnim boravkom, veliko spremište, WC te ulazni hodnik. Na prvom katu nalaze se četiri prostrane spavaće sobe, dvije kupaonice, praonica, hodnik i veliki balkon.
Za više informacija slobodno se javite.
ID KOD AGENCIJE: 210
Pavla Škugor
Agent s licencom
Mob: + 385 99 412 ... Prikaži broj
Tel: + 385 99 412 ... Prikaži broj
E-mail: pavla@mediterrano-agency.com
www.mediterrano-agency.com
Kontakt info
- Agencija
-
Mediterrano nekretnine
- Reg. posrednika br.
- 69/2024
- Kontakt osoba
- Pavla Škugor
- Telefon 1
- + 385 99 412 ... Prikaži broj
- Adresa
- fra Jerolima Milete 6
- Šibenik, Hrvatska
Slične nekretnine
Poljoprivredno zemljište na prodaju, 5150 m2
- 103.000€ 5150 m2
DALMACIJA, VODICE - Građevinsko zemljište D na mirnoj lokaciji
- 147.500€ 590 m2
DALMACIJA, VODICE - Građevinsko zemljište F na mirnoj lokaciji
- 150.000€ 600 m2
DALMACIJA, VODICE - Građevinsko zemljište B na mirnoj lokaciji
- 173.000€ 692 m2
DALMACIJA, VODICE - Građevinsko zemljište C na mirnoj lokaciji
- 178.500€ 715 m2
DALMACIJA, VODICE - Građevinsko zemljište E na mirnoj lokaciji
- 183.500€ 734 m2
DALMACIJA, VODICE - Građevinsko zemljište A na mirnoj lokaciji
- 185.750€ 743 m2
VODICE, GRAĐ. ZEMLJIŠTE, 800M OD MORA, 641M2
- 246.785€ 641 m2
VODICE, 1800m2, GRAĐEVINSKO ZEMLJIŠTE
- 400.000€ 1800 m2
ŠIBENIK, VODICE – Atraktivno zemljište s pogledom na more
- 572.400€ 1272 m2
Vodice, Srima - Atraktivna zona 100m od mora za smještajne kapacitete hotele,v
- 1.600.000€ 16000 m2