RIJEKA, ZAKUP - POSLOVNI PROSTOR NADOMAK CENTRA GRADA
Centar, Rijeka
1.200€ /mjesečno
14 €/m2
Tip
Poslovni prostor
Površina
85 m2
Struktura
4
Detalji
- Tip
- Poslovni prostor
- Struktura
- 4
- Cijena
- 1.200€ /mjesečno
- Površina
- 85 m2 (14 €/m2)
- Kat
- 5
- Grijanje
- Sustav grijanja, klimatizacije i ventilacije
- Ažuriran
- 13.10.2025
- ID
- 91392
Opis
RIJEKA, na odličnoj lokaciji, svega par minuta hoda od Korza, iznajmljuje se poslovni prostor ukupne površine 85 m², smješten na šestom katu uredne i novije poslovne zgrade s liftom. Zgrada je uredna i održavana, a zbog svoje centralne pozicije u blizini svih važnijih sadržaja (Korzo, javni prijevoz, banke, pošta, trgovine), prostor je idealan za razne djelatnosti poput ureda, knjigovodstava, odvjetničkih ureda ili konzultantskih firmi.
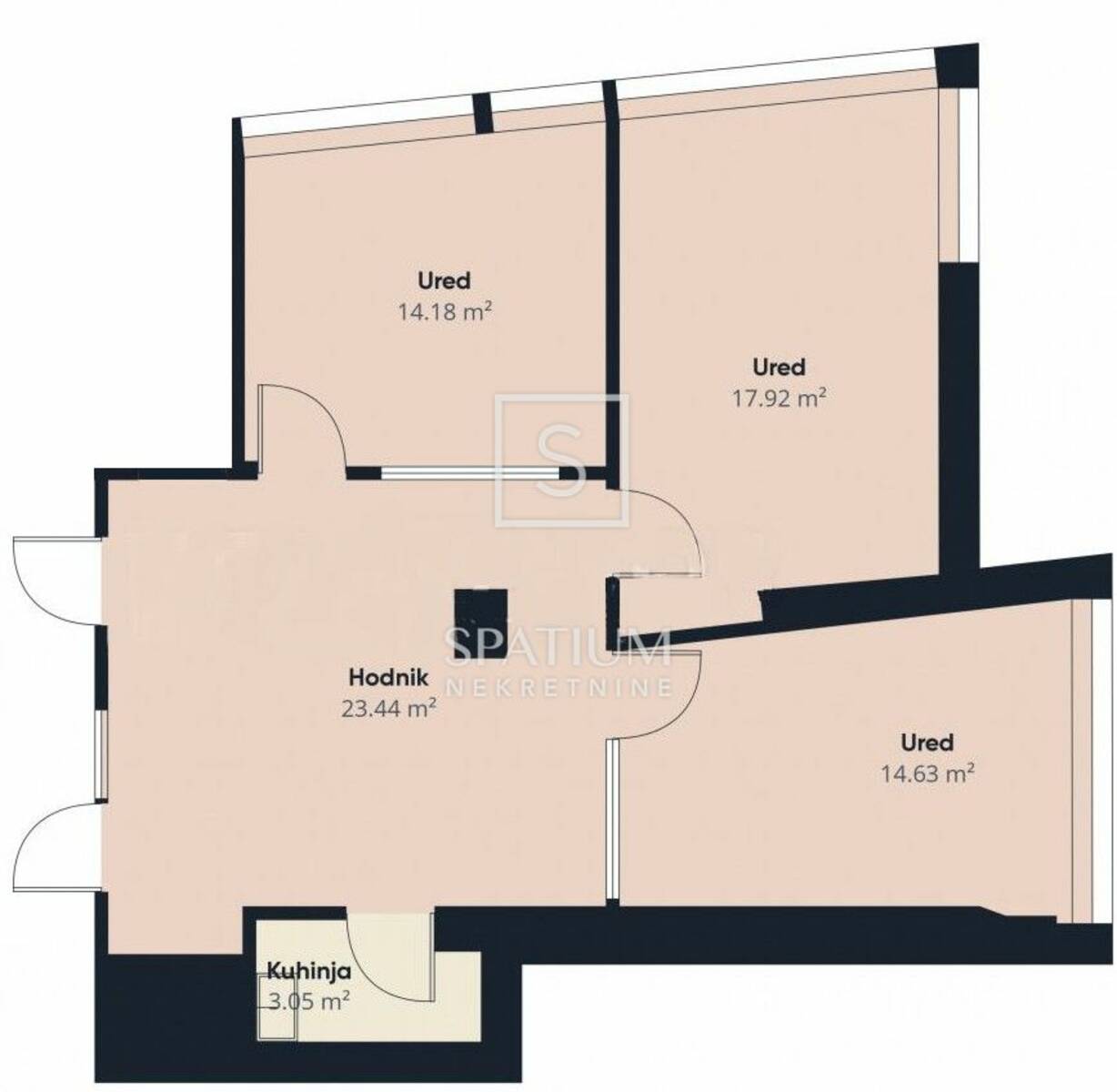
Prostor se sastoji od:
⦁ 3 uredskih prostorija različitih kvadratura (17,92 m², 14,63 m², i 14,18 m²),
⦁ prostranog hodnika/recepcije (23,44 m²) koji povezuje sve prostorije,
⦁ čajne kuhinje (3,05 m²) smještene uz ulaz,
⦁ toaleta i
⦁ malog spremišta.
Dodatno, postoji još jedan sanitarni čvor na etaži koji je dostupan na korištenje. Posebna pogodnost je mogućnost najma i u manjim cjelinama.
Rijeka , najveća je hrvatska luka, treći po veličini grad u Republici Hrvatskoj te administrativno središte Primorsko-goranske županije. Rijeku je mađarska vlada još u 18. i 19. stoljeću zbog idealnog zemljopisnog položaja i dubine mora u Kvarnerskom zaljevu razvila u jednu od najvećih europskih luka i moćno industrijsko središte. Na Jadranu je poznata i riječka bura, hladan i suh vjetar sjeveroistočnog smjera koji povoljno djeluje na čistoću riječkog zraka.
Za sve ostale informacije obratite se agentu sa povjerenjem.
Rok Lulić
Agent s licencom
+ 385 91 220 ... Prikaži broj
rok@spatium.hr
Spatium nekretn
Kontakt info
- Agencija
-
Spatium Nekretnine
- Kontakt osoba
- Vedran Prica
- Telefon 1
- + 385 51 272... Prikaži broj
- Telefon 2
- + 385 95 812 ... Prikaži broj
- Adresa
- Šetalište Andrije Kačića Miošića 5
- Rijeka Centar
- Rijeka, Hrvatska
Slične nekretnine
Centar - najam poslovnog prostora na samom Korzu!
- 1.200€/mjesečno 68 m2
RIJEKA, CENTAR-poslovni prostor 63,01 m2
- 1.200€/mjesečno 63 m2
Rijeka centar, poslovni prostor 83,70 m2
- 1.200€/mjesečno 83 m2
Centar - najam poslovnog prostora na samom Korzu!
- 1.200€/mjesečno 68 m2
Centar poslovni prostor
- 1.200€/mjesečno 68 m2
Centar - najam poslovnog prostora na atraktivnoj lokaciji, 96 m2
- 1.200€/mjesečno 96 m2
Rijeka, Centar - najam poslovnog prostora, 104m2!
- 1.200€/mjesečno 104 m2
Rijeka - najam poslovnog prostora u centru, 100m2
- 1.200€/mjesečno 100 m2
Zakup, Rijeka, Centar, poslovni prostor, 64m2
- 1.200€/mjesečno 64 m2
Zakup, Rijeka, Centar, poslovni prostor, 66.26m2
- 1.200€/mjesečno 66 m2
RIJEKA, CENTAR - poslovni prostor u centru grada
- 1.150€/mjesečno 83 m2
RIJEKA, CENTAR - Poslovni prostor za najam na odličnoj lokaciji
- 1.250€/mjesečno 64 m2