ISTRA, BARBAN - Moderna prizemnica s bazenom
Barban
364.000€
2 983 €/m2
Tip
Kuća
Površina
122 m2
Struktura
3
Detalji
- Tip
- Kuća
- Struktura
- 3
- Cijena
- 364.000€
- Površina
- 122 m2 (2 983 €/m2)
- Površina zemljišta
- 650
- Udaljenost od mora
- 12000m
- Ažuriran
- 05.10.2025
- ID
- 85768
Opis
ISTRA, BARBAN - Moderna prizemnica s bazenom
Barban je malo slikovito srednjevjekovno naselje akropolskog tipa na južnom dijelu istočne Istre, smješteno iznad doline rijeke Raše. Dobro očuvana arhitektonska zdanja iz razdoblja baroka i gotike, freske i glagoljski zapisi, crkve, palače i gradske zidine, viteška igra Trka na prstenac, tradicionalna fešta od vina i festival smokava čine Barban izuzetno atraktivnim. Općina Barban, koja ima izlaz na more u Raškome zaljevu, zauzima površinu od 100 km². Osim Barbana, u prekrasnom zelenilu Barbanštine, smješteno je još 31 naselje.
U tom krajoliku slikovitih i nježnih vizura, na prodaju je moderna prizemnica s bazenom.
Nalazi se u pitomom naselju čija lokacija nudi autentičan doživljaj malog istarskog mjesta, intimnost i rasterećenost od svakog užurbanog napora i buke a ujedno dovoljno blizu dinamičnih gradova Istre s nizom sadržaja.
Osim lokacije koja pruža potpuni komfor, nekretninu odlikuje i kvaliteta gradnje što jamči dugoročno zadovoljstvo i kvalitetu stanovanja.
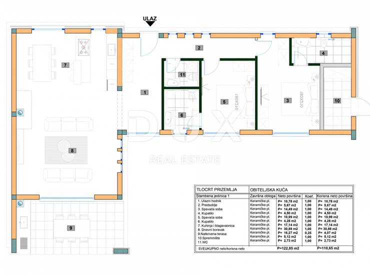
Kuća svojom arhitekturom ne remeti okoliš već stvara sinergiju prirodnog okruženja i modernog dizajna. Definirana je kao prizemnica koja se sastoji od jedne stambene jedinice.
Sastoji se od prostora otvorenog koncepta koji ujedinjuje kuhinju, blagovaonicu i dnevni boravak s izlazom na natkrivenu terasu, dvije spavaće sobe s vlastitim kupaonicama, gostinjskog toaleta i spremišta.
Okućnica je ambijentalno i hortikulturno ure
Kontakt info

- Agencija
-
DUX NEKRETNINE
- Kontakt osoba
- Dux Nekretnine
- Telefon 1
- + 385 51 518... Prikaži broj
- Telefon 2
- + 385 91 480 ... Prikaži broj
- Adresa
- Tizianova 8
- Rijeka, Hrvatska
Slične nekretnine

Barban, okolica, prekrasna autohtona kuća na mirnoj lokaciji
- 364.000€ 130 m2

ISTRA, BARBAN - Kamena starina s velikom okućnicom
- 364.000€ 200 m2

Novouređena prizemnica okružena prirodom
- 362.000€ 110 m2

ISTRA, BARBAN - Nova samostojeća kuća s potpunom privatnosti
- 362.000€ 110 m2

Barban, okolica, renovirana kuća za odmor s bazenom
- 370.000€ 115 m2

Barban, okolica, renovirana kuća sa bazenom
- 375.000€ 83 m2

Kuća s bazenom u Roh-Bau fazi, okolica Barbana
- 350.000€ 210 m2

Kuća s bazenom u Roh-Bau fazi, okolica Barbana
- 350.000€ 210 m2

ISTRA, BARBAN - Moderna kuća s bazenom
- 384.000€ 142 m2

Barban, okolica, kuća sa neometanim pogledom na more
- 335.000€ 206 m2