Cres - prodaja ekskluzivne novogradnje u starom centru, 50 m od mora
Cres
335.000€
6 090 €/m2
Tip
Stan
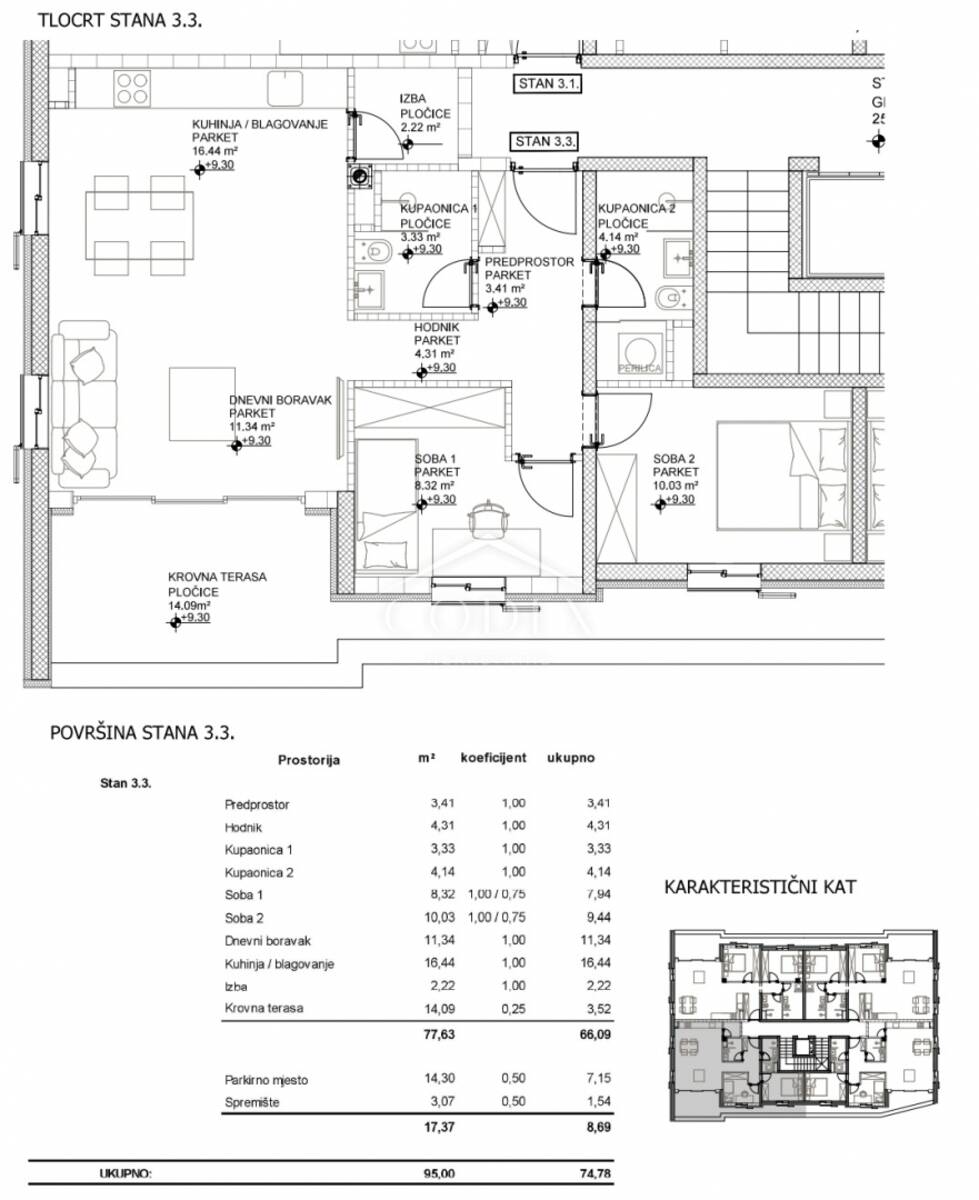
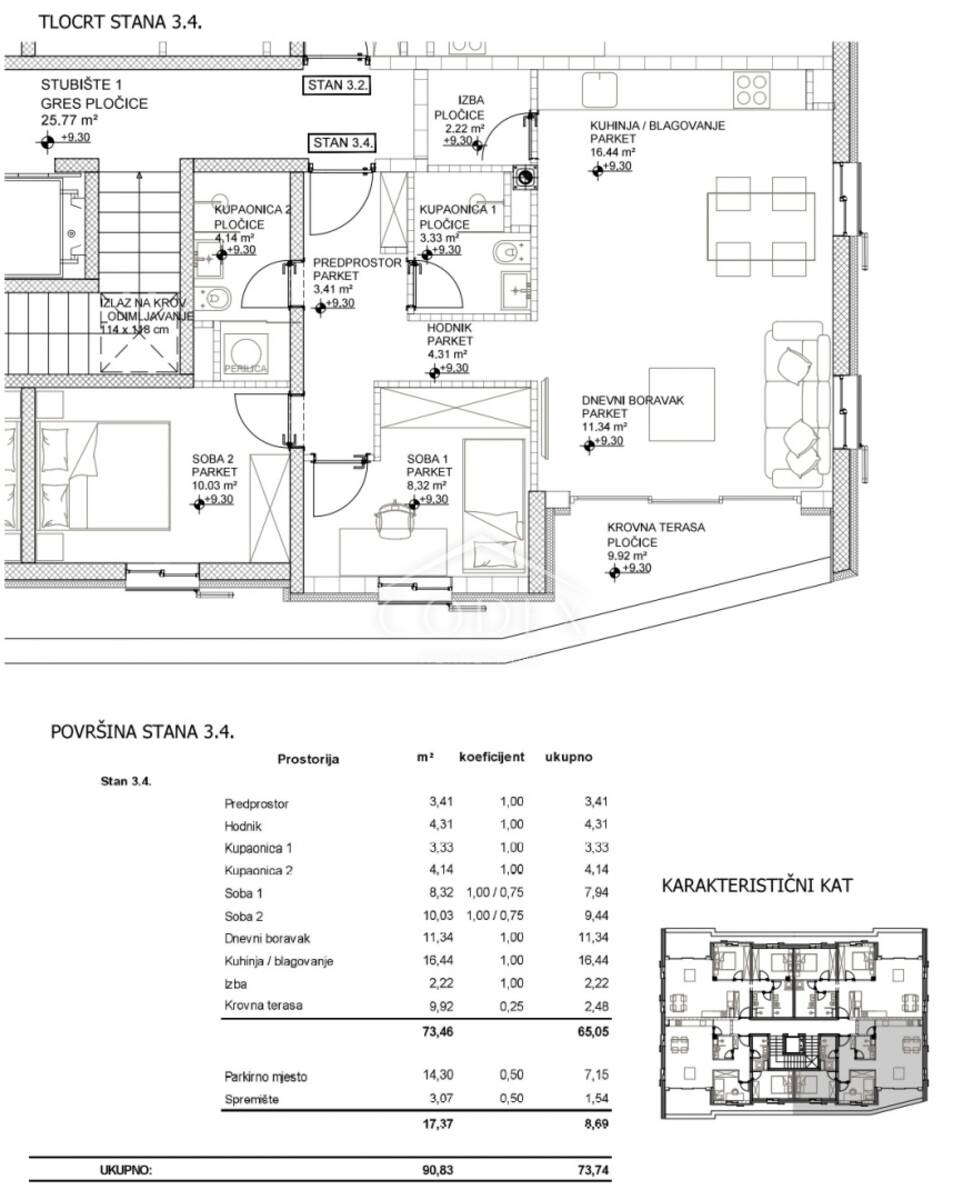
Površina
55 m2
Struktura
2
Detalji
- Tip
- Stan
- Struktura
- 2
- Cijena
- 335.000€
- Površina
- 55 m2 (6 090 €/m2)
- Kat
- 2
- Parkirno mjesto
- Da
- Ažuriran
- 31.12.2025
- ID
- 98615
Opis
U ponudi je jedina novogradnja u samom starom dijelu grada Cresa, smještena na svega 50 metara od mora, što je iznimna rijetkost koja se na tržištu pojavi jednom. Projekt obuhvaća ukupno 14 modernih jednosobnih i dvosobnih stanova te 3 poslovna prostora, pri čemu se stanovi prostiru na kvadraturama od 53 m² do 75 m² i raspoređeni su na tri etaže, odnosno na 1., 2. i 3. katu objekta.
Cjelokupna gradnja izvedena je prema vrhunskim standardima i u potpunosti prilagođena ambijentu starog grada, stvarajući savršen spoj autentičnog mediteranskog šarma i suvremenog komfora. Iza projekta stoji pouzdan i provjeren investitor s višegodišnjim iskustvom, poznat po visokoj kvaliteti gradnje, poštivanju ugovorenih rokova i transparentnom poslovanju.
Cijene stanova kreću se od 325.000 eura do 450.000 eura, ovisno o poziciji stana, katu i njegovoj veličini. Ova nekretnina idealna je kako za ugodno cjelogodišnje stanovanje, tako i za sigurnu turističku investiciju, uz izuzetnu dugoročnu vrijednost.
Lokacija u starom gradu Cresa predstavlja priliku koja se više ne ponavlja, stoga ne propustite mogućnost da budete dio povijesti, jer ovakva novogradnja u samom srcu starog grada Cresa ne čeka.
Agencijska provizija naplaćuje se u skladu s Općim uvjetima poslovanja koji su dostupni na stranici https://codexnekretnine.hr/o-nama/opci-uvjeti-poslovanja.
Nekretninu je moguće razgledati isključivo uz potpisani ugovor o posredovanju koji je temelj za daljnje ra
Slične nekretnine
Cres, 99m2, novogradnja, 2s+db, terasa
- 340.000€ 99 m2
OTOK CRES, CRES - Divan jednosoban stan s vrtom
- 312.000€ 75 m2
CRES, STAN U NOVOGRADNJI
- 312.000€ 75 m2
OTOK CRES, CRES - Stan 2S+DB u novogradnji
- 302.000€ 72 m2
CRES, STAN U NOVOGRADNJI
- 302.000€ 72 m2