CRIKVENICA, DRAMALJ - starina s projektom za luksuznu villu, pogled na more
Dramalj, Crikvenica
291.000€
1 531 €/m2
Tip
Kuća
Površina
190 m2
Struktura
5+
Detalji
- Tip
- Kuća
- Struktura
- 5+
- Cijena
- 291.000€
- Površina
- 190 m2 (1 531 €/m2)
- Površina zemljišta
- 300
- Terasa
- Da
- Udaljenost od mora
- 400m
- Garaža
- Da
- Parkirno mjesto
- Da
- Ažuriran
- 13.05.2026
- ID
- 104980
Opis
CRIKVENICA, DRAMALJ - starina s projektom za luksuznu villu, pogled na more
Zahtjev za građevinsku dozvolu predan je 11/2025., a svi doprinosi su plaćeni, što omogućuje brz nastavak realizacije bez dodatnih administrativnih zadržavanja.
Starina s projektom za luksuznu vilu - pogled na more, privatnost i dokumentacija
Na prodaju je nekretnina koja se sastoji od tri postojeća objekta - kuće, garaže i konobe (budući wellness), svi uredno ucrtani, smještena na mirnoj lokaciji svega 400 m zračne linije od mora. Pozicija osigurava visoku razinu privatnosti, bez direktnih pogleda susjednih objekata.
Na parceli se već nalazi garaža površine cca 36 m², te drugi objekt koji je predviđen za wellness sa jacuzzijem, sauna, tuš WC i vešeraj površine cca 20 m², što daje dodatnu funkcionalnost i vrijednost nekretnini.
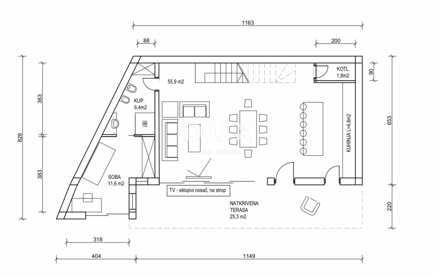
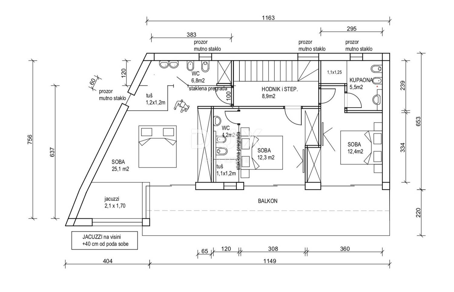
Za predmetnu nekretninu izrađen je projekt izgradnje luksuzne vile, s naglaskom na komfor, funkcionalan raspored i maksimalno korištenje vanjskog prostora, uključujući i bazen. Vila je projektirana tako da već iz prizemlja pruža pogled na more.
Prema projektu, kuća se sastoji od:
Prizemlja:
prostranog dnevnog boravka s kuhinjom i blagovaonicom (open space), spavaće sobe, kupaonice, kotlovnice te izlaza na natkrivenu terasu površine cca 25,5 m².
Kata:
tri spavaće sobe od kojih svaka ima svoju kupaonicu, uključujući master sobu (25m2) s vlastitom kupaonicom i jacuzzijem, hodnika te prostranog balkona.
Ukupna bruto površina vil
Kontakt info
- Agencija
-
DUX NEKRETNINE
- Kontakt osoba
- Dux Nekretnine
- Telefon 1
- + 385 51 518... Prikaži broj
- Telefon 2
- + 385 91 480 ... Prikaži broj
- Adresa
- Tizianova 8
- Rijeka, Hrvatska
Slične nekretnine
DRAMALJ, KUĆA ZA RENOVACIJU, S PROJEKTOM
- 291.000€ 160 m2
DRAMALJ, CRIKVENICA, KUĆA S PANORAMSKIM POGLEDOM
- 290.000€ 82 m2
CRIKVENICA, DRAMALJ - primorska kuća blizu mora 240 m2
- 339.000€ 240 m2
Dramalj kamena kuća
- 230.000€ 85 m2
CRIKVENICA, DRAMALJ - Vila novije gradnje s bazenom!
- 390.000€ 80 m2
DRAMALJ - potpuno uređena kuća s bazenom
- 390.000€ 80 m2
Dramalj, predivna kuća sa pogledom na more
- 400.000€ 132 m2
DRAMALJ, DVOJNA KUĆA S POGLEDOM
- 400.000€ 84 m2
DRAMALJ, DVOJNA KUĆA S POGLEDOM
- 400.000€ 84 m2