KOSTRENA, NOVOGRADNJA - DVOETAŽNI OBITELJSKI STAN S BAZENOM
Glavani, Kostrena
850.000€
3 400 €/m2
Tip
Stan
Površina
250 m2
Struktura
5+
Grijanje
Sustav grijanja, klimatizacije i ventilacije
Detalji
- Tip
- Stan
- Struktura
- 5+
- Cijena
- 850.000€
- Površina
- 250 m2 (3 400 €/m2)
- Grijanje
- Sustav grijanja, klimatizacije i ventilacije
- Terasa
- Da
- Parkirno mjesto
- Da
- Namještenost
- Namješten
- Ažuriran
- 20.01.2026
- ID
- 84862
Opis
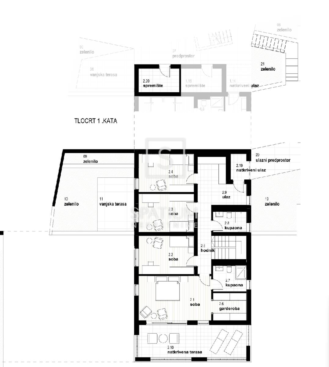
U mirnom naselju Glavani u Kostreni, na izuzetno atraktivnoj lokaciji, prodaje se prostrani četverosobni stan površine 251 m². Nekretnina je južno orijentirana, s obiljem prirodnog svjetla i prekrasnim pogledom na more. Kvalitetna gradnja i veliki vanjski prostor čine ovu nekretninu idealnom za obiteljski život.
Stan se sastoji od:
- dnevnog boravka i blagovaonice (42,20 m²) s kuhinjom (7,73 m²)
- četiri spavaće sobe (21,91 m², 14,20 m², 14,20 m² i 14,20 m²)
- tri kupaonice, garderobe, vešeraja, spremišta, izbe, hodnika i ulaza
- natkrivene terase (26,14 m²)
Dodatno stanu pripada:
- privatni bazen
- dva vanjska parkirna mjesta
- dvije vanjske terase i vrt
- spremište (6,48 m²)
Nekretnina je opremljena:
- podnim grijanjem putem dizalice topline
- klima uređajima
- ALU stolarijom ALU BEN
- protuprovalnim vratima i vrhunskom završnom obradom
Prodaje se po principu ključ u ruke, bez namještaja. U cijenu je uključen PDV, a kupac je oslobođen plaćanja poreza na promet nekretnina.
Smještena u neposrednoj blizini grada Rijeke, uokvirena uvalom Martinšćica i Bakarskim zaljevom, kostrenski poluotok dužine je nekih 10 kilometara i blago se spušta prema morskoj obali. Cijelom njegovom dužinom smještene su predivne plaže koje tijekom ljeta posjećuje na tisuće kupača. Najpoznatije i najposjećenije su one u uvali Žurkovo, zatim Smokvinovo, Svežanj, Spužvina, Podražica, Nova voda i Perilo.
Kostrena se sastoji od dvadesetak naselja, od
Kontakt info
- Agencija
-
Spatium Nekretnine
- Kontakt osoba
- Vedran Prica
- Telefon 1
- + 385 51 272... Prikaži broj
- Telefon 2
- + 385 95 812 ... Prikaži broj
- Adresa
- Šetalište Andrije Kačića Miošića 5
- Rijeka Centar
- Rijeka, Hrvatska
Slične nekretnine
KOSTRENA, NOVOGRADNJA - DVOETAŽNI OBITELJSKI STAN S BAZENOM
- 850.000€ 251 m2
KOSTRENA, NOVOGRADNJA - TROETAŽNI OBITELJSKI STAN S BAZENOM
- 880.000€ 183 m2
KOSTRENA, NOVOGRADNJA - TROETAŽNI OBITELJSKI STAN S BAZENOM
- 880.000€ 184 m2
KOSTRENA, NOVOGRADNJA - TROETAŽNI OBITELJSKI STAN S BAZENOM
- 880.000€ 220 m2
KOSTRENA, NOVOGRADNJA - DVOETAŽNI OBITELJSKI STAN S BAZENOM
- 750.000€ 166 m2
KOSTRENA, NOVOGRADNJA - OBITELJSKI STAN S PANORAMSKIM POGLEDOM
- 650.000€ 140 m2
KOSTRENA, NOVOGRADNJA - OBITELJSKI STAN S PANORAMSKIM POGLEDOM
- 650.000€ 140 m2
KOSTRENA, DVOETAŽNI STAN S PANORAMSKIM POGLEDOM
- 310.000€ 125 m2
Kostrena - prodaja 5S+DB stana, 125m2
- 285.000€ 125 m2
Stan Kostrena 2s+db 64m2 prizemlje terasa 225.000€
- 267.000€ 61 m2