RIJEKA, KOSTRENA - ekskluzivan dvoetažni stan 164,90 m2 novogradnja s prekrasn
Kostrena
692.600€
4 223 €/m2
Tip
Stan
Površina
164 m2
Struktura
4
Grijanje
Centralno
Detalji
- Tip
- Stan
- Struktura
- 4
- Cijena
- 692.600€
- Površina
- 164 m2 (4 223 €/m2)
- Površina zemljišta
- 182
- Kat
- Suteren
- Grijanje
- Centralno
- Terasa
- Da
- Parkirno mjesto
- Da
- Ažuriran
- 01.11.2025
- ID
- 91099
Opis
RIJEKA, KOSTRENA - ekskluzivan dvoetažni stan 164,90 m2 novogradnja s prekrasnim pogledom na more i bazenom + okućnica 182.60m2 - S2-D
U ponudi imamo nekretninu koja vam pruža moderni dizajn i eleganciju, komfor i vrhunsku opremu, a nalazi se na lijepoj mirnoj lokaciji nedaleko javnog prijevoza, škole, vrtića, trgovačkih centara te desetak minuta vožnje od Rijeke.
Kompleks od 4 stambene zgrade s ukupno 8 stanova nalazi se sjeverno od jadranske magistrale na području “Zelene Kostrene” odakle se pruža prekrasan pogled na
cijeli Kvarner.
U neposrednoj blizini nalazi se 10 kilometara uređenih pješačkih, biciklističkih i trim staza koje prolaze najvišim dijelovima Kostrene od vrha Solin do vrha Sopalj.
Pristup kućama uređen je s gornje ceste gdje se planira uređenje i proširenje postojeće prometnice.
Svakoj kući pripadaju četiri vanjska parkirna mjesta, odnosno dva parkirna mjesta po stambenoj jednici.
Svaka kuća sastoji se od dva stana.
Stanovi na gornje dvije parcele smješteni su jedan iznad drugoga, dok su na donje dvije parcele smješteni jedan pored drugoga.
Svakom stanu pripada dio okućnice.
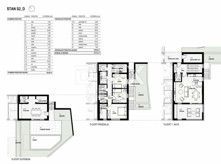
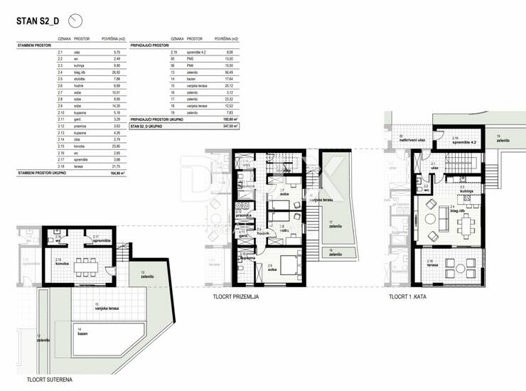
KUĆA D stan S2 - D:
STAMBENI PROSTORI:
- ulaz 5,75
- WC 2,49
- kuhinja 9,90
- dnevni boravak / blagovaona 26,92
- st
Kontakt info
- Agencija
-
DUX NEKRETNINE
- Kontakt osoba
- Dux Nekretnine
- Telefon 1
- + 385 51 518... Prikaži broj
- Telefon 2
- + 385 91 480 ... Prikaži broj
- Adresa
- Tizianova 8
- Rijeka, Hrvatska
Slične nekretnine
Kostrena, stan u novogradnji prvi red do mora
- 670.000€ 150 m2
Kostrena
- 666.000€ 138 m2
Kostrena
- 666.000€ 141 m2
Kostrena, 198m2, dvoetažni 4-sobni stan s dnevnim
- 730.000€ 198 m2
Kostrena, dvojna villa sa bazenom
- 730.000€ 213 m2
KOSTRENA, PREKRASNA NOVOGRADNJA S POGLEDOM NA MORE
- 757.000€ 198 m2
Kostrena vrhunska nekretnina
- 750.000€ 198 m2
Kostrena, moderan stan sa bazenom u novogradnji
- 750.000€ 110 m2
Kostrena - Unikatna niskoenergetska kuća
- 757.000€ 198 m2
Kostrena, stan u modernoj kući sa panoramskim pogledom
- 757.000€ 286 m2