ISTRA, LABIN - Komforno zemljište s građevinskom dozvolom
Labin
118.700€
138 €/m2
Tip
Zemljiste
Površina
857 m2
Detalji
- Tip
- Zemljiste
- Cijena
- 118.700€
- Površina
- 857 m2 (138 €/m2)
- Udaljenost od mora
- 5000m
- Ažuriran
- 07.10.2025
- ID
- 80689
Opis
ISTRA, LABIN - Komforno zemljište s građevinskom dozvolom
Na jugoistočnoj obali Istre, na mjestu gdje se zeleni brežuljci sastaju s morem, tamo gdje se sjedinjuju priroda i baština nalaze se dva gradića slične veličine s različitim, ali međusobno nadopunjujućim karakterom- Labin i Rabac.
Slikoviti grad Labin uzdiže se na brdašcu visokom 320m udaljenom svega četiri kilometara od bijelih šljunčanih plaža u Rapcu. Isprepleten bogatom poviješću i rudarstvom koje je obilježilo ovaj kraj, Labin koji je kratkotrajno bio proglašen samostalnom republikom je danas fascinantan grad proturječnosti; starog i novog, povijesti i sadašnjosti, turizma i umjetnosti.
Nedaleko grada Labina, na prodaju je komforno zemljište s građevinskom dozvolom.
Zemljište se nalazi u pitomom naselju i nudi pritom savršenu ravnotežu ruralnog okruženja i blizinu mora i urbanih sadržaja.
Katastarska čestica je relativno pravokutnog oblika, teren je ravan i čist a elektroenergetska, vodovodna i elektronička komunikacijska infrastruktura nalazi se u blizini zemljišta.
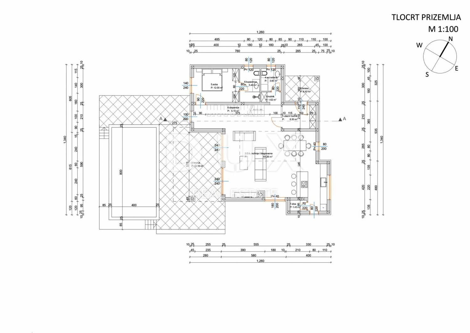
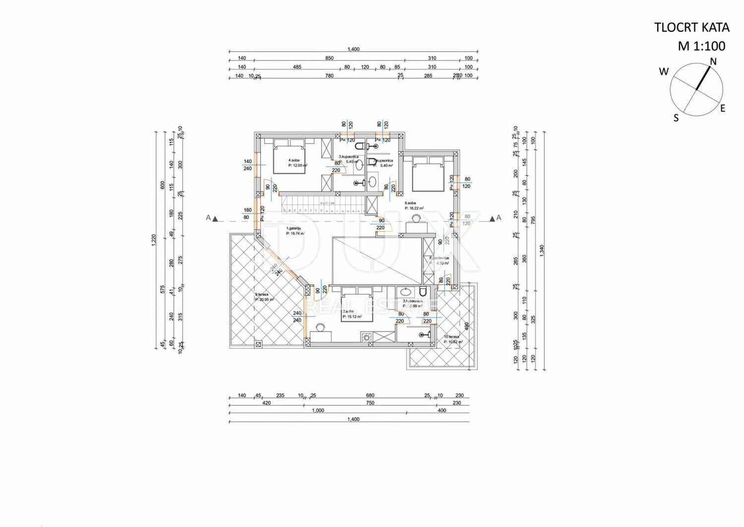
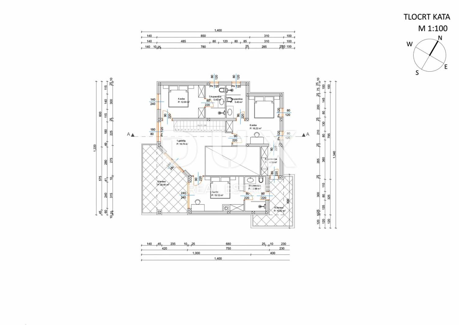
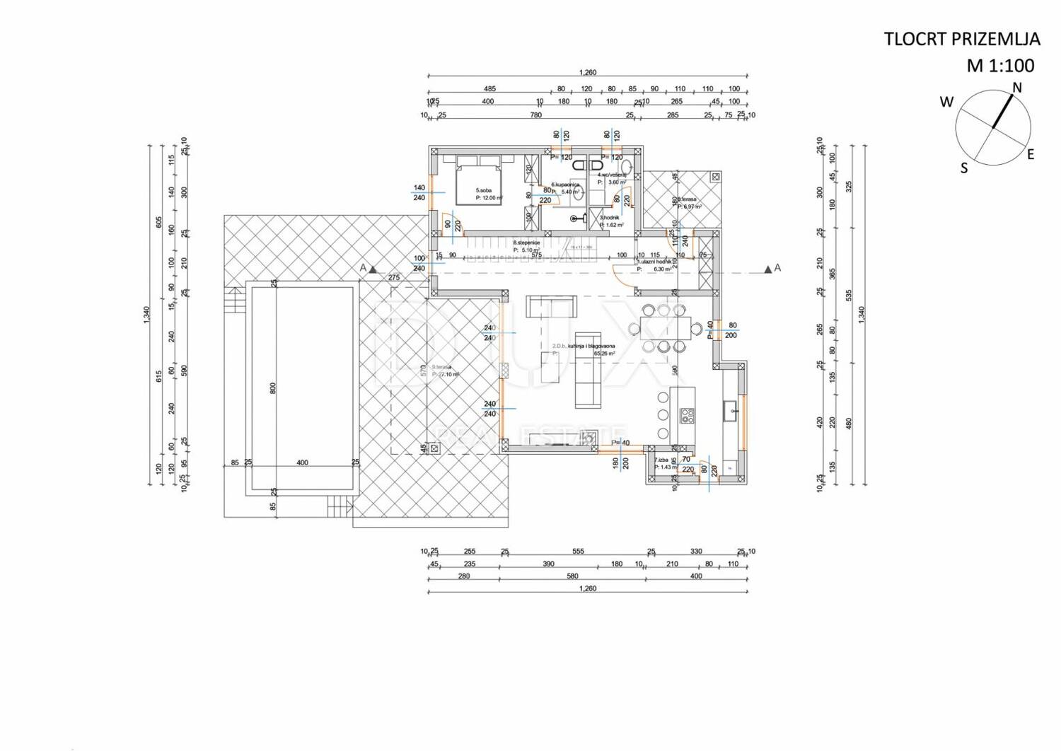
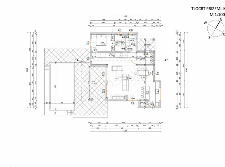
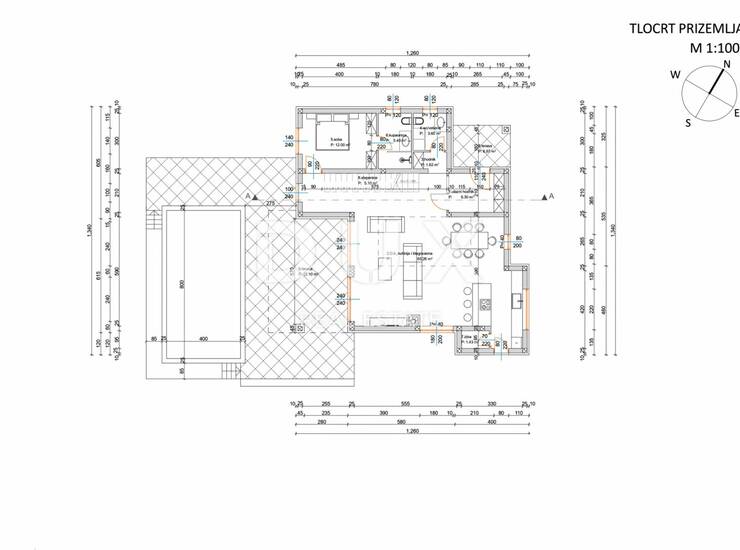
Zemljište ima pravomoćnu građevinsku dozvolu za izgradnju građevine stambene namjene koja se svojim izgledom i stilom uklopa u postojeći ambijent i krajolik i pomoćne građevine- bazena.
Projektirana je kao komforna samostojeća kuća s jednom stambenom jedinicom koja se proteže kroz dvije etaže: prizemlje i kat.
Ovo zemljište pruža izuzetnu priliku za gradnju obiteljskog doma ili kuće za odmor
Kontakt info

- Agencija
-
DUX NEKRETNINE
- Kontakt osoba
- Dux Nekretnine
- Telefon 1
- + 385 51 518... Prikaži broj
- Telefon 2
- + 385 91 480 ... Prikaži broj
- Adresa
- Tizianova 8
- Rijeka, Hrvatska
Slične nekretnine

GRAĐEVINSKO ZEMLJIŠTE SA PROJEKTOM I DOZVOLOM
- 118.700€ 857 m2

Labin, zemljište s građevinskom dozvolom na mirnoj lokaciji
- 119.000€ 1031 m2

Labin, Građevinsko zemljište s pogledom na more 1075 m2
- 118.250€ 1075 m2

Veliko zemljište u blizini Labina
- 120.000€ 3313 m2

LABIN, SAMO U NAŠOJ PONUDI, TEREN S GRAĐEVINSKOM DOZVOLOM
- 120.000€ 2800 m2

Labin, građevinsko zemljište sa objektom za renovaciju
- 115.000€ 1700 m2

Labin, okolica građevinsko zemljište s projektom na mirnoj lokaciji
- 115.000€ 1180 m2

LABIN, GRAĐEVINSKO ZEMLJIŠTE 3 KM OD CENTRA
- 115.000€ 1550 m2

LABIN, GRAĐEVINSKO ZEMLJIŠTE S PROJEKTOM I GRAĐEVINSKOM DOZVOLOM
- 115.000€ 1200 m2

Građevinski teren na odličnoj lokaciji - Labin!
- 115.000€ 1000 m2

ISTRA, LABIN - Građevinsko zemljište uz netaknutu prirodu
- 115.000€ 1880 m2