ISTRA, LABIN - Građevinsko zemljište 500 m2 sa projektom
Labin
120.000€
240 €/m2
Tip
Zemljiste
Površina
500 m2
Detalji
- Tip
- Zemljiste
- Cijena
- 120.000€
- Površina
- 500 m2 (240 €/m2)
- Ažuriran
- 27.02.2026
- ID
- 93252
Opis
ISTRA, LABIN - Građevinsko zemljište 500 m2 sa projektom
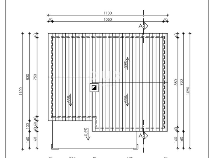
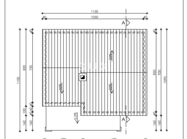
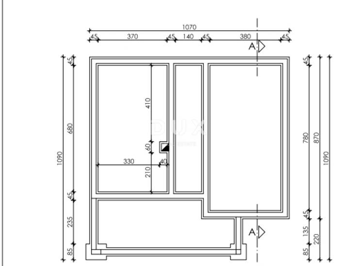
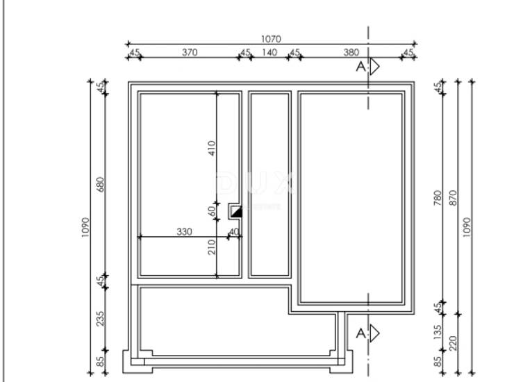
Prodaje se građevinsko zemljište sa građevinskom dozvolom.
Građevinska dozvola se odnosi na građenje prizemnice koja se sastoji o hodnika, kuhinje sa blagovaonicom i dnevnim boravkom, predsoblja, dvije spavaće sobe, dvije kupaonice i natkrivene terase (20m2).
Površina prizemnice je 70 m2.
Za projekt će biti plaćene komunalije.
Voda i struja na parceli.
Asfaltni pristup.
Zemljište se nalazi na mirnoj lokaciji a opet blizu svih sadržaja potrebnih za funkcioniranje jedne obitelji, ili pak investicija u turističke svrhe.
Za sve dodatne informacije stojimo na raspolaganju.
Poštovani klijenti, agencijska provizija naplaćuje se u skladu s Općim uvjetima poslovanja:
www.dux-nekretnine.hr/opci-uvjeti-poslovanja
ID KOD AGENCIJE: 42665
Gordana Grabar Čubrilo
Agent pripravnik
Mob: + 385 91 555 ... Prikaži broj
Tel: + 385 91 480 ... Prikaži broj
E-mail: gordana@dux-istra.com
www.dux-istra.com
Kontakt info
- Agencija
-
DUX NEKRETNINE
- Kontakt osoba
- Dux Nekretnine
- Telefon 1
- + 385 51 518... Prikaži broj
- Telefon 2
- + 385 91 480 ... Prikaži broj
- Adresa
- Tizianova 8
- Rijeka, Hrvatska
Slične nekretnine
Veliko zemljište u blizini Labina
- 120.000€ 3313 m2
Labin, okolica, građevinsko zemljište na mirnoj lokaciji
- 120.000€ 1586 m2
Labin, okolica, građevinsko zemljište sa pogledom na more
- 120.000€ 975 m2
LABIN, RIPENDA ZEMLJIŠTE POGLED MORE, EKSKLUZIVNO!
- 120.000€ 18787 m2
LABIN, GRAĐEVINSKO ZEMLJIŠTE U BLIZINI PLAŽE
- 120.000€ 409 m2
LABIN, SAMO U NAŠOJ PONUDI, TEREN S GRAĐEVINSKOM DOZVOLOM
- 120.000€ 2800 m2
Labin, zemljište s građevinskom dozvolom na mirnoj lokaciji
- 119.000€ 1031 m2
LABIN, ZEMLJIŠTE S PROJEKTOM I DOZVOLOM
- 119.000€ 1031 m2
LABIN, OKOLICA, GRAĐEVINSKO ZEMLJIŠTE SA PROJEKTOM I DOZVOLOM
- 119.000€ 857 m2
GRAĐEVINSKO ZEMLJIŠTE SA PROJEKTOM I DOZVOLOM
- 118.700€ 857 m2
ISTRA,LABIN,OKOLICA, ZEMLJIŠTE S DOZVOLOM ZA GRADNJU
- 118.700€ 1000 m2
ISTRA, LABIN - Komforno zemljište s građevinskom dozvolom
- 118.700€ 857 m2