OPATIJA, MATULJI - Odlična novogradnja u široj okolici centra Matulja
Matulji
465.000€
3 496 €/m2
Tip
Stan
Površina
133 m2
Struktura
4
Detalji
- Tip
- Stan
- Struktura
- 4
- Cijena
- 465.000€
- Površina
- 133 m2 (3 496 €/m2)
- Kat
- 2
- Grijanje
- Podno grijanje
- Terasa
- Da
- Parkirno mjesto
- Da
- Ažuriran
- 19.10.2025
- ID
- 66634
Opis
OPATIJA, MATULJI - Odlična novogradnja u široj okolici centra Matulja
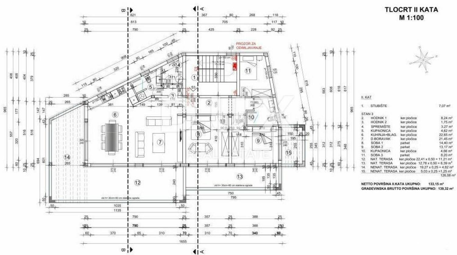
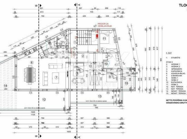
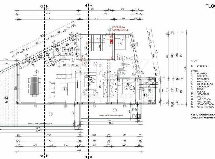
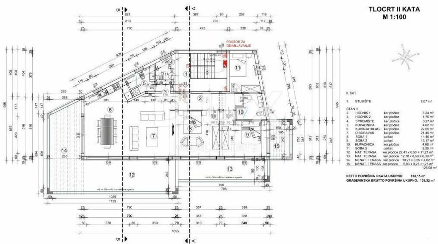
Dux predstavlja atraktivnu novogradnju s panoramskim pogledom na Kvarnerski zaljev, smještenu u Matuljima. Zgrada ima tri stambene jedinice, svaka smještena na svojoj etaži. Stan na drugom katu uključuje ulazni hodnik, prostranu open-space kuhinju s blagovaonicom i dnevnim boravkom te terasu od 60 m² koja obuhvaća jugoistočni dio zgrade. Stan također ima tri spavaće sobe, dvije kupaonice i spremište, kao i dva parkirna mjesta.
Zgrada je opremljena fasadom debljine 10 cm, a stanovi imaju PVC stolariju u antracit boji, električne rolete, protuprovalna vrata, pločice dimenzija 120 x 120 cm i kvalitetan hrastov parket u spavaćim sobama. Grijanje i hlađenje osigurano je kombinacijom podnog grijanja i fan-coil sustava na dizalicu topline, pružajući visoku energetsku učinkovitost i komfor.
Nekretnina je u sustavu PDV-a, pa kupac ne plaća porez na promet nekretnina, a prodaje se po principu "ključ u ruke".
OPATIJA:
Opatija, predivan obalni grad smješten na Jadranskom moru poznato je turističko odredište za turiste iz cijelog svijeta. Grad je okružen prekrasnom prirodom, u podnožju planine Učka. Iz nekretnina u Opatiji pruža se neprocjenjivi pogled na more i okolne otoke Krk i Cres. Opatija je okružena šarmantnim malenim gradovima s starim kućama smještenim u uskim uličicama bogate povijesti. Ulice grada Opatije čine nekretnine koje se ističu specifičnom arhitekturom
Kontakt info
- Agencija
-
DUX NEKRETNINE
- Kontakt osoba
- Dux Nekretnine
- Telefon 1
- + 385 51 518... Prikaži broj
- Telefon 2
- + 385 91 480 ... Prikaži broj
- Adresa
- Tizianova 8
- Rijeka, Hrvatska
Slične nekretnine
Matulji - prodaja stana u novogradnji sa pogledom na more!
- 450.000€ 132 m2
MATULJI - 3S+DB, novogradnja, bazen
- 439.000€ 154 m2
Matulji - trosobni stan s pogledom na more
- 420.000€ 88 m2
Matulji - trosobni stan s pogledom na more
- 420.000€ 88 m2
STAN S PRIVATNIM BAZENOM, MATULJI
- 415.000€ 118 m2
MATULJI, STAN U KUĆI S 3 PARKIRNA MJESTA
- 410.000€ 123 m2
Matulji, 93.40m2, 3S+DB, terasa, 2-parkirna mjesta
- 400.000€ 93 m2
MATULJI, NOVOGRADNJA, TROSOBNI STAN S POGLEDOM NA MORE
- 400.000€ 120 m2