NOVOGRADNJA PERMANI 2S+DB
Permani, Matulji
204.000€
2 720 €/m2
Tip
Stan
Površina
75 m2
Struktura
3
Detalji
- Tip
- Stan
- Struktura
- 3
- Cijena
- 204.000€
- Površina
- 75 m2 (2 720 €/m2)
- Kat
- 1
- Ažuriran
- 18.04.2026
- ID
- 73887
Opis
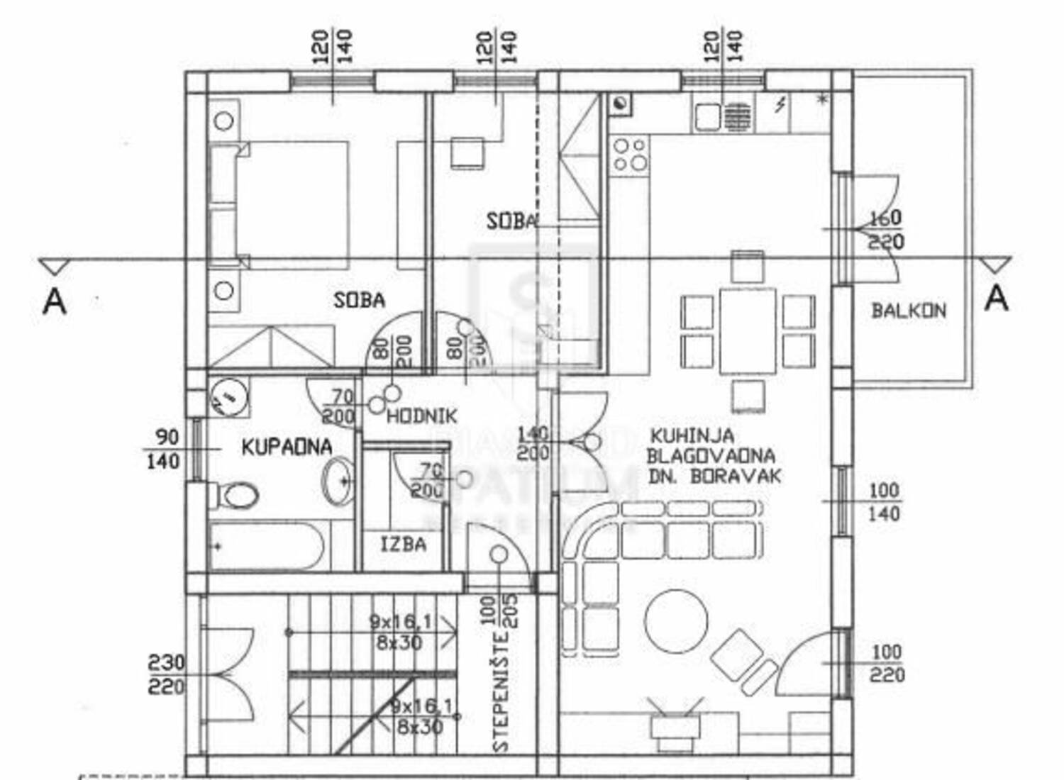
Dvosobni stan u novogradnji – Permanima, 75 m², prvi kat
Na prodaju je moderan dvosobni stan s dnevnim boravkom u kvalitetnoj novogradnji na mirnoj lokaciji u Permanima. Stan se nalazi na prvom katu i prostire se na 75 m². Sastoji se od prostranog dnevnog boravka s izlazom na balkon, kuhinje s blagovaonom, dvije spavaće sobe, kupaonice i izbe.
Stanu pripada jedno parkirno mjesto. Prodaje se po principu ključ u ruke, a trenutno je moguće sudjelovati u odabiru podnih obloga i sanitarija, što omogućava prilagodbu interijera prema vlastitom ukusu.
Rok useljenja je predviđen krajem 2025. godine.
Lokacija je idealna za one koji žele mir i privatnost, ali i brzu povezanost s gradom. Centar Rijeke udaljen je svega 15-ak minuta vožnje automobilom.
Za više informacija i razgledavanje slobodno se javite.
ID KOD AGENCIJE: 3001-79
Kontakt info
- Agencija
-
Diamond Real Estate
- Kontakt osoba
- Robert Pinzan
- Telefon 1
- + 385 (0)52 210... Prikaži broj
- Adresa
- Partizanska 5A
- Poreč, Hrvatska
Slične nekretnine
NOVOGRADNJA PERMANI 2S+DB
- 204.000€ 75 m2
NOVOGRADNJA PERMANI 2S+DB
- 204.000€ 75 m2
PERMANI, DVOSOBAN STAN U NOVOGRADNJI, 2.200€/m2
- 203.000€ 72 m2
PERMANI, DVOSOBAN STAN U NOVOGRADNJI
- 203.000€ 72 m2
PERMANI, DVOSOBAN STAN U NOVOGRADNJI
- 203.000€ 72 m2
PERMANI, DVOSOBAN STAN U NOVOGRADNJI
- 203.000€ 72 m2
Permani, stanovi u modernoj novogradnji
- 202.720€ 72 m2
MATULJI, PERMANI - Stanovi u novogradnji na mirnoj lokaciji
- 202.720€ 72 m2
MATULJI, PERMANI - Stanovi u novogradnji na mirnoj lokaciji
- 202.720€ 72 m2
MATULJI, PERMANI - Stanovi u novogradnji na mirnoj lokaciji
- 202.720€ 72 m2
PERMANI NOVOGRADNJA 2800 €/m2
- 202.720€ 72 m2
Matulji, Permani - prodaja stana u novogradnji!
- 202.700€ 72 m2