Elegantan stan na TOP lokaciji u Pješčanoj Uvali, novogradnja!
Pješčana Uvala, Medulin
575.000€
5 000 €/m2
Tip
Stan
Površina
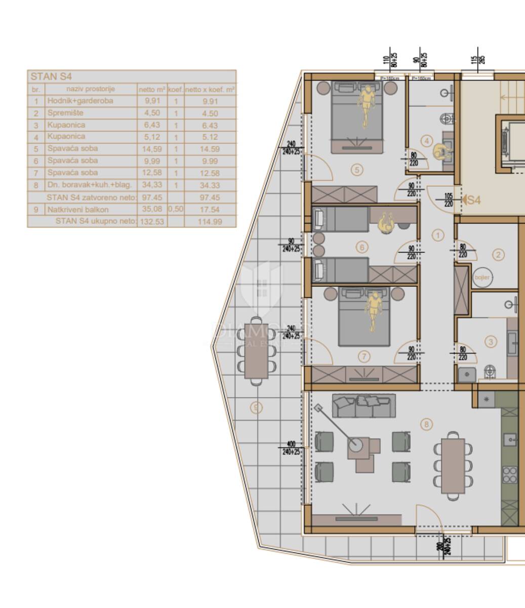
115 m2
Struktura
4
Detalji
- Tip
- Stan
- Struktura
- 4
- Cijena
- 575.000€
- Površina
- 115 m2 (5 000 €/m2)
- Kat
- 1
- Garaža
- Da
- Ažuriran
- 24.01.2026
- ID
- 60234
Opis
Istra, Pješčana Uvala
Na atraktivnoj lokaciji, u Pješčanoj Uvali izgraditi će se luksuzna zgrada od svega 6 stanova. Pješčana Uvala je poznato turističko mjesto zbog svojih prekrasnih prirodnih ljepota. Udaljena je svega 10-tak minuta od centra grada Pule.
Ovaj prekrasan stan sastojati će se od hodnika s garderobom, tri spavaće sobe od kojih dvije imaju izlaz na prostranu terasu, dvije kupaonice, ostave, dnevnog boravka povezanog s kuhinjom i blagovaonicom koji također imaju izlaz na terasu, što čini ukupnu kvadraturu stana od 115 m2. Uz stan dolaze i dva parkirna mjesta koja se mogu birati između garažnih ili vanjskih te se dodatno i naplaćuju.
Bilo da tražite novi dom ili investiciju, ovaj stan predstavlja izuzetnu priliku. Ne propustite priliku postati vlasnikom ovog predivnog stana i uživati u svim pogodnostima koje pruža!
ID KOD AGENCIJE: 1041-278
Kontakt info
- Agencija
-
Diamond Real Estate
- Kontakt osoba
- Robert Pinzan
- Telefon 1
- + 385 (0)52 210... Prikaži broj
- Adresa
- Partizanska 5A
- Poreč, Hrvatska
Slične nekretnine
Trosoban stan s vrtom u Pješčanoj Uvali, novogradnja!
- 585.000€ 117 m2
ISTRA, PJEŠČANA UVALA - Luksuzan stan prvi red do mora
- 595.000€ 83 m2
Elegantan trosoban stan u Pješčanoj Uvali s pogledom na more!
- 595.000€ 119 m2
Pula, stan u luksuznoj novogradnji uz more!
- 595.000€ 73 m2
ISTRA, PJEŠČANA UVALA - Luksuz s pogledom na more i liftom!
- 596.100€ 119 m2
ISTRA, PJEŠČANA UVALA - Luksuz s pogledom na more i liftom!
- 551.650€ 110 m2
Luksuzan stan u Pješčanoj Uvali s pogledom na more!
- 550.000€ 110 m2