Opatija - smart luksuzna villa sa bazenom kraj mora!
Opatija - Centar, Opatija
3.500.000€
11 666 €/m2
Tip
Kuća
Površina
300 m2
Struktura
5+
Detalji
- Tip
- Kuća
- Struktura
- 5+
- Cijena
- 3.500.000€
- Površina
- 300 m2 (11 666 €/m2)
- Grijanje
- Centralno etažno električno grijanje,Kamin,Klima
- Terasa
- Da
- Garaža
- Da
- Parkirno mjesto
- Da
- Ažuriran
- 19.10.2025
- ID
- 12039
Opis
Opatija - smart luksuzna villa na 300 m od mora, sa bazenom i prekrasnim pogledom na more!
Na vrhunskoj lokaciji u Opatiji, nedaleko od samog centra, sa očaravajućim pogledom na Opatiju i Kvarner, prodaje se moderna smart villa, na 3 etaže.
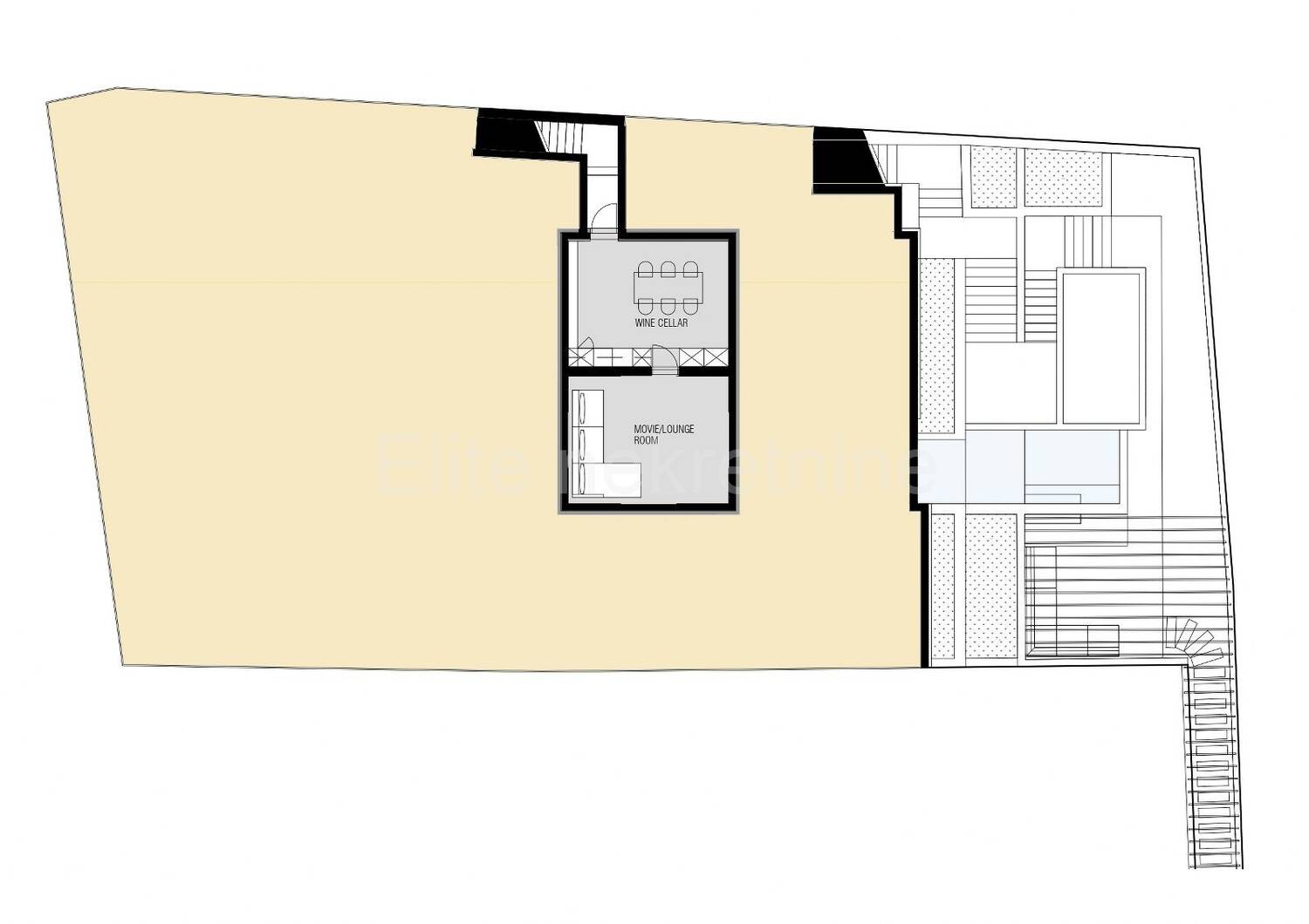
Villa se sastoji od prizemlja i 2 kata, ukupne stambene površine od 300 m2.
Okružuje ju prostrana okućnica od 474 m2 na kojoj se nalazi preljevni bazen i sunčalište.
Bar kraj bazena, vinska prostorija, prostrani dnevni boravci, 3 prostrane spavaće sobe svaka sa svojom kupaonicom, lounge zona, kuhinja sa otokom, te terase od kojih jedna sadrži i jacuzzi samo su neke od prostorija koje ova prekrasna villa nudi.
Cijela vila je osmišljena da sadrži integrirani smart home sustav čime štedi energiju i nudi izuzetnu udobnost.
U izgradnji su korišteni najkvalitetniji materijali i oprema čime ovu vilu posebnom prilikom na tržištu.
Prekrasni dizajn i decentno uređena okućnica savršeno je okruženje za obiteljska ili prijateljska druženja.
Ovo je luksuzna nekretnina na traženoj lokaciji - rijetkost na tržištu!
Agencijska provizija naplaćuje se u skladu s Općim uvjetima poslovanja koji su dostupni na stranici www.elite-nekretnine.hr/opci-uvjeti-poslovanja.
Kontakt info

- Agencija
-
Elite nekretnine
- Kontakt osoba
- Dino Straga
- Mobilni telefon
- + 385 91 55 15... Prikaži broj
- Adresa
- Ciottina 24 b
- Centar
- Rijeka, Hrvatska
Slične nekretnine

Opatija, projekt - moderna vilas bazeno i pogledom na more
- 3.500.000€ 348 m2

Opatija, jedinstvena villa na izuzetnoj lokaciji, 427 m2
- 3.495.000€ 427 m2

Opatija, projekt - moderna vila s bazenom i pogledom na more
- 3.600.000€ 348 m2

Opatija, projekt - moderna vila s bazenom i pogledom na more
- 3.400.000€ 319 m2

OPATIJA - Prekrasna vila par minuta do mora
- 3.300.000€ 500 m2

Opatija, prekrasna kuća sa stanovima
- 3.250.000€ 482 m2

Opatija - dvojna vila, 4 stana, predivan pogled na more!
- 3.200.000€ 481 m2

Opatija, luksuzna villa
- 3.150.000€ 550 m2

OPATIJA, CENTAR - Vila sa 6 apartmana
- 3.900.000€ 641 m2

Luksuzna vila u centru Opatije
- 3.990.000€ 758 m2

OPATIJA- villa 2.RED DO MORA!! 500m2 + uređena okućnica 900m2
- 2.950.000€ 500 m2

OPATIJA, VILA SA ČETIRI STANA NA VRHUNSKOJ LOKACIJI
- 2.950.000€ 482 m2