OPATIJA, IKA - stan u novogradnji s terasom i prekrasnim pogledom na more
Oprić, Opatija
388.500€
4 980 €/m2
Tip
Stan
Površina
78 m2
Struktura
3
Detalji
- Tip
- Stan
- Struktura
- 3
- Cijena
- 388.500€
- Površina
- 78 m2 (4 980 €/m2)
- Površina zemljišta
- 1200
- Kat
- 2
- Grijanje
- Sustav grijanja, klimatizacije i ventilacije
- Terasa
- Da
- Udaljenost od mora
- 400m
- Parkirno mjesto
- Da
- Ažuriran
- 09.03.2026
- ID
- 71129
Opis
OPATIJA, IKA - stan u novogradnji s terasom i prekrasnim pogledom na more
Ekskluzivno, samo u našoj ponudi, DUX predstavlja fantastičnu priliku za kupnju novogradnje u Opatiji s optimalnom kvadraturom.
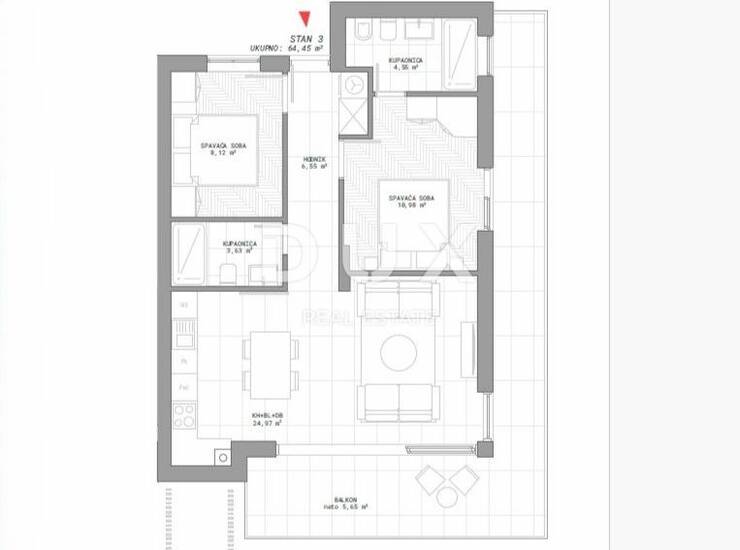
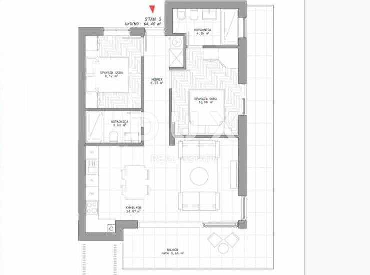
Stan S3 sastoji se od hodnika, dvije spavaće sobe, dvije kupaonice te dnevnog boravka koji je povezan s kuhinjom, blagovaonicom i terasom.
Fantastične prednosti ove zgrade uključuju:
- idealne tlocrtne rasporede
- južno orijentirani dnevni boravak s izlazom na terasu
- natkrivene terase s pogledom na more
- vrhunsku kvalitetu parketa, keramike, sanitarija i vrata
- aluminijsku stolariju
- velike klizne stijene
U kupoprodajnu cijenu uključena su dva parkirna mjesta. Iz svih stanova pruža se kvalitetan pogled na more.
Zgrada se nalazi u mirnoj i privatnoj ulici bez aktivnog prometa, na svega 400 m zračne linije od mora.
Ova pozicija u izgradnji trenutno je jedna od rijetkih prilika za realizaciju novogradnje s optimalnim kvadraturama u Opatiji.
Budući vlasnik može se pješice spustiti do plaže unutar deset minuta, vožnja do plaže traje samo dvije minute, a do centra Opatije osam minuta.
Ova nekretnina prodaje se "ključ u ruke", što znači da je stan opremljen i spreman za namještanje. Planirano useljenje je u ljeto 2026.
Za dogovaranje posjete nekretnine nazovite agenta s povjerenjem - konzultacija na njemačkom jeziku moguća.
Poštovani klijenti, agencijska provizija naplaćuje se u skladu s Općim uvjetima poslovanja: www.dux-nekretnine.hr
Kontakt info
- Agencija
-
DUX NEKRETNINE
- Kontakt osoba
- Dux Nekretnine
- Telefon 1
- + 385 51 518... Prikaži broj
- Telefon 2
- + 385 91 480 ... Prikaži broj
- Adresa
- Tizianova 8
- Rijeka, Hrvatska
Slične nekretnine
Oprić - prodaja dvoetažnog stana sa pogledom na more
- 390.000€ 85 m2
Oglas
- 380.400€ 76 m2
Ika, dvoetažni stan
- 370.000€ 86 m2
OPRIĆ, TROSOBNI STAN S BAZENOM
- 364.000€ 100 m2
OPATIJA, OPRIĆ - Pogled na more i vrt za uživanje, 2SDB 74m2
- 350.000€ 74 m2
Oprić - prodaja dvoetažnog stana sa pogledom na more
- 430.000€ 85 m2