Prodajemo luksuzni stan u općini Tar s dvorištem i otvorenim bazenom, a i...
Tar, Poreč
538.500€
3 186 €/m2
Tip
Stan
Površina
169 m2
Struktura
3
Detalji
- Tip
- Stan
- Struktura
- 3
- Cijena
- 538.500€
- Površina
- 169 m2 (3 186 €/m2)
- Površina zemljišta
- 100
- Kat
- 2
- Ukup. katova
- 2
- Udaljenost od mora
- 2500m
- Parkirno mjesto
- Da
- Ažuriran
- 28.04.2026
- ID
- 107234
Opis
Prodajemo luksuzni stan u općini Tar s dvorištem i otvorenim bazenom, a iz stana se pruža predivan pogled na more.
Stan se nalazi u zgradi sa sveukupno 4 stana.
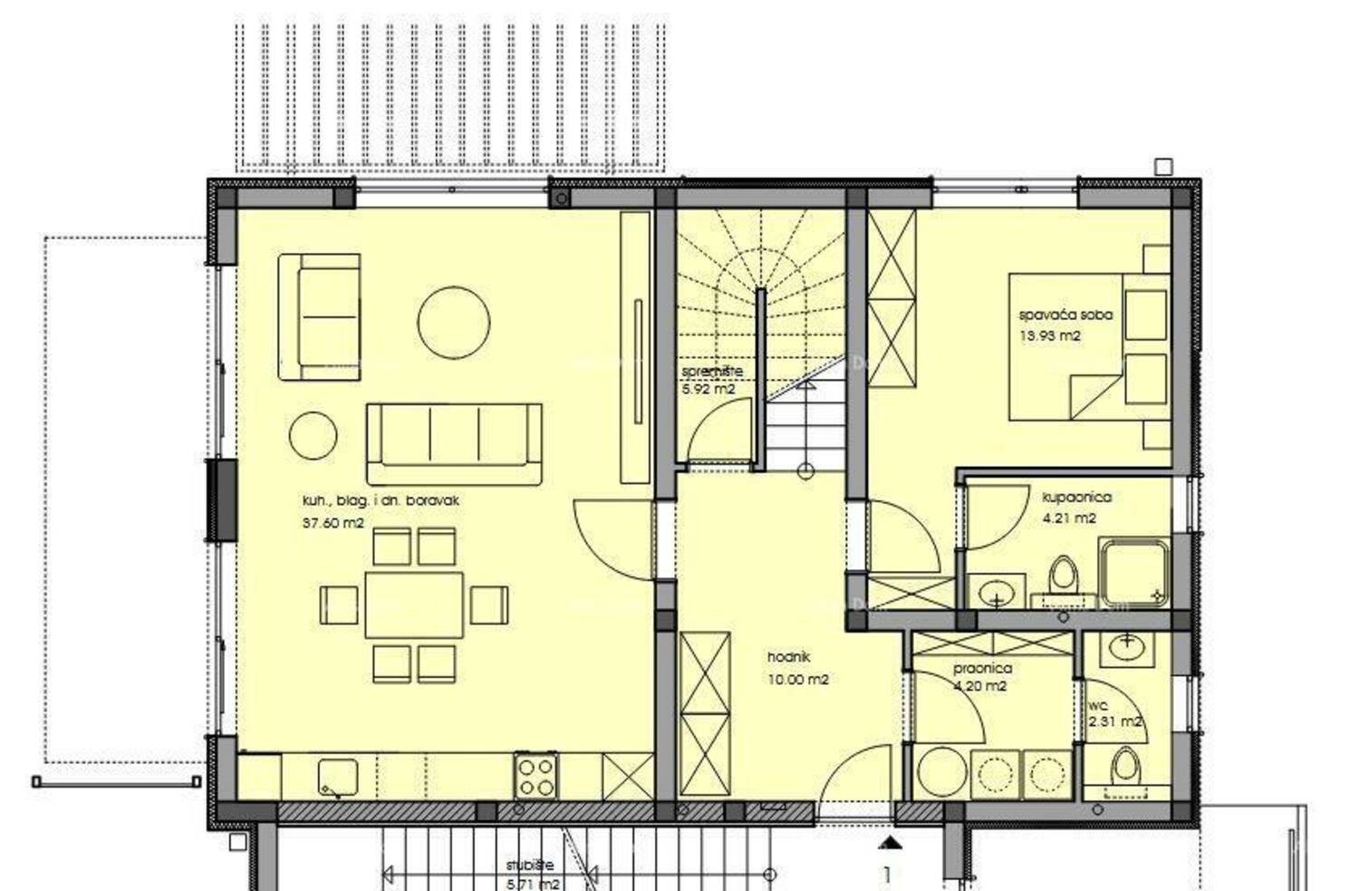
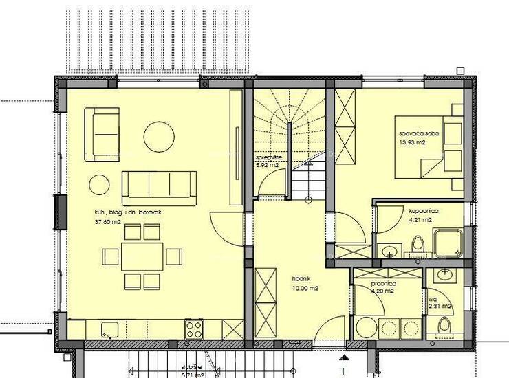
Stan se proteže na 2 kata. U prizemnom dijelu se nalazi dnevni boravak s kuhinjom i blagovaonom otvorenog tipa. Ovdje se nalazi i praona s WC-om i spavaća soba sa kupaonicom.
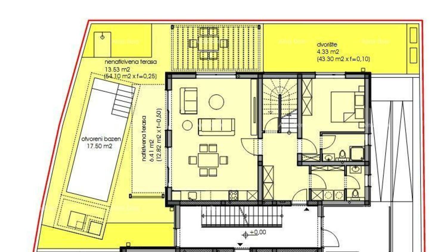
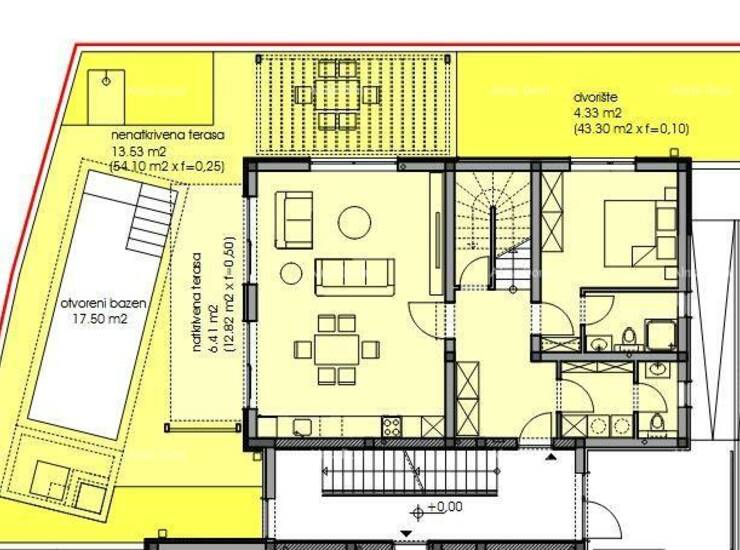
Dinji dio stana je okružen terasom i dvorištem u kojem se nalazi otvoreni bazen, te solarni tuš.
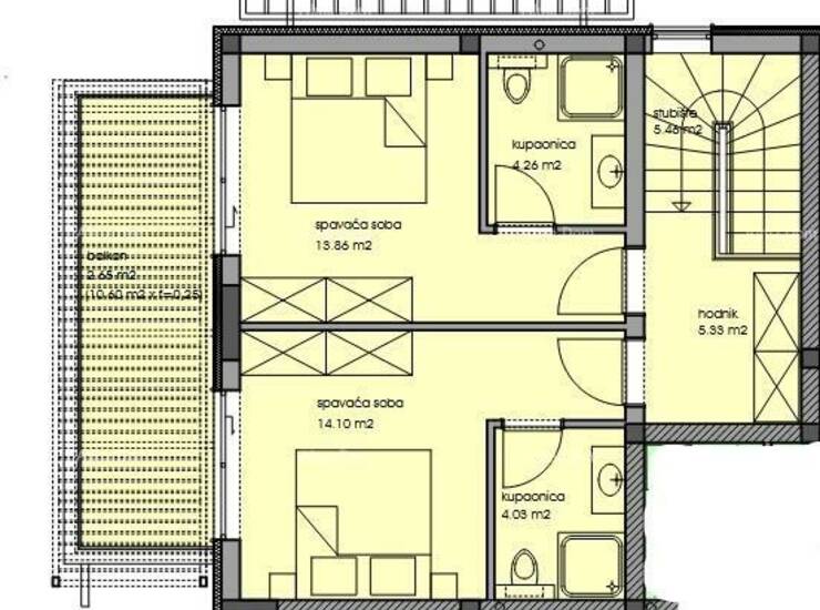
Iz hodnika stubištem se ide na gornji kat stana na kojem se nalaze 2 spavaće sobe svaka sa svojom kupaonicom i izlazom na terasu s malim pogledom na more.
Prizemlje:
- kuhinja, blagovaona i dnevni boravak 37.60m2
- hodnik 10,56 m2
- spavaća soba 13.93 m2
- kupaonica 4.21 m2
- praonica 4.20 m2
- WC 2.31 m2
- spremište (ispod stubišta) 3,01 m2
- stubište 4,90 m2
- natkrivena terasa 12.90 m2*koef.0,50=6.45 m2
- otvoreni bazen 17,50 m2
- dvorišna terasa 54,10 x 0,20 = 10,82 m2
- dvorište 43.30 m2*koef.0,10= 4.33 m2
- parking 12,50 m2
Gornji kat stana:
- stubište 4,90 m2
- hodnik 5.33 m2
- spavaća soba 13.86
- s kupaonicom 4.26 m2
- spavaća soba 14.10 m2
- s kupaonicom 4.03 m2
- balkon 10.60 m2*koef.0.25 =2.65 m2
UKUPNO STAN 1 - korisne površine 145,80 m2
Spremište 1 - 5.80m2*koef.0,50=2.90 m2
UKUPNO 169,45 m2
Stanovi sui opremljeni sa:
-vanjska stolarija Aluminij i pvc sa komarnicima i električnim podizanjem roleta
-sobna vrata drvo
-ulazna vrata protuprovalna i protupožarna
-keramika u dn.boravku ,hodniku
Kontakt info
- Agencija
-
Alma Dom
- Kontakt osoba
- Alma Dom
- Telefon 1
- + 385 52 213... Prikaži broj
- Telefon 2
- + 385 52 210... Prikaži broj
- Adresa
- Istarska 10
- Pula, Hrvatska