Pag,Povljana,2-soban stan 48,40m2 na 1katu s velikom terasom i PM

Povljana

167.900€

3 497 €/m2

Novo 4
Dvosoban stan, Povljana, prodaja, 167900 €, 48 m2
Dvosoban stan, Povljana, prodaja, 167900 €, 48 m2
Dvosoban stan, Povljana, prodaja, 167900 €, 48 m2
Dvosoban stan, Povljana, prodaja, 167900 €, 48 m2
Tip

Stan

Površina

48 m2

Struktura

2

Detalji

Tip
Stan
Struktura
2
Cijena
167.900€
Površina
48 m2 (3 497 €/m2)
Grijanje
Centralno etažno električno grijanje,Klima uređ
Terasa
Da
Parkirno mjesto
Da
Ažuriran
13.01.2026
ID
99005

Opis

Na otoku Pagu, u prekrasnom mjestu Povljana u izgradni je nova stambena zgrada s 15 stanova. 
Zgrada je projektirana prema najvišim građevinskim i energetskim standardima, s naglaskom na udobnost, dugotrajnost i estetsku vrijednost.
 KLJUČNE KARAKTERISTIKE OBJEKTA:


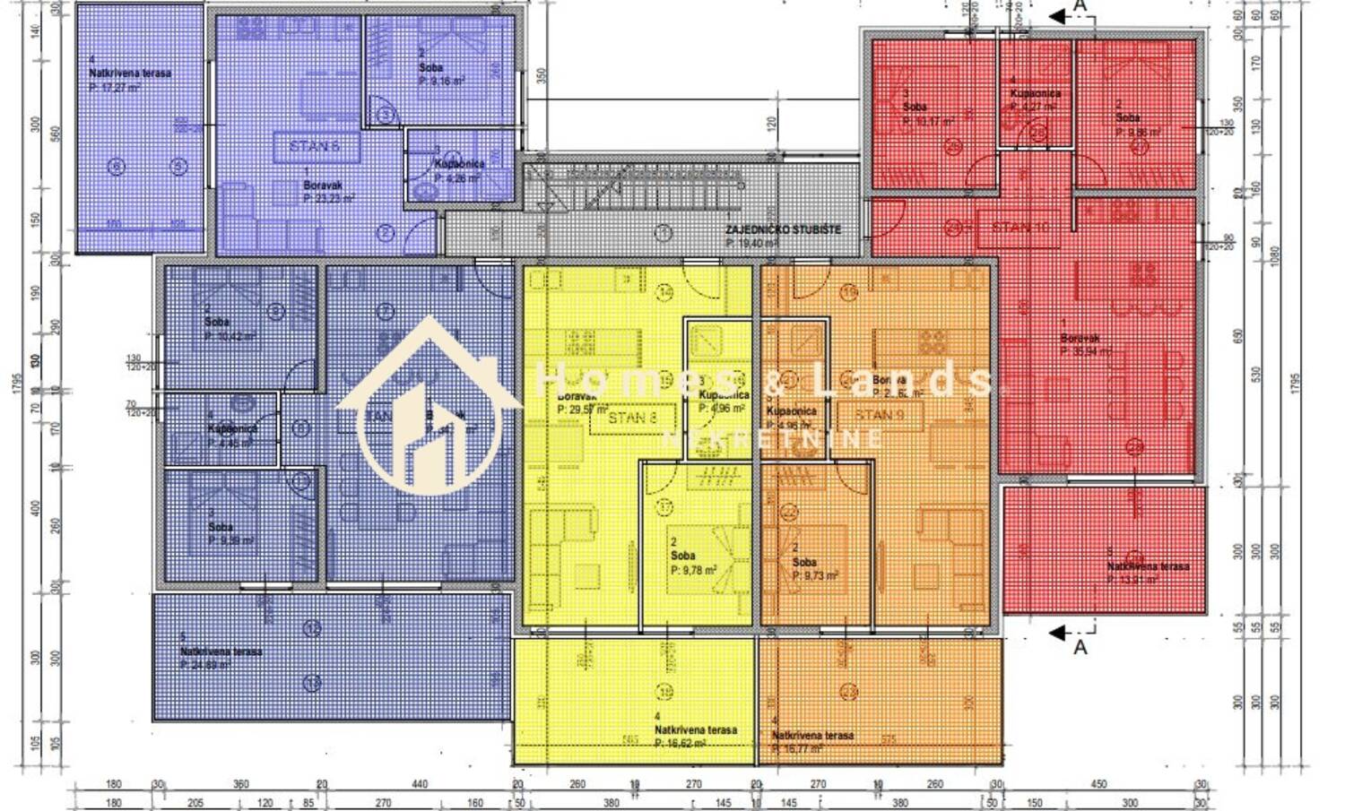
Ukupno 15 stanova – različitih kvadratura i rasporeda


Dizalica topline u svakom stanu – visoka energetska učinkovitost i niski troškovi


Podno grijanje u cijelom stanu


Ugrađena klima jedinica za hlađenje i dodatnu udobnos


 Vanjski parking 


Moderna arhitektura i funkcionalan raspored svih jedinica


Energetski razred A+ – odlična izolacija, vrhunski materijali


OPREMLJENOST I STANDARD:


Vrhunski parketi i keramika 1. klase


PVC stolarija s troslojnim IZO staklima i ALU roletama


Protuprovalna ulazna vrata


Video portafon u svakom stanu


Električne rolete, moderna sanitarija, tuš kabina


Gradski vodovod i kanalizacija


LOKACIJA:
Zgrada se nalazi u mirnom i urbaniziranom naselju, u blizini svih ključnih sadržaja: škole, vrtići, trgovine, javni prijevoz i brza prometna povezanost. Lokacija idealna za mlade obitelji, parove, ali i sve koji traže kvalitetan stan za život ili dugoročan najam.
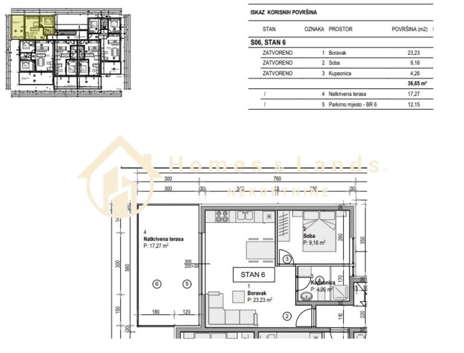
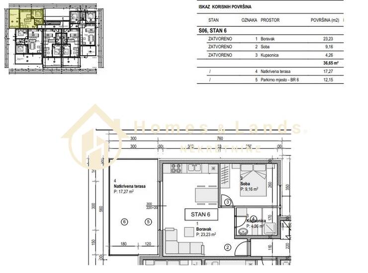
Stan oznake S6 obračunske površine 48m2 na 1 katu s terasom i vanjskim parkingom, sastoji se od ulaznog hodnika,kuhinje s blagovaonicom,dnevnog boravka,spavaće sobe,kupaonice,natrkriene terase i vanjskog parkinga.
isti stan je dostupan i na drugom katu oznake S11
vlasništvo uredno 1/1. 
Info: + 385 98 517... Prikaži broj
 

Kontakt info

Homes & Lands Nekretnine
Kontakt osoba
Ilija Tatarovć
Mobilni telefon
+ 385 98 517... Prikaži broj
Zagreb, Hrvatska

Kontakt forma

Slične nekretnine