Pag,Povljana,2-soban stan 55,74m2 na 2katu(S8) s velikom terasom i PM
Povljana
177.900€
3 234 €/m2
Tip
Stan
Površina
55 m2
Struktura
2
Detalji
- Tip
- Stan
- Struktura
- 2
- Cijena
- 177.900€
- Površina
- 55 m2 (3 234 €/m2)
- Grijanje
- Centralno etažno električno grijanje,Klima uređ
- Terasa
- Da
- Parkirno mjesto
- Da
- Ažuriran
- 13.01.2026
- ID
- 99124
Opis
Na otoku Pagu, u prekrasnom mjestu Povljana u izgradni je nova stambena zgrada s 15 stanova.
Zgrada je projektirana prema najvišim građevinskim i energetskim standardima, s naglaskom na udobnost, dugotrajnost i estetsku vrijednost.
KLJUČNE KARAKTERISTIKE OBJEKTA:
Ukupno 15 stanova – različitih kvadratura i rasporeda
Dizalica topline u svakom stanu – visoka energetska učinkovitost i niski troškovi
Podno grijanje u cijelom stanu
Ugrađena klima jedinica za hlađenje i dodatnu udobnos
Vanjski parking
Moderna arhitektura i funkcionalan raspored svih jedinica
Energetski razred A+ – odlična izolacija, vrhunski materijali
OPREMLJENOST I STANDARD:
Vrhunski parketi i keramika 1. klase
PVC stolarija s troslojnim IZO staklima i ALU roletama
Protuprovalna ulazna vrata
Video portafon u svakom stanu
Električne rolete, moderna sanitarija, tuš kabina
Gradski vodovod i kanalizacija
LOKACIJA:
Zgrada se nalazi u mirnom i urbaniziranom naselju, u blizini svih ključnih sadržaja: škole, vrtići, trgovine, javni prijevoz i brza prometna povezanost. Lokacija idealna za mlade obitelji, parove, ali i sve koji traže kvalitetan stan za život ili dugoročan najam.
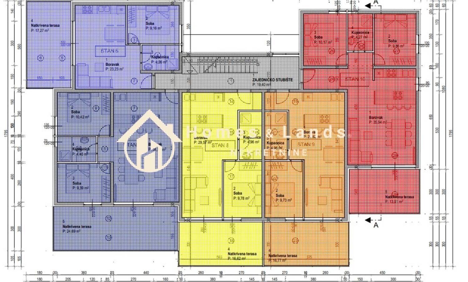
Stan oznake S8 obračunske površine 55,74m2 na 2 katu s terasom i vanjskim parkingom, sastoji se od ulaznog hodnika,kuhinje s blagovaonicom,dnevnog boravka,spavaće sobe,kupaonice,natrkriene terase i vanjskog parkinga.
isti stan je dostupan i na drugom katu oznake S13, te stanovi oznake S9 I S14
vlasništvo uredno 1/1.
Info: + 385 98 517... Prikaži broj
Slične nekretnine
OTOK PAG, POVLJANA - Moderan stan u izgradnji S4
- 190.650€ 63 m2
OTOK PAG, POVLJANA - Moderan stan u izgradnji S1
- 165.000€ 49 m2
OTOK PAG, POVLJANA - Stan s pogledom na more u izgradnji S5
- 192.500€ 61 m2
OTOK PAG, POVLJANA - Stan s pogledom na more u izgradnji S3
- 192.500€ 61 m2
OTOK PAG, POVLJANA - Moderan stan u izgradnji S3
- 147.900€ 49 m2