OTOK PAG, POVLJANA - PRILIKA! Novoizgrađeni apartman uz more!
Povljana
165.000€
4 583 €/m2
Tip
Stan
Površina
36 m2
Struktura
2
Detalji
- Tip
- Stan
- Struktura
- 2
- Cijena
- 165.000€
- Površina
- 36 m2 (4 583 €/m2)
- Grijanje
- Podno grijanje/Dizalica topline
- Terasa
- Da
- Udaljenost od mora
- 300m
- Parkirno mjesto
- Da
- Ažuriran
- 27.02.2026
- ID
- 102817
Opis
OTOK PAG, POVLJANA - PRILIKA! Novoizgrađeni apartman uz more!
ATRAKTIVNA NOVOGRADNJA – 300 m od mora, Povljana (otok Pag)
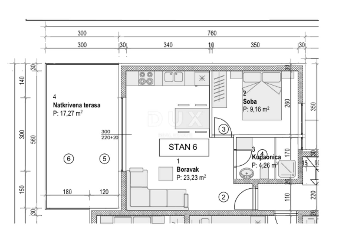
Prodaje se moderan stan oznake "Stan 6", smješten na 1. katu ekskluzivne novogradnje u mirnom i sunčanom dijelu Povljane. Ova nekretnina predstavlja savršen spoj funkcionalnosti i mediteranskog stila života.
Osnovne karakteristike:
Površina stana: 36,65 m² (maksimalno iskorišten tlocrt)
Terasa: Prostrana natkrivena terasa od čak 17,27 m² – idealna za uživanje u ljetnim večerima.
Parking: Vlastito parkirno mjesto (12,15 m²) uključeno u cijenu.
Lokacija: Mirna ulica, svega 300 metara lagane šetnje do kristalno čistog mora.
Raspored prostorija:
Unutrašnjost stana osmišljena je moderno i prozračno:
Open-concept dnevni boravak s kuhinjom i blagovaonicom (23,23 m²)
Udobna spavaća soba (9,16 m²)
Kupaonica (4,26 m²)
Zašto odabrati Povljanu i otok Pag?
Povljana je smještena na južnom dijelu otoka Paga i pravi je dragulj za one koji traže mir, čisto more i netaknutu prirodu. Mjesto nudi sve sadržaje potrebne za život i turizam – od izvrsnih restorana i trgovina do uređenih šetnica.
Vrhunska povezanost:
Cestovni pristup: Paški most omogućuje brz dolazak automobilom u bilo koje doba godine.
Zračna povezanost: Zračna luka Zadar udaljena je svega sat vremena vožnje.
Nautičke linije: Trajektna linija Žigljen–Prizna te brze brodske linije prema Rijeci, Rabu i Lošinju.
Investicijski potencijal: Zbog svoje lok
Kontakt info
- Agencija
-
DUX NEKRETNINE
- Kontakt osoba
- Dux Nekretnine
- Telefon 1
- + 385 51 518... Prikaži broj
- Telefon 2
- + 385 91 480 ... Prikaži broj
- Adresa
- Tizianova 8
- Rijeka, Hrvatska
Slične nekretnine
OTOK PAG, POVLJANA - Moderan stan u izgradnji S4
- 190.650€ 63 m2
OTOK PAG, POVLJANA - Stan s pogledom na more u izgradnji S5
- 192.500€ 61 m2
OTOK PAG, POVLJANA - Stan s pogledom na more u izgradnji S3
- 192.500€ 61 m2