OTOK PAG, POVLJANA - PRILIKA! Novoizgrađeni stan s vrtom! S2
Povljana
315.000€
3 620 €/m2
Tip
Stan
Površina
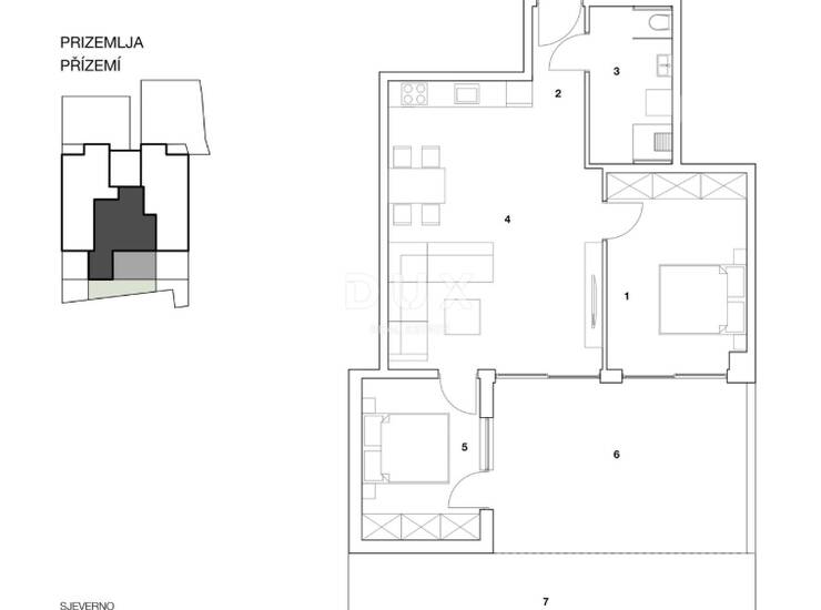
87 m2
Struktura
3
Detalji
- Tip
- Stan
- Struktura
- 3
- Cijena
- 315.000€
- Površina
- 87 m2 (3 620 €/m2)
- Kat
- Prizemlje
- Terasa
- Da
- Udaljenost od mora
- 250m
- Parkirno mjesto
- Da
- Ažuriran
- 01.03.2026
- ID
- 102731
Opis
OTOK PAG, POVLJANA - PRILIKA! Novoizgrađeni stan s vrtom! S2
Tražite li idealnu nekretninu koja spaja modernu udobnost i mediteranski stil života, ovi stanovi u Povljani na otoku Pagu predstavljaju savršenu priliku. Stan u prizemlju s dvije spavaće sobe, kupaonicom, kuhinjom s dnevnim prostorom, spremištem, terasom, vrtom i jednim parkirnim mjestom.
Ovaj suvremeni stambeni kompleks projektiran je s naglaskom na kvalitetu, praktičnost i dugoročnu vrijednost. Evo ključnih prednosti koje izdvajaju ovu ponudu na tržištu:
Ključne karakteristike objekta:
Moderna infrastruktura: Zgrada je opremljena modernim liftom, što osigurava univerzalnu pristupačnost i visoku razinu komfora za sve generacije.
Uključena parkirna mjesta: U cijenu svakog stana uključeno je jedno vanjsko parkirno mjesto, čime je riješen jedan od najvećih izazova tijekom ljetne sezone.
Dodatno spremište: Svaki stan dolazi s vlastitim podrumskim spremiptem. Kupci imaju privilegiju odabira spremišta prema vlastitim preferencijama (ovisno o dostupnosti), s površinama koje se kreću od 3,40 m² do 5,70 m².
Zašto investirati u ovaj projekt?
Ova nekretnina nije samo dom, već i pametno ulaganje. Modernizacija i visoki standardi gradnje jamče:
Povrat investicije: Visok potencijal za turistički najam ili daljnju prodaju.
Kvalitetu života: Bezbrižno stanovanje uz vrhunske standarde opremljenosti.
Tržišnu atraktivnost: Zgrada s liftom i osiguranim parkingom rijetkost je koja uv
Kontakt info
- Agencija
-
DUX NEKRETNINE
- Kontakt osoba
- Dux Nekretnine
- Telefon 1
- + 385 51 518... Prikaži broj
- Telefon 2
- + 385 91 480 ... Prikaži broj
- Adresa
- Tizianova 8
- Rijeka, Hrvatska
Slične nekretnine
PAG, POVLJANA - Stan u blizini mora s galerijom, S8
- 320.400€ 85 m2
PAG, POVLJANA - PRILIKA! Novogradnja 200m od plaže! S8
- 320.864€ 86 m2
OTOK PAG, POVLJANA - Dvoetažni stan s pogledom na more
- 322.714€ 87 m2
PAG, POVLJANA - Stan u blizini mora s vrtom, S2
- 322.800€ 87 m2
PAG, POVLJANA - Stan u blizini mora, S5
- 306.450€ 85 m2
PAG, POVLJANA - Stan u blizini mora s vrtom, S3
- 324.100€ 82 m2