Istra, Pula: Moderan stan s balkonom i parkingom
Valmade, Pula
165.000€
3 510 €/m2
Tip
Apartman
Površina
47 m2
Struktura
2
Detalji
- Tip
- Apartman
- Struktura
- 2
- Cijena
- 165.000€
- Površina
- 47 m2 (3 510 €/m2)
- Kat
- 1
- Parkirno mjesto
- Da
- Ažuriran
- 04.04.2026
- ID
- 105608
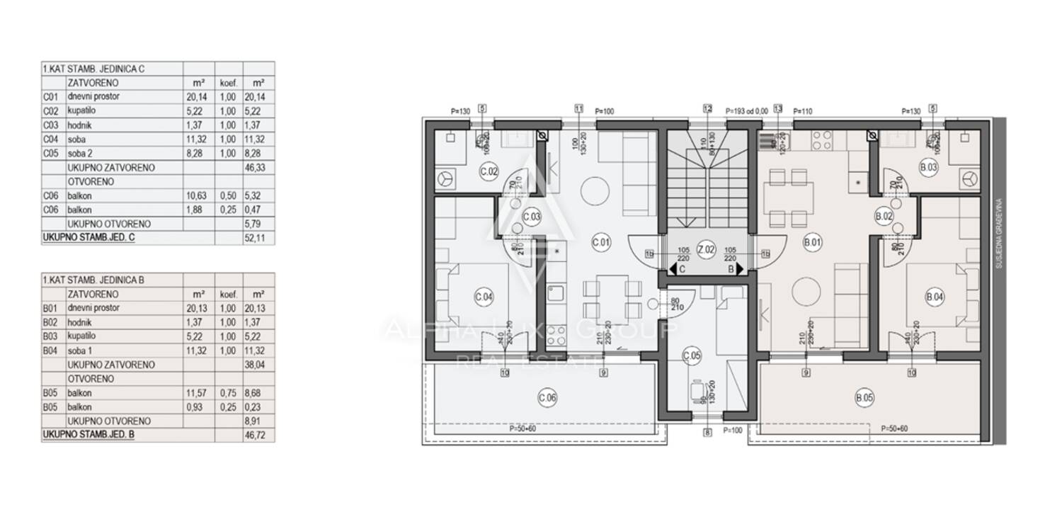
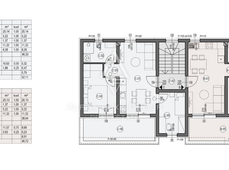
Opis
Moderan stan na prodaju smješten na prvom katu novogradnje u naselju Valmade u Puli. Ovaj suvremeni stambeni projekt sastoji se od tri kvalitetno projektirane zgrade u nizu, pri čemu svaka zgrada ima četiri stambene jedinice, čime se osigurava privatno i funkcionalno organizirano okruženje idealno za stanovanje ili investiciju.
Stan se nalazi na prvom katu i ima praktičan raspored koji omogućuje maksimalnu udobnost i funkcionalnost. Sastoji se od ulaznog hodnika, svijetlog dnevnog boravka povezanog s kuhinjom i blagovaonicom, udobne spavaće sobe, moderne kupaonice te balkona koji pruža ugodan vanjski prostor i produžetak dnevnog boravka.
Nekretnina je opremljena kvalitetnom opremom koja zadovoljava moderne standarde stanovanja, uključujući klima uređaje za grijanje i hlađenje, podno grijanje, električne rolete, protuprovalna vrata te PVC stolariju s trostrukim staklom za bolju izolaciju i energetsku učinkovitost. Kupaonica je opremljena suvremenom sanitarnom opremom koja kombinira funkcionalnost i moderan dizajn.
Stanu pripada i vanjsko parkirno mjesto te spremište, što dodatno povećava praktičnost i vrijednost nekretnine.
Zgrada je izgrađena prema suvremenim arhitektonskim i građevinskim standardima, uz korištenje kvalitetnih materijala koji osiguravaju dugotrajnost, energetsku učinkovitost i stabilnu vrijednost. Ova nekretnina predstavlja odličan izbor za kupce koji traže moderan dom ili sigurnu investiciju na rastućem tržištu nekr
Kontakt info
- Agencija
-
ALPHA LUXE GROUP d.o.o.
- Kontakt osoba
- Marijana Budimir
- Telefon 1
- + 385 52 204... Prikaži broj
- Telefon 2
- + 385 95 363 ... Prikaži broj
- Adresa
- Ul. Mate Vlašića 17
- Poreč, Hrvatska
Slične nekretnine
Istra, Pula: Prizemni stan s vrtom
- 170.000€ 48 m2
Istra, Pula: Prizemni stan s terasom
- 190.000€ 55 m2
Istra, Pula: Prostran stan s garažom i balkonima
- 330.000€ 110 m2