ISTRA, PULA 3S+DB PENTHOUSE u novogradnji 116 m2 - BLIZINA PLAŽE!
Veli vrh, Pula
365.000€
3 146 €/m2
Tip
Stan
Površina
116 m2
Struktura
4
Detalji
- Tip
- Stan
- Struktura
- 4
- Cijena
- 365.000€
- Površina
- 116 m2 (3 146 €/m2)
- Kat
- PENH
- Terasa
- Da
- Udaljenost od mora
- 2500m
- Ažuriran
- 22.01.2026
- ID
- 7014
Opis
Prodaje se 2S+DB STAN na Velom Vrhu 54 m2 - NOVOGRADNJA!
Pula je najveći grad Istarske županije smješten na jugozapadnom području impresivnog pejzaža Istarskog poluotoka te ga odlikuje zanimljiva kulturno-povijesna baština, prekrasna priroda i duge plaže koje oduzimaju dah. Prevladava umjereno topla klima blagih zima i toplih ljeta stoga je idealno mjesto za potencijalne vlasnike nekretnina koji će u njima moći uživati tijekom cijele godine.
U predgrađu Pule smjestilo se naselje Veli Vrh poznato kao mirno područje, blizu uređenih plaža i po sigurnom obiteljskom ambijentu. Veli vrh ima sve potrebne sadržaje za život modernog obiteljskog čovjeka kao što su: škola, vrtić, blizina super marketa, poštanski ured, javni prijevoz, a nalazi se samo 10 minuta lagane vožnje od centra grada Pula.
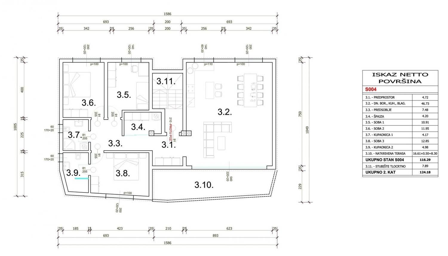
Ova NOVOGRADNJA ima samo 4 stana i pruža privatnost budućim vlasnicima. S004: 3S+DB STAN se nalazi na 2. KATU zgrade te se sastoji od predprostora, 3 spavaće sobe, predsoblja, dnevnog boravka s kuhinjom i blagovaonicom, špajze, 2 kupatila i natkrivene terase ukupne stambene površine 116 m2.
Prodaje se kompletno namješten i useljiv!
Ova nekretnina s obzirom na cijenu i lokaciju predstavlja savršenu priliku za početak mirnog obiteljskog života u lijepom ambijentu nedaleko od plaže!
Poštovani klijenti, agencijska provizija naplaćuje se u skladu s Općim uvjetima poslovanja:
www.dux-nekretnine.hr/opci-uvjeti-poslovanja
ID KOD AGENCIJE: 7561
Ana
Kontakt info
- Agencija
-
DUX NEKRETNINE
- Kontakt osoba
- Dux Nekretnine
- Telefon 1
- + 385 51 518... Prikaži broj
- Telefon 2
- + 385 91 480 ... Prikaži broj
- Adresa
- Tizianova 8
- Rijeka, Hrvatska
Slične nekretnine
ISTRA, PULA - Penthouse s pogledom na more i Brijune
- 365.000€ 120 m2
ISTRA, PULA - Penthouse 117,75 m2 u blizini mora!
- 363.000€ 117 m2
ISTRA, PULA - Novogradnja! Tražena lokacija!
- 345.000€ 110 m2
PULA, STAN SA 3 SPAVAĆE SOBE 2. KAT - B4
- 344.000€ 110 m2
ISTRA, PULA - Penthouse 113,61 m2! NOVOGRADNJA
- 335.720€ 113 m2
ISTRA, PULA - Penthouse 133,27 m2 u blizini mora!
- 395.000€ 133 m2
ISTRA, PULA - Novogradnja! Tražena lokacija!
- 335.000€ 107 m2
ISTRA, PULA - Moderna novogradnja! Prizemlje s dvorištem!
- 395.000€ 113 m2
ISTRA, PULA - Moderna novogradnja! Prizemlje s dvorištem!
- 395.000€ 111 m2
PULA, TROSOBAN STAN PRIZEMLJE, STAN A - ZGRADA A
- 395.000€ 111 m2
ISTRA, PULA - Moderna novogradnja! Penthouse!
- 398.000€ 113 m2
PULA, TROSOBAN STAN NA 2. KATU, STAN D - ZGRADA B
- 398.000€ 113 m2