ZAMET, TEREN S PRAVOMOĆNOM GRAĐEVINSKOM DOZVOLOM ZA 8 STANOVA
Zamet, Rijeka
400.000€
291 €/m2
Tip
Zemljiste
Površina
1370 m2
Detalji
- Tip
- Zemljiste
- Cijena
- 400.000€
- Površina
- 1370 m2 (291 €/m2)
- Ažuriran
- 05.03.2026
- ID
- 103447
Opis
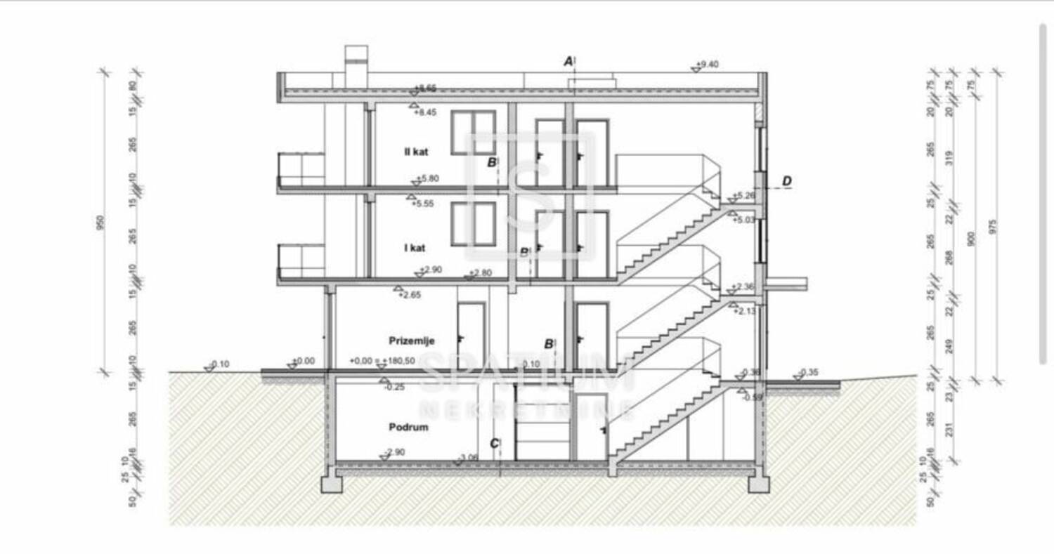
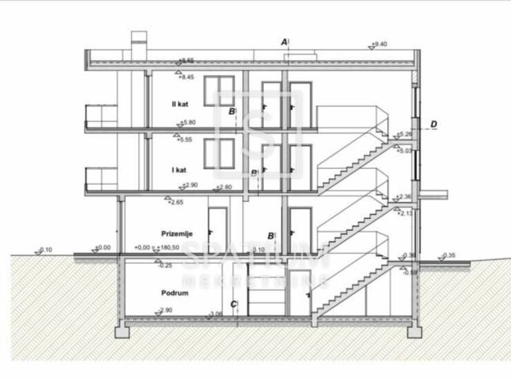
ZAMET, u ponudi je građevinsko zemljište površine 1.370 m² s pravomoćnom građevinskom dozvolom za izgradnju stambene zgrade s ukupno osam stanova. Prema projektnoj dokumentaciji planirana je zgrada koja se sastoji od podruma, prizemlja i dva kata, s balkonima orijentiranim na jugozapadno pročelje, što stanovima omogućuje dobru osunčanost i ugodan boravak. Sva potrebna komunalna infrastruktura nalazi se na terenu – gradski plin, vodovod, kanalizacija i struja su već priključeni, a pristup parceli omogućen je asfaltiranim putem.
Zahvaljujući pravomoćnoj građevinskoj dozvoli i postojećim priključcima, budući investitor može odmah započeti s gradnjom bez dodatnih procedura!
Zamet – kvart koji raste zajedno s Rijekom. Zamet je jedno od najpoželjnijih riječkih naselja – urbani, ali miran kvart s odličnom prometnom povezanošću, svim potrebnim sadržajima u blizini, te prepoznatljivim duhom zajednice. Iako administrativno podijeljen, Zamet kao cjelina nudi sve što je potrebno za udoban i siguran obiteljski život, a kontinuirani razvoj i kvaliteta stanogradnje dodatno potvrđuju njegov rastući značaj.
Za sve ostale informacije, obratite se s povjerenjem.
Toni Jelčić
Agent s licencom
+ 385 91 781 ... Prikaži broj
toni@spatium.hr
Spatium nekretnine
+ 385 51 272... Prikaži broj
info@spatium.hr
ID KOD AGENCIJE: 7122
Toni Jelčić
Agent s licencom
Mob: + 385 91 781 ... Prikaži broj
Tel: + 385 51 452... Prikaži broj
E-mail: toni@spatium.hr
www.spatium.hr
Kontakt info
- Agencija
-
Spatium Nekretnine
- Kontakt osoba
- Vedran Prica
- Telefon 1
- + 385 51 272... Prikaži broj
- Telefon 2
- + 385 95 812 ... Prikaži broj
- Adresa
- Šetalište Andrije Kačića Miošića 5
- Rijeka Centar
- Rijeka, Hrvatska
Slične nekretnine
Zamet – atraktivno građevinsko zemljište s pravomoćnom dozvolom
- 412.000€ 1470 m2
Rijeka, Zamet, građevinsko zemljište za 6 stanova
- 360.000€ 1100 m2
ZAMET, GRAĐEVINSKO ZEMLJIŠTE ODLIČNE KONFIGURACIJE
- 350.000€ 2155 m2
RIJEKA, ZAMET - ravno građevinsko zemljište za 12 stanova
- 338.000€ 1514 m2
Zamet - prodaja građevinskog zemljišta
- 325.000€ 1300 m2
Zamet - prodaja građevinskog zemljišta
- 325.000€ 1300 m2
Zamet
- 325.000€ 1300 m2
GORNJI ZAMET, ZEMLJIŠTE S GRAĐEVINSKOM DOZVOLOM
- 225.000€ 1328 m2