Lovrečica, okolica! Stan u prizemlju 500 m do mora!
Lovrečica, Umag
269.550€
4 568 €/m2
Tip
Stan
Površina
59 m2
Struktura
4
Detalji
- Tip
- Stan
- Struktura
- 4
- Cijena
- 269.550€
- Površina
- 59 m2 (4 568 €/m2)
- Kat
- Prizemlje
- Garaža
- Da
- Ažuriran
- 26.04.2026
- ID
- 56758
Opis
Umag, Lovrečica, okolica!
Na samo 500 metara do mora smješten je ovaj izuzetan stan u izgradnji!
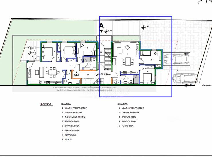
Stan je smješten u prizemlju moderne novogradnje sa 12 stanova. Ukupan površina stana iznosi 59 m2. Sastoji se od dnevnog boravka sa kuhinjom i blagovaonicom otvorenog tipa, 2 spavaće sobe, kupaonice i hodnika. Iz dnevnog boravka pristupa se uređenoj okućnici. Stanu pripada ostava i jedno parkirno mjesto u garaži. Posebnost ovog stana je i mogućnost korištenja zajedničkog grijanog bazena površine 6 x 12 m koji će biti smješten ispred zgrade.
Stan se gradi od visokokvalitetnih materijala sa podnim grijanjem na dizalicu topline i hlađenjem na klima uređaje sve sa mogućnošću upravljanja na daljinu. Stolarija će biti Pvc sa troslojnim staklom, komarnicima i roletama na struju. Podovi će biti od keramike a na hodnicima zgrade i terasama biti će postavljeni kamen granit.
Cijena stana uključuje Pdv, a odnosi se na fazu ključ u ruke što uključuje potpuno gotovu nekretninu bez namještaja. Planirani završetak gradnje je kraj ljeta 2024. godine.
Zbog svoje lokacije i sadržaja stan je odličan izbor za korištenje u turističke svrhe ili za odmor.
Na samo 10 minuta lagane šetnje nalazi se prekrasne plaže i trgovina, restorani i kafići dok je centar grada Umaga sa svim razni drugim potrebnim sadržaja udaljen na 5 minuta lagane vožnje autom.
ID KOD AGENCIJE: 1027-958
Kontakt info
- Agencija
-
Diamond Real Estate
- Kontakt osoba
- Robert Pinzan
- Telefon 1
- + 385 (0)52 210... Prikaži broj
- Adresa
- Partizanska 5A
- Poreč, Hrvatska
Slične nekretnine
Umag, apartman u prizemlju par koraka do mora!
- 291.950€ 53 m2
Umag, Lovrečica, Trosoban stan na prvom katu!
- 298.000€ 67 m2
Umag, Lovrečica, Stan s pogledom na more!
- 313.000€ 70 m2
Lovrečica, okolica! Stan sa bazenom 500 metara do mora!
- 316.250€ 63 m2
Umag, Lovrečica, Stan s pogledom na more!
- 318.000€ 71 m2
Umag, Lovrečica, Trosoban stan u blizini mora!
- 320.000€ 65 m2
Umag, Lovrečica, Trosoban stan na prvom katu!
- 320.000€ 72 m2
Umag, Lovrečica, Useljiv stan s pogledom na more!
- 323.000€ 66 m2
Umag, okolica stan 72 m2 s tri spavaće sobe 500m od mora
- 326.000€ 72 m2
Lovrečica, stan 72 m2 s tri spavaće sobe blizu mora
- 345.000€ 72 m2
Lovrečica, Trosoban stan s pogledom na more!
- 358.000€ 71 m2