Cres - prodaja ekskluzivne novogradnje u starom centru, 50 m od mora
Cres
443.000€
5 986 €/m2
Tip
Stan
Površina
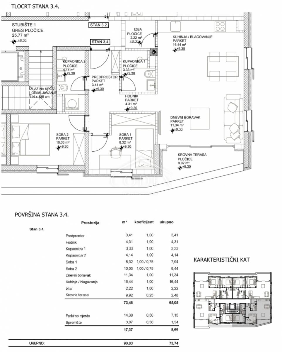
74 m2
Struktura
3
Detalji
- Tip
- Stan
- Struktura
- 3
- Cijena
- 443.000€
- Površina
- 74 m2 (5 986 €/m2)
- Kat
- 1
- Parkirno mjesto
- Da
- Ažuriran
- 17.05.2026
- ID
- 98618
Opis
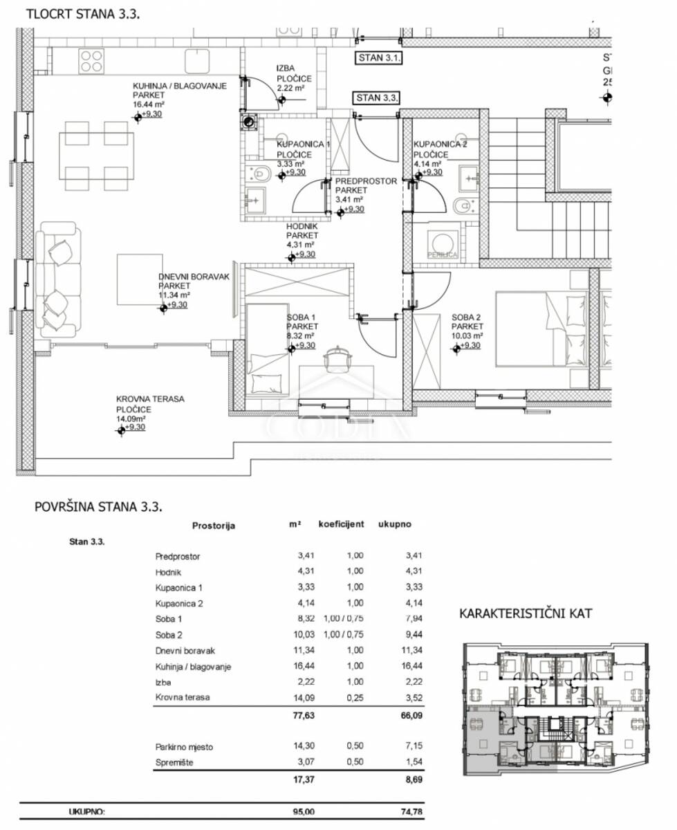
U ponudi je jedina novogradnja u samom starom dijelu grada Cresa, smještena na svega 50 metara od mora, što je iznimna rijetkost koja se na tržištu pojavi jednom. Projekt obuhvaća ukupno 14 modernih jednosobnih i dvosobnih stanova te 3 poslovna prostora, pri čemu se stanovi prostiru na kvadraturama od 53 m² do 75 m² i raspoređeni su na tri etaže, odnosno na 1., 2. i 3. katu objekta.
Cjelokupna gradnja izvedena je prema vrhunskim standardima i u potpunosti prilagođena ambijentu starog grada, stvarajući savršen spoj autentičnog mediteranskog šarma i suvremenog komfora. Iza projekta stoji pouzdan i provjeren investitor s višegodišnjim iskustvom, poznat po visokoj kvaliteti gradnje, poštivanju ugovorenih rokova i transparentnom poslovanju.
Cijene stanova kreću se od 325.000 eura do 450.000 eura, ovisno o poziciji stana, katu i njegovoj veličini. Ova nekretnina idealna je kako za ugodno cjelogodišnje stanovanje, tako i za sigurnu turističku investiciju, uz izuzetnu dugoročnu vrijednost.
Lokacija u starom gradu Cresa predstavlja priliku koja se više ne ponavlja, stoga ne propustite mogućnost da budete dio povijesti, jer ovakva novogradnja u samom srcu starog grada Cresa ne čeka.
Agencijska provizija naplaćuje se u skladu s Općim uvjetima poslovanja koji su dostupni na stranici https://codexnekretnine.hr/o-nama/opci-uvjeti-poslovanja.
ID KOD AGENCIJE: 3224
Gordana Grgat
Asistent u posredovanju
Mob: + 385 95 712 ... Prikaži broj
Tel: + 385 97 680 ... Prikaži broj
E-
Slične nekretnine
OTOK CRES, CRES - Ekskluzivan stan na izvrsnoj lokaciji
- 449.500€ 124 m2
OTOK CRES, CRES - Ekskluzivan stan na izvrsnoj lokaciji
- 449.500€ 124 m2
OTOK CRES, CRES - Raskošan stan u novogradnji blizu mora
- 450.000€ 125 m2
Cres, 120.98m2, 2s+db, lođa, pogled na more
- 450.000€ 120 m2
Cres - stan u novogradnji sa pogledom na more, 100m2!
- 433.000€ 100 m2
Cres, novogradnja, stan 1.5
- 430.000€ 83 m2