ISTRA, LABIN - Kuća s bazenom
Labin
340.000€
2 615 €/m2
Tip
Kuća
Površina
130 m2
Struktura
3
Detalji
- Tip
- Kuća
- Struktura
- 3
- Cijena
- 340.000€
- Površina
- 130 m2 (2 615 €/m2)
- Površina zemljišta
- 634
- Udaljenost od mora
- 8000m
- Ažuriran
- 21.11.2025
- ID
- 74503
Opis
ISTRA, LABIN - Kuća s bazenom
Na jugoistočnoj obali Istre, na mjestu gdje se zeleni brežuljci sastaju s morem, tamo gdje se sjedinjuju priroda i baština nalaze se dva gradića slične veličine, no s različitim, ali međusobno nadopunjujućim karakterom- Labin i Rabac.
Slikoviti grad Labin uzdiže se na brdašcu visokom 320m udaljenom svega pet kilometara od bijelih šljunčanih plaža u Rapcu. Isprepleten bogatom poviješću i rudarstvom koje je obilježilo ovaj kraj, Labin koji je kratkotrajno bio proglašen samostalnom republikom je danas fascinantan grad proturječnosti; starog i novog, povijesti i sadašnjosti, turizma i umjetnosti.
U okolici grada Labina, na prodaju je kuća s bazenom.
Nekretnina predstavlja fuziju moderne arhitekture i prirodnog okruženja a kvaliteta gradnje jamči dugoročno zadovoljstvo i kvalitetu stanovanja.
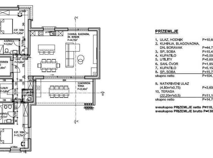
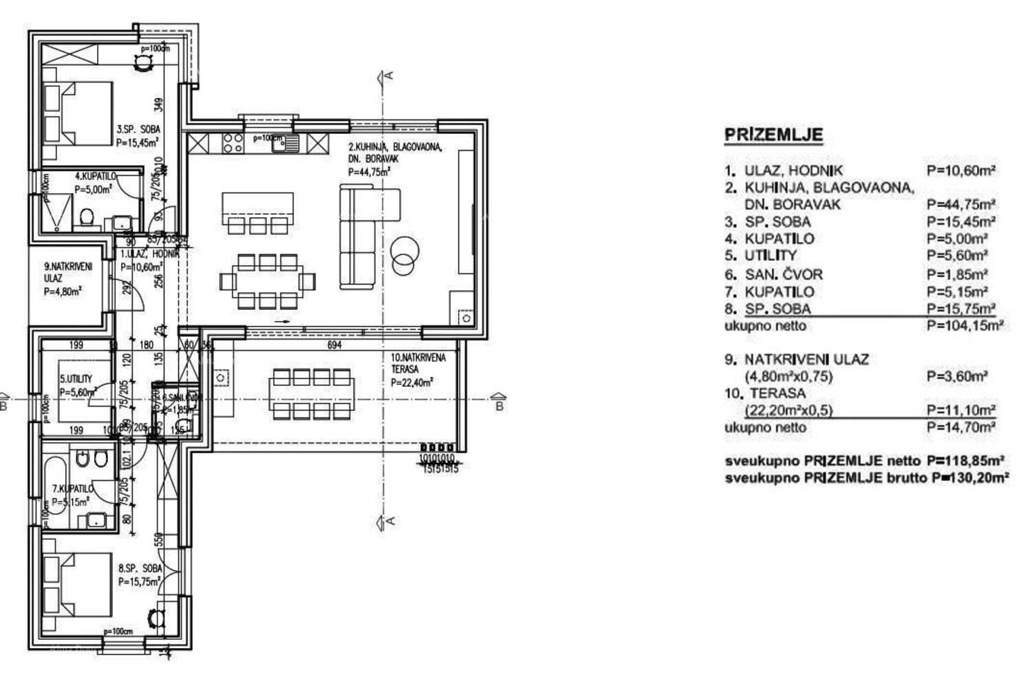
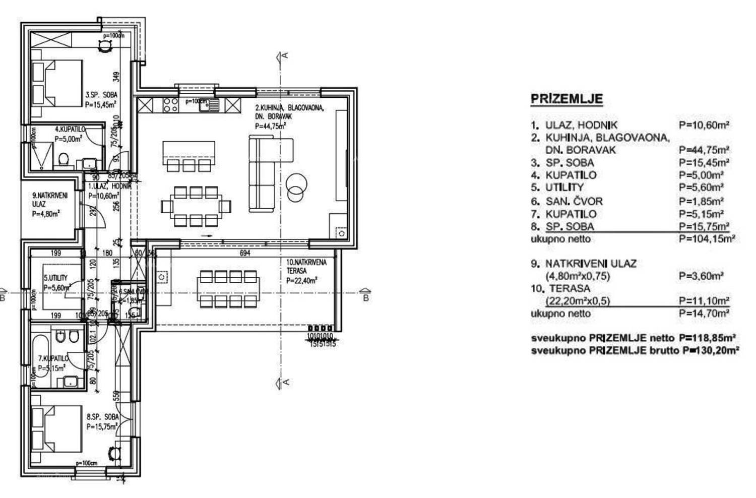
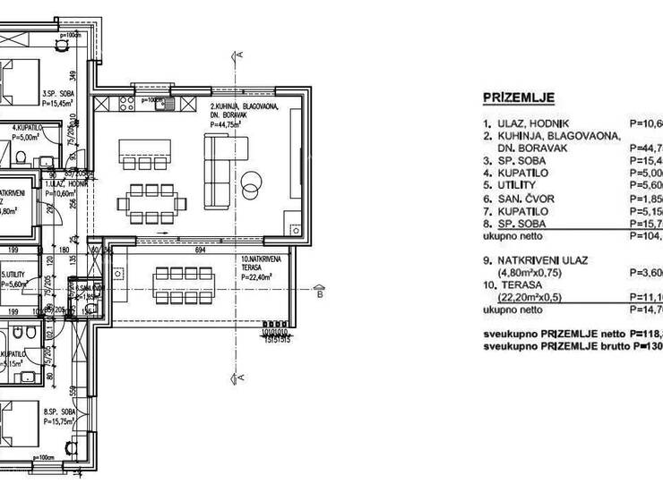
Kuća je koncipirana kao jedna stambena jedinica koja se proteže kroz jednu etažu jasno definiranog tlocrta koji je podijeljen na dnevni i noćni prostor.
Dnevni dio se sastoji od kuhinje, blagovaonice i dnevnog boravka s izlazom na natkrivenu terasu koja sadrži ljetnu kuhinju dok se noćni dio sastoji od dvije spavaće sobe s vlastitim kupaonicama. Tlocrt nadopunjuju hodnik, gostinjski toalet i spremište.
Navedena cijena odnosi se na visoku rohbau izvedbu stambenog objekta, što obuhvaća pripremne radove, iskop i postavljanje temelja, izgradnju vanjskih i pregradnih zidova, krovopokrivačke i limarske radove i vanjsku s
Kontakt info
- Agencija
-
DUX NEKRETNINE
- Kontakt osoba
- Dux Nekretnine
- Telefon 1
- + 385 51 518... Prikaži broj
- Telefon 2
- + 385 91 480 ... Prikaži broj
- Adresa
- Tizianova 8
- Rijeka, Hrvatska
Slične nekretnine
ISTRA, LABIN - Prostrano imanje s 3 kuće i 18.500 m2 zemljišta
- 340.000€ 250 m2
Istra Labin, Veliko imanje sa 3 kamene kuće
- 340.000€ 242 m2
Kuća u izgradnji, okolica Labina
- 340.000€ 146 m2
Labin, okolica, moderna kuća za odmor u izgradnji
- 340.000€ 120 m2
ISTRA, LABIN, KOMPLEKS KAMENIH KUĆA, VELIKA OKUĆNICA
- 340.000€ 150 m2
ISTRA,LABIN,KUĆA SA BAZENOM
- 340.000€ 160 m2
ISTRA, LABIN, 3.5 KM OD MORA, ROH BAU KUĆA
- 338.000€ 180 m2
Kuća s 2 apartmana na poželjnoj lokaciji, Ravni
- 345.000€ 76 m2
ISTRA, LABIN - Moderna kuća s bazenom u izgradnji
- 345.000€ 200 m2
ISTRA, LABIN - Kuća u izgradnji
- 345.000€ 170 m2
ISTRA, LABIN - Kuća s bazenom u izgradnji
- 345.000€ 170 m2
ISTRA, LABIN, KUĆA VISOKI ROH BAU, BLIZINA GRADA
- 345.000€ 158 m2