ISTRA, LABIN - Kuća s bazenom u izgradnji
Labin
345.000€
2 029 €/m2
Tip
Kuća
Površina
170 m2
Struktura
4
Detalji
- Tip
- Kuća
- Struktura
- 4
- Cijena
- 345.000€
- Površina
- 170 m2 (2 029 €/m2)
- Površina zemljišta
- 948
- Udaljenost od mora
- 3500m
- Ažuriran
- 01.10.2025
- ID
- 61012
Opis
ISTRA, LABIN - Kuća s bazenom u izgradnji
Na jugoistočnoj obali Istre na mjestu gdje se zeleni brežuljci sastaju s morem, tamo gdje se sjedinjuju priroda i baština, nalaze se dva gradića s različitim ali međusobno nadopunjujućim karakterom - Labin i Rabac.
Slikoviti grad Labin uzdiže se na brdašcu visokom 320 metara udaljenom svega četiri kilometara od bijelih šljunčanih plaža u Rapcu. Isprepleten bogatom poviješću i rudarstvom koje je obilježilo ovaj kraj, Labin koji je kratkotrajno bio proglašen samostalnom republikom je danas fascinantan grad proturječnosti; starog i novog, povijesti i sadašnjosti, turizma i umjetnosti.
Nedaleko grada Labina, na prodaju je kuća s bazenom u izgradnji.
Nalazi se u pitomom naselju čija lokacija nudi autentičan doživljaj malog istarskog mjesta, intimnost i rasterećenost od svakog užurbanog napora i buke a ujedno dovoljno blizu mora i centra grada Labina s nizom sadržaja.
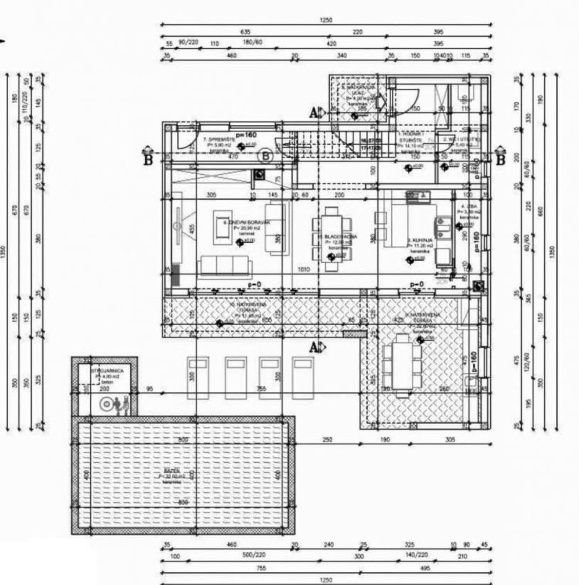
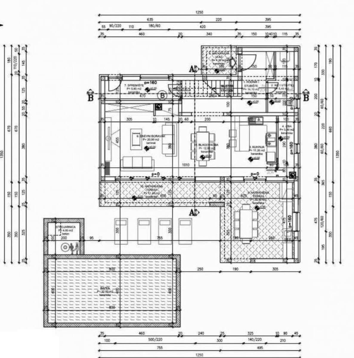
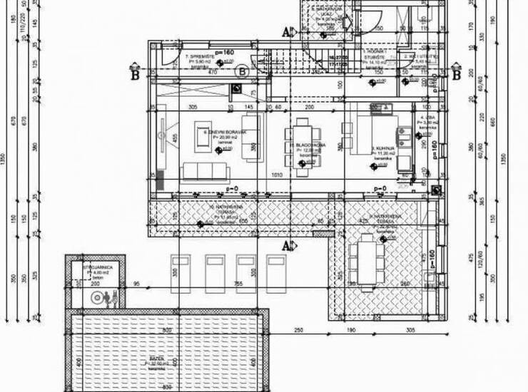
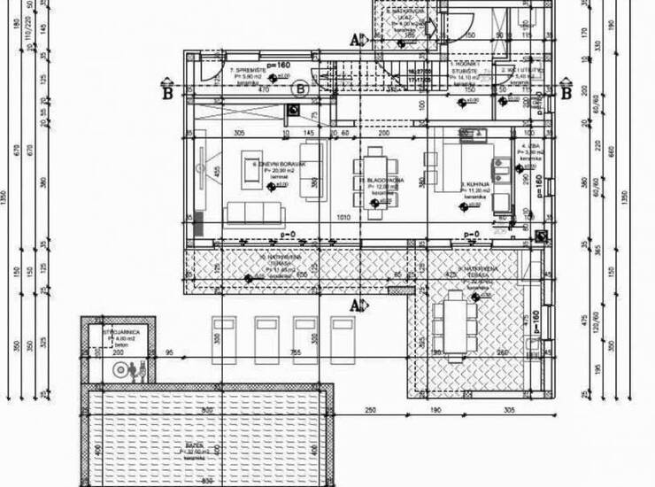
Kuća svojom modernom arhitekturom ne remeti okoliš već stvara sinergiju prirodnog okruženja i modernog dizajna. Koncipirana je kao jedna stambena jedinica koja kombinira eleganciju, funkcionalnost i udobnost na dvije etaže.
Prizemlje se sastoji prostora otvorenog koncepta koji ujedinjuje kuhinju, blagovaonicu i dnevni boravak s izlazom na natkrivenu terasu koja sadrži ljetnu kuhinju, gostinjskog toaleta i spremišta.
Kat se sastoji od predsoblja, tri spavaće sobe s vlastitim kupaonicama i djelomično natkrivene terase.
Navedena ci
Kontakt info
- Agencija
-
DUX NEKRETNINE
- Kontakt osoba
- Dux Nekretnine
- Telefon 1
- + 385 51 518... Prikaži broj
- Telefon 2
- + 385 91 480 ... Prikaži broj
- Adresa
- Tizianova 8
- Rijeka, Hrvatska
Slične nekretnine
ISTRA, LABIN - Moderna kuća s bazenom u izgradnji
- 345.000€ 200 m2
ISTRA, LABIN - Kuća u izgradnji
- 345.000€ 170 m2
Kuća s 2 apartmana na poželjnoj lokaciji, Ravni
- 345.000€ 76 m2
ISTRA, Labin - prodaja predivna kamena prizemnica s bazenom!
- 350.000€ 80 m2
ISTRA, LABIN - Kuća s bazenom
- 340.000€ 130 m2
ISTRA, LABIN - Prostrano imanje s 3 kuće i 18.500 m2 zemljišta
- 340.000€ 250 m2
Labin, dvojna kuća s pogledom na more
- 350.000€ 247 m2
Kuća u izgradnji, okolica Labina
- 340.000€ 146 m2
Istra Labin, Veliko imanje sa 3 kamene kuće
- 340.000€ 242 m2
Labin, okolica, obiteljska kuća na odličnoj lokaciji
- 350.000€ 168 m2
Labin, okolica, dvojna kuća s pogledom na more
- 350.000€ 248 m2
Labin, okolica, moderna kuća za odmor u izgradnji
- 340.000€ 120 m2