Istra, Šišan: Građevinsko zemljište s dozvolom projekt
Šišan, Ližnjan
139.000€
168 €/m2
Tip
Zemljiste
Površina
825 m2
Detalji
- Tip
- Zemljiste
- Cijena
- 139.000€
- Površina
- 825 m2 (168 €/m2)
- Ažuriran
- 23.05.2026
- ID
- 106223
Opis
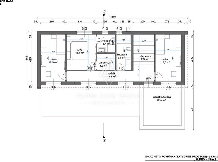
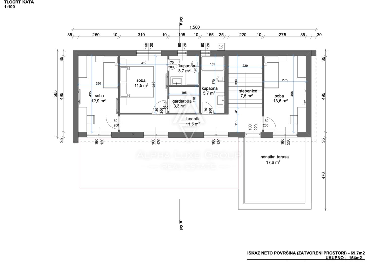
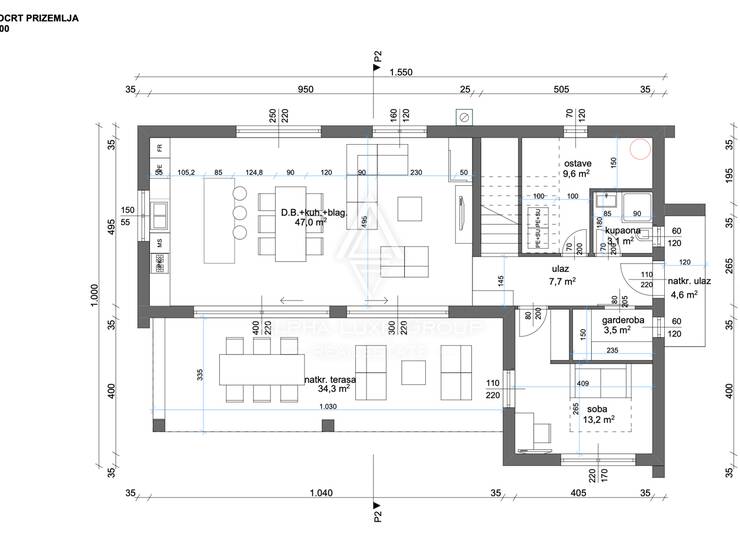
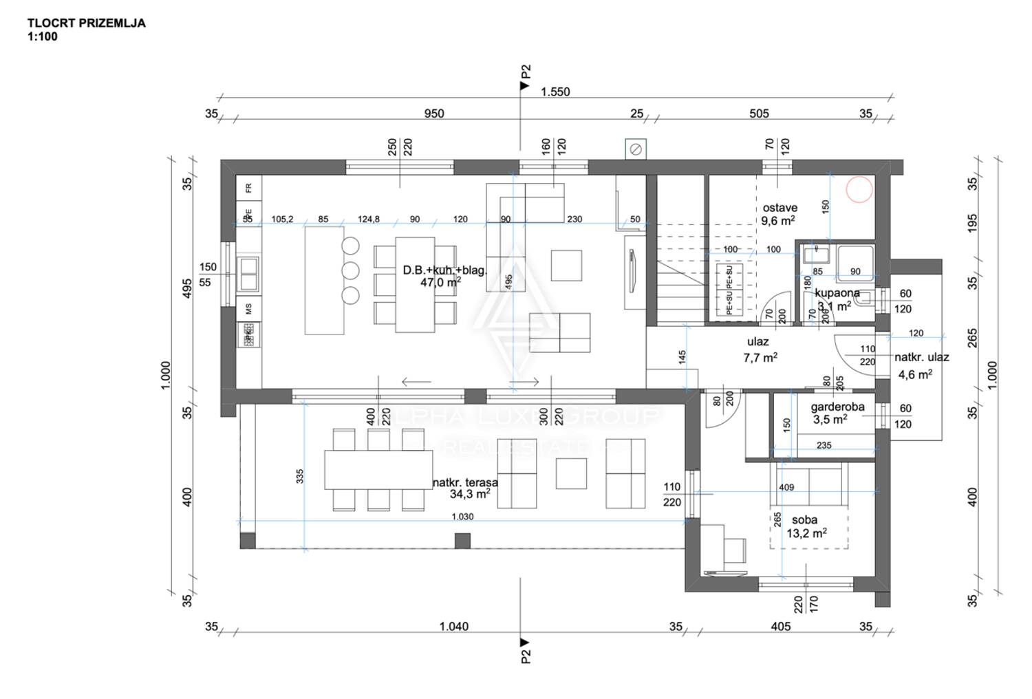
Na traženoj i mirnoj lokaciji u Šišanu, ovo građevinsko zemljište površine 825 m² predstavlja izvrsnu priliku za kupce koji žele razvijati nekretninu u Istri. Zemljište se prodaje s važećom građevinskom dozvolom za izgradnju moderne obiteljske katnice s bazenom, što omogućuje brz i učinkovit početak gradnje.
Za nekretninu je već izrađen kompletan arhitektonski projekt, čime se značajno skraćuje vrijeme pripreme i budućem vlasniku omogućuje početak gradnje bez dodatnih faza planiranja. Projekt je pažljivo osmišljen kako bi spojio funkcionalnost, komfor i suvremeni dizajn, uz naglasak na privatnost i kvalitetu života. Planirana kuća pogodna je kako za stalno stanovanje, tako i kao investicija za turistički najam s visokim potencijalom.
Važna prednost je što građevinska dozvola postaje pravomoćna 16.04., što omogućuje gotovo trenutan početak radova. Time se izbjegavaju administrativna kašnjenja i dodatno povećava vrijednost investicije, čineći cijeli proces gradnje bržim i sigurnijim.
Šišan nudi mirno stambeno okruženje uz dobru povezanost s ključnim destinacijama poput Pula. Područje je poznato po autentičnom istarskom karakteru, prirodnom okruženju i blizini prekrasnih plaža južne obale. Uz jednostavan pristup infrastrukturi, restoranima i sadržajima za slobodno vrijeme, nudi idealan balans između mira i praktičnosti.
Ovo je izvrsna prilika za investitore ili privatne kupce koji žele izgraditi vlastiti dom na
Kontakt info
- Agencija
-
ALPHA LUXE GROUP d.o.o.
- Kontakt osoba
- Marijana Budimir
- Telefon 1
- + 385 52 204... Prikaži broj
- Telefon 2
- + 385 95 363 ... Prikaži broj
- Adresa
- Ul. Mate Vlašića 17
- Poreč, Hrvatska
Slične nekretnine
ISTRA, ŠIŠAN – Građevinsko zemljište s građevinskom dozvolom
- 145.000€ 825 m2
Istra, Šišan, poljoprivredno zemljište, 10.624m2
- 176.500€ 10624 m2
Istra, Šišan, građevinsko zemljište
- 101.000€ 674 m2
Istra, Šišan, građevinsko zemljište
- 100.000€ 802 m2
Istra, Šišan, građevinsko zemljište
- 82.500€ 660 m2
Istra, Šišan, građevinsko zemljište
- 80.000€ 640 m2
ISTRA, LIŽNJAN - Prekrasno prostrano građevinsko zemljište!
- 220.000€ 1699 m2
Šišan, srednjovjekovna oaza za adaptaciju blizu mora!
- 220.000€ 466 m2