ISTRA, ŠIŠAN – Građevinsko zemljište s građevinskom dozvolom
Šišan, Ližnjan
148.500€
180 €/m2
Tip
Zemljiste
Površina
825 m2
Detalji
- Tip
- Zemljiste
- Cijena
- 148.500€
- Površina
- 825 m2 (180 €/m2)
- Udaljenost od mora
- 2900m
- Ažuriran
- 18.03.2026
- ID
- 104347
Opis
ISTRA, ŠIŠAN – Građevinsko zemljište s građevinskom dozvolom
Na prodaju je atraktivno građevinsko zemljište u mirnom i traženom dijelu naselja Šišan, idealno za izgradnju obiteljske kuće ili investiciju s velikim potencijalom. Ušteda vremena zato što građevinska dozvola već osigurana!!!
Južna Istra bilježi kontinuiran rast potražnje za nekretninama, kako za život tako i za turistički najam. Ograničena dostupnost građevinskog zemljišta dodatno povećava vrijednost ovakvih parcela. Kupnja na ovoj lokaciji predstavlja dugoročno sigurnu investiciju s velikim potencijalom rasta.
Sva potrebna infrastruktura nalazi se u neposrednoj blizini (struja, voda), uz obvezu plaćanja priključaka i doprinosa.
-Površina parcele: 825 m²
-Pravilan oblik – maksimalna iskoristivost prostora
-Pravomoćna građevinska dozvola uključena u cijenu
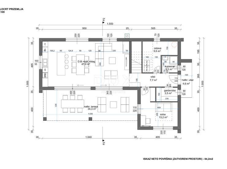
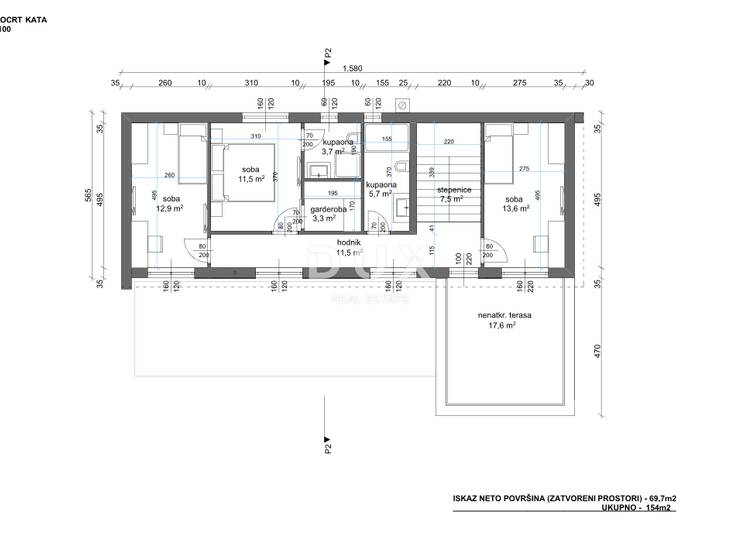
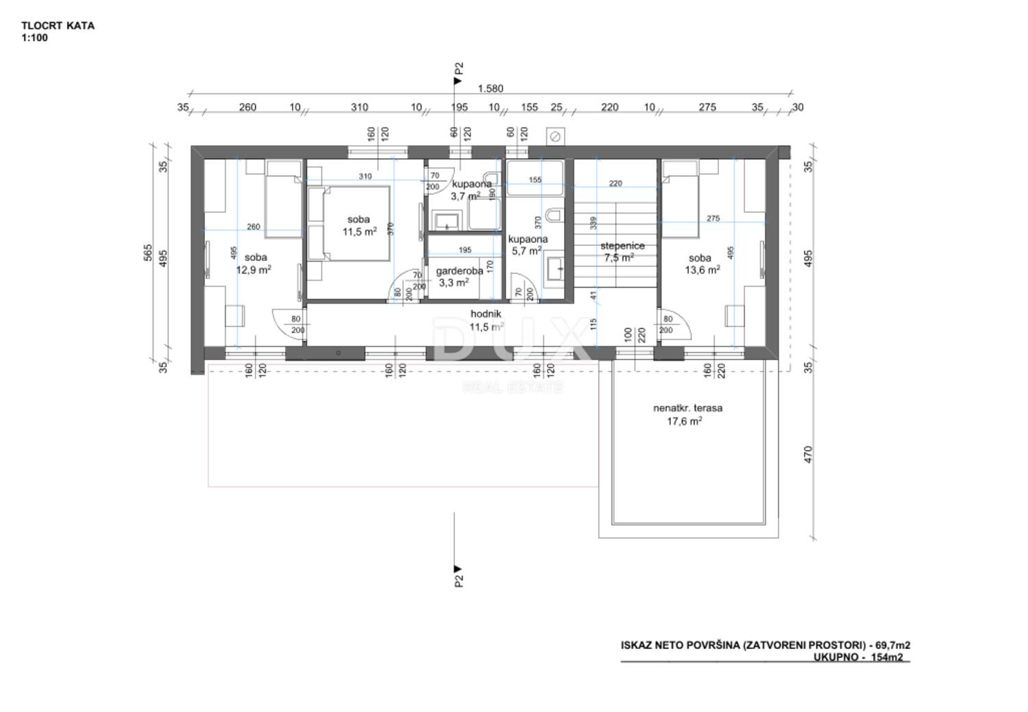
-Zemljište ima projekt za izgradnju moderne slobodnostojeće obiteljske kuće (2.b skupine) s vanjskim bazenom.
Predviđena ukupna neto površina kuće: 154 m²
Prizemlje + kat
Funkcionalan raspored za udoban obiteljski život
Open space dnevni boravak s kuhinjom i blagovaonicom
Izlaz na natkrivenu terasu i bazen
3 spavaće sobe + dodatna soba (ured/gostinjska)
2 kupaonice + gostinjski dodatni WC
PREDNOSTI LOKACIJE
Šišan se nalazi u jednom od najpoželjnijih dijelova južne Istre, regije koja je već godinama sinonim za visoku kvalitetu života, sigurnost i stabilan rast vrijednosti nekretnina. Ova lokacija
Kontakt info
- Agencija
-
DUX NEKRETNINE
- Kontakt osoba
- Dux Nekretnine
- Telefon 1
- + 385 51 518... Prikaži broj
- Telefon 2
- + 385 91 480 ... Prikaži broj
- Adresa
- Tizianova 8
- Rijeka, Hrvatska
Slične nekretnine
PRILIKA! Građevinsko zemljište s dozvolom - Šišan
- 135.000€ 825 m2
Istra, Šišan, poljoprivredno zemljište, 10.624m2
- 176.500€ 10624 m2
JADREŠKI, GRAĐEVINSKO ZEMLJIŠTE
- 79.200€ 636 m2
ISTRA, LIŽNJAN - Prekrasno prostrano građevinsko zemljište!
- 220.000€ 1699 m2
Šišan, srednjovjekovna oaza za adaptaciju blizu mora!
- 220.000€ 466 m2
ISTRA, ŠIŠAN - Poljoprivredno zemljište sa strujom i vodom! PRILIKA
- 250.000€ 4176 m2
Šišan - Poljoprivredno zemljište, 1250m2
- 43.750€ 1250 m2
Istra, Šišan, poljoprivredno zemljište 500m2
- 35.000€ 500 m2