MATULJI, STAN U NOVOGRADNJI S PARKINGOM

Pavlovac, Matulji

459.000€

3 350 €/m2

Novo 4
Cetvorosoban stan, Matulji, Pavlovac, prodaja, 459000 €, 137 m2
Cetvorosoban stan, Matulji, Pavlovac, prodaja, 459000 €, 137 m2
Cetvorosoban stan, Matulji, Pavlovac, prodaja, 459000 €, 137 m2
Cetvorosoban stan, Matulji, Pavlovac, prodaja, 459000 €, 137 m2
Tip

Stan

Površina

137 m2

Struktura

4

Detalji

Tip
Stan
Struktura
4
Cijena
459.000€
Površina
137 m2 (3 350 €/m2)
Kat
1
Grijanje
Grijalice i radijatori na struju
Terasa
Da
Udaljenost od mora
300m
Parkirno mjesto
Da
Ažuriran
11.12.2025
ID
73770

Opis

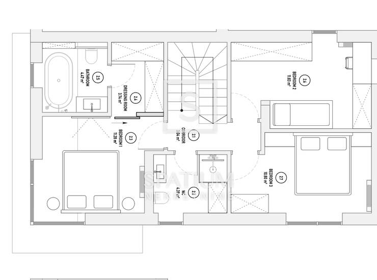
MATULJI, PAVLOVAC, u ponudi je dvoetažni stan u novogradnji na odlično prometno povezanoj lokaciji. Cijela prva etaža ima otvoreni koncept prostorije koja dijeli funkciju kuhinje, blagovaonice i dnevnog boravka iz kojeg je izlaz na balkon s kojeg se pruža predivan pogled na more. Unutrašnjim stubištem dolazimo do druge etaže na kojoj se nalaze tri spavaće sobe. Jedna spavaća soba ima walk-in ormar te en-suite kupaonicu, dok je druga kupaonica smještena na središnjem djelu etaže. Prostorije su ispunjene obiljem prirodnog svjetla zahvaljujući orijentaciji objekta i velikim staklenim površinama. Unutrašnje stubište vodi nas na prostranu krovnu terasu koja je stvorena za druženje s prijateljima i obitelji.

Stanu pripadaju dva vanjska parking mjesta. U ovoj fazi radova moguć je odabir parketa i keramike. U kupaonicama i radnom djelu kuhinje predviđeno je podno grijanje, dok je za ostatak prostorija predviđeno korištenje Samsung klima uređaja. Kupoprodajna cijena uključuje PDV i kupci nemaju obvezu plaćanja poreza na promet nekretnina. Stan se prodaje po sistemu "ključ u ruke" bez namještaja. Planirani rok dovršetka radova je krajem svibnja 2025. godine.

MATULJI, zeleno-plavo zaleđe Opatijske rivijere, povijesnu razmeđu putova i mjesto odmora modernog turizma. Ovdje su u prošlosti mljekarice hodale stoljetnim putovima, zvončari tjerali zimu i nagoviještali proljeće, a ugledni putnici dolazili vlakom na Opatijsku rivijeru.
Izuzetno mirno

Kontakt info

Spatium Nekretnine
Kontakt osoba
Vedran Prica
Telefon 1
+ 385 51 272... Prikaži broj
Telefon 2
+ 385 95 812 ... Prikaži broj
Adresa
Šetalište Andrije Kačića Miošića 5
Rijeka Centar
Rijeka, Hrvatska

Kontakt forma

Slične nekretnine