OPATIJA, IKA - Dvoetažni stan u luksuznoj novogradnji blizu mora
Ika, Opatija
520.000€
3 611 €/m2
Tip
Stan
Površina
144 m2
Struktura
4
Detalji
- Tip
- Stan
- Struktura
- 4
- Cijena
- 520.000€
- Površina
- 144 m2 (3 611 €/m2)
- Kat
- Prizemlje
- Grijanje
- Podno grijanje/Dizalica topline
- Terasa
- Da
- Udaljenost od mora
- 350m
- Ažuriran
- 20.11.2025
- ID
- 86267
Opis
OPATIJA, IKA -Dvoetažni stan u luksuznoj novogradnji s pogledom na more
U mirnom, zelenilom okruženom dijelu iznad Ike, svega mekoliko minuta hoda do mora, u tijeku je izgradnja moderne stambene zgrade s ukupno tri ekskluzivne stambene jedinice. Zgrada je pažljivo projektirana kako bi svakom stanu pružila maksimalnu privatnost, otvoren pogled na more te funkcionalan raspored koji odgovara suvremenom načinu života.
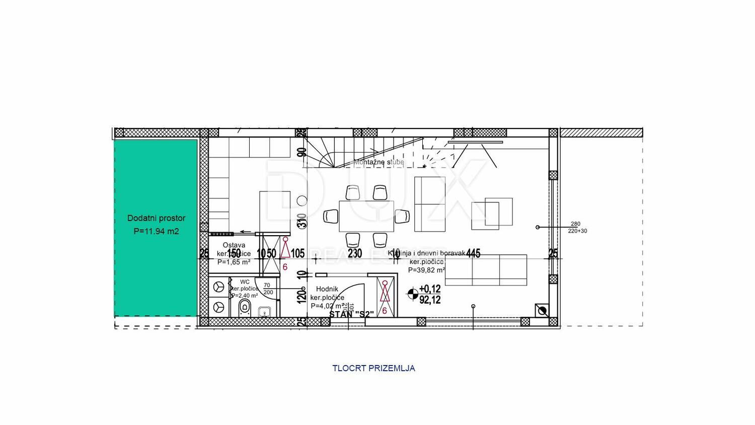
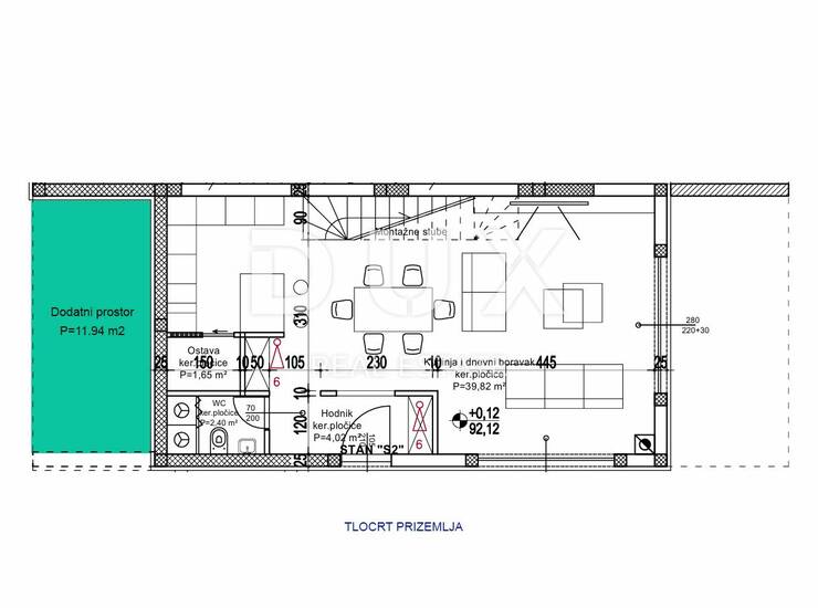
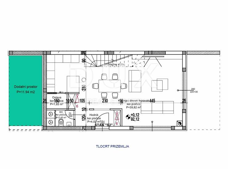
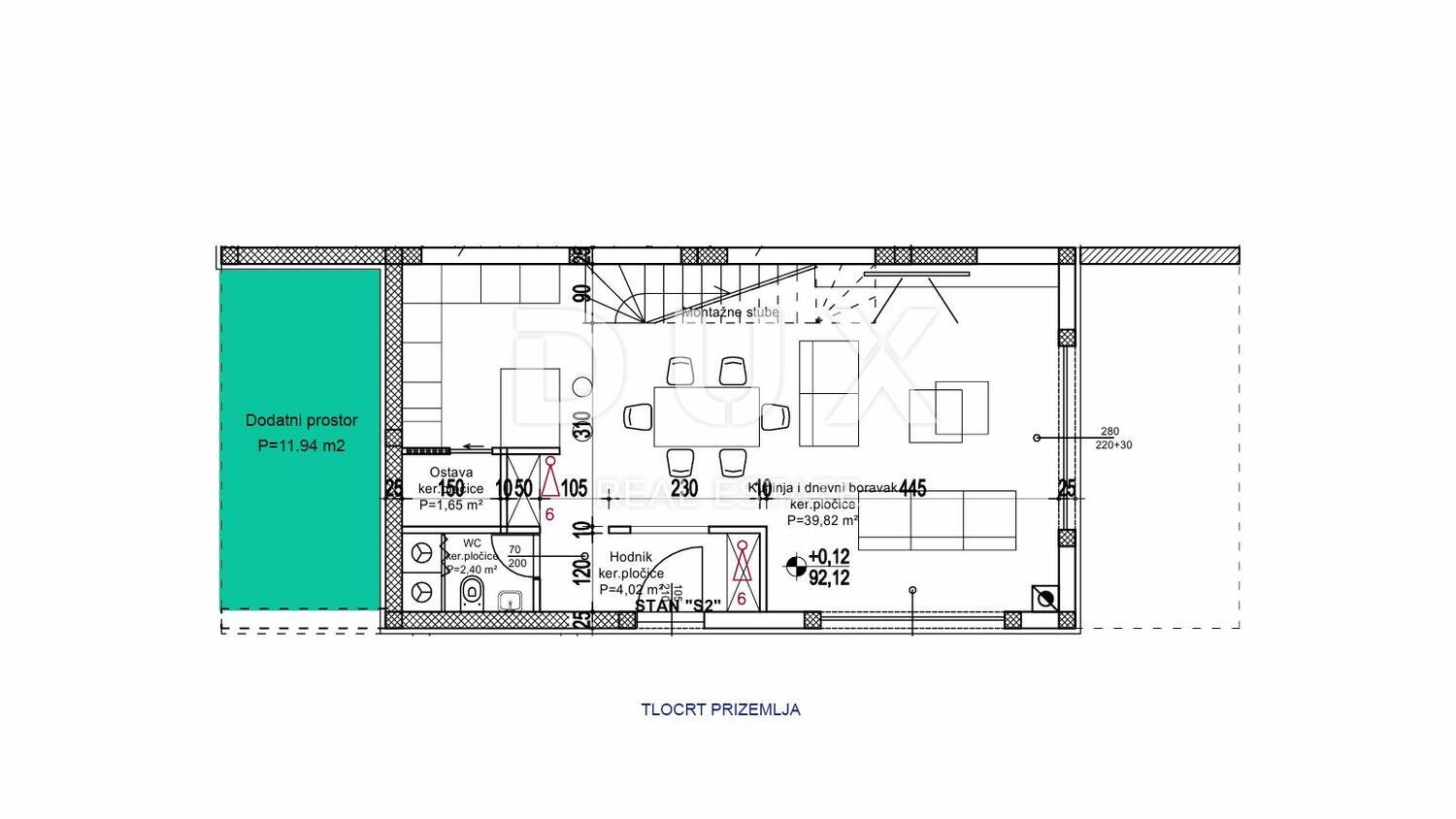
U ponudi je prostrani dvoetažni stan koji se proteže kroz prizemlje i prvi kat, uključujući vanjske površine i dva privatna parkirna mjesta.
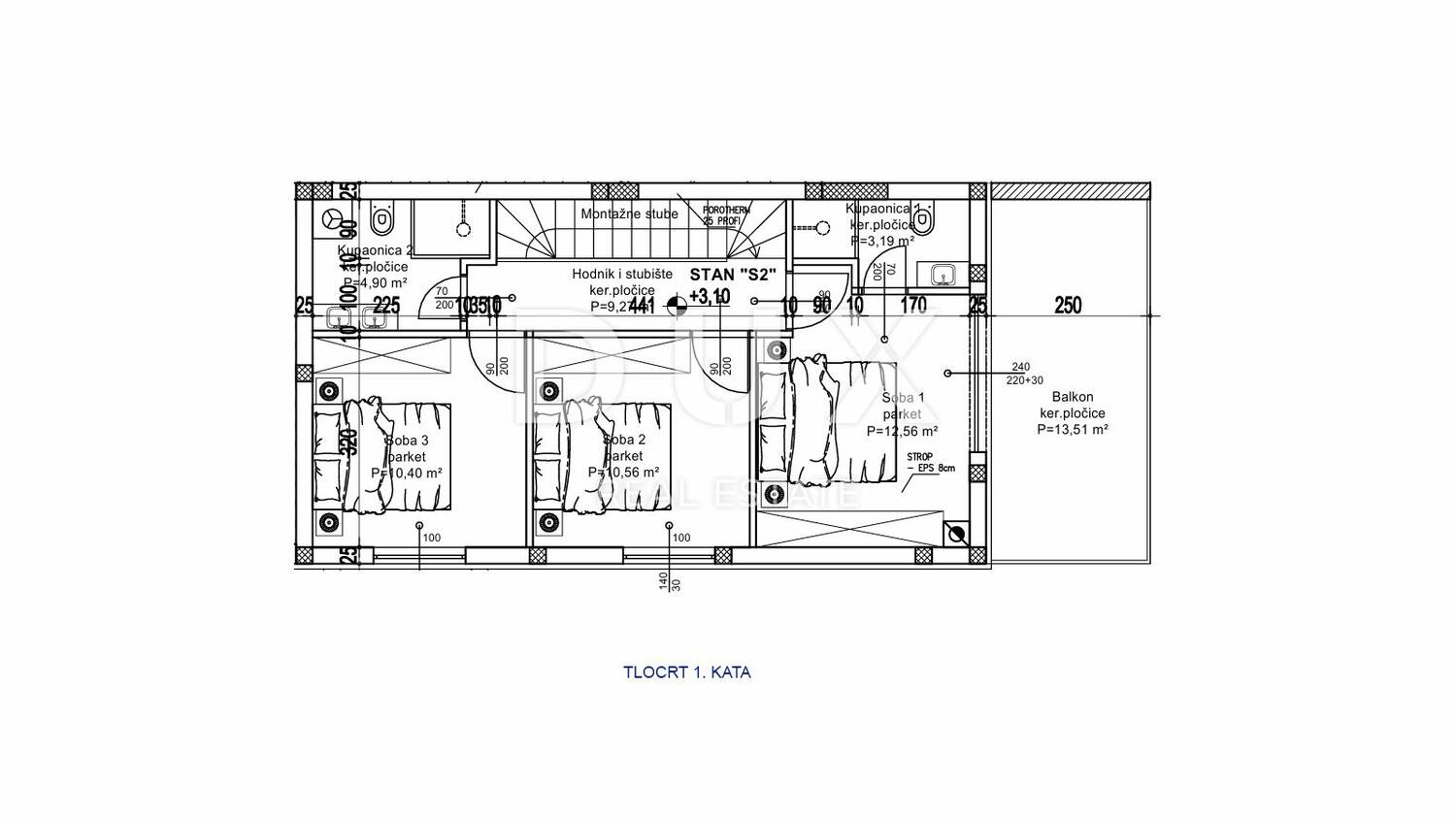
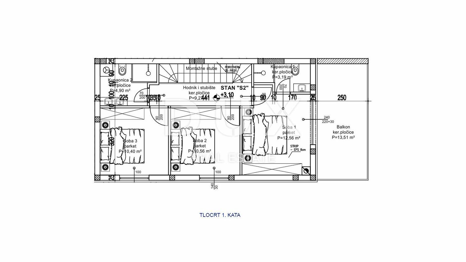
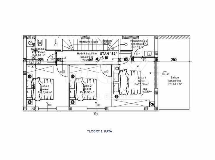
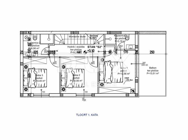
Raspored prostora:
Prizemlje: prostrana terasa, djelomično natkrivena, dnevni boravak s kuhinjom i blagovaonicom, hodnik, toalet i ostava, dodatna višefunkcionalna prostorija
Kat: tri spavaće sobe, dvije kupaonice, hodnik i natkriveni balkon s pogledom na more
Na katu je predviđen i prostor za privatnu saunu, čime se dodatno podiže razina komfora.
Velike terase na obje etaže dodatno proširuju dnevni prostor, a posebno je zanimljiva mogućnost ugradnje ljetne kuhinje i nadzemnog bazena, za što su već pripremljene sve instalacije – savršeno za one koji žele stvoriti svoju privatnu vanjsku oazu za opuštanje i druženje.
Tehnička oprema i mogućnosti prilagodbe:
Podno grijanje u cijelom stanu (osim spavaćih soba gdje je predviđen parket)
Dizalica topline i fan-coil sustav za grijanje i hlađenje
Multisplit klima uređaji u svim sobama
Kupcima u ranoj fazi gradnje omogućuje se izb
Kontakt info
- Agencija
-
DUX NEKRETNINE
- Kontakt osoba
- Dux Nekretnine
- Telefon 1
- + 385 51 518... Prikaži broj
- Telefon 2
- + 385 91 480 ... Prikaži broj
- Adresa
- Tizianova 8
- Rijeka, Hrvatska
Slične nekretnine
OPATIJA, IKA, NOVOGRADNJA S VELIKOM TERASOM I POGLEDOM
- 520.000€ 145 m2
OPATIJA, IKA, NOVOGRADNJA S VELIKOM TERASOM I POGLEDOM
- 520.000€ 141 m2
OPATIJA, IKA - Dvoetažni stan u luksuznoj novogradnji blizu mora
- 520.000€ 145 m2
Opatija, Ika- okolica, moderna novogradnja, dvoetažni stan
- 520.000€ 145 m2
Opatija, Ika- okolica, moderna novogradnja, dvoetažni stan
- 520.000€ 141 m2
IKA - 2S+DB novogradnja s pogledom na more
- 500.000€ 98 m2
OPATIJA, IKA, NOVOGRADNJA S VELIKOM TERASOM I POGLEDOM NA MORE
- 500.000€ 127 m2
OPATIJA, IKA, NOVOGRADNJA S VELIKOM TERASOM I POGLEDOM NA MORE
- 500.000€ 133 m2
OPATIJA, IKA - Dvoetažni stan u luksuznoj novogradnji blizu mora
- 500.000€ 131 m2
OPATIJA, IKA - Dvoetažni stan u luksuznoj novogradnji blizu mora
- 500.000€ 127 m2
Opatija, Ika- okolica, moderna novogradnja, dvoetažni stan
- 500.000€ 127 m2