POREČ - građevinsko zemljište 1000m2 S GRAĐEVNOM DOZVOLOM!!!, 500m od mora
Poreč
415.000€
415 €/m2
Tip
Zemljiste
Površina
1000 m2
Detalji
- Tip
- Zemljiste
- Cijena
- 415.000€
- Površina
- 1000 m2 (415 €/m2)
- Ažuriran
- 10.03.2026
- ID
- 74511
Opis
POREČ- građevinsko zemljište 1000m2 S GRAĐEVNOM DOZVOLOM!!!, 500m od mora
Građevinsko zemljište je udaljeno cca 500 m zračne linije od mora.
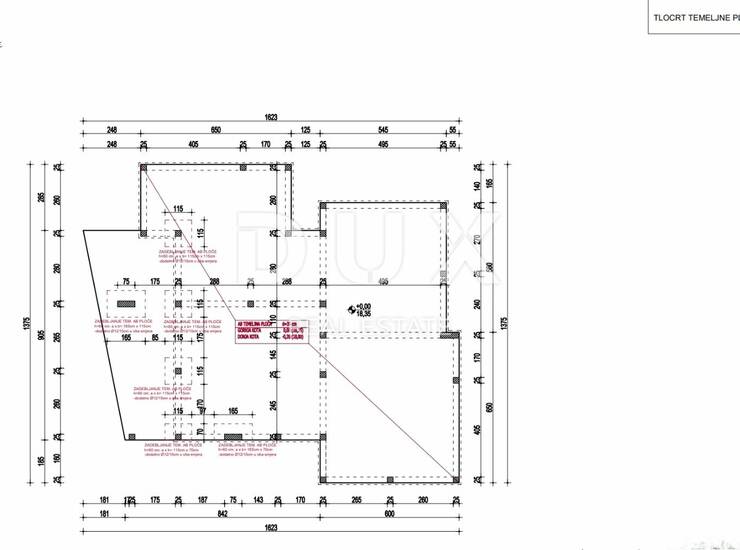
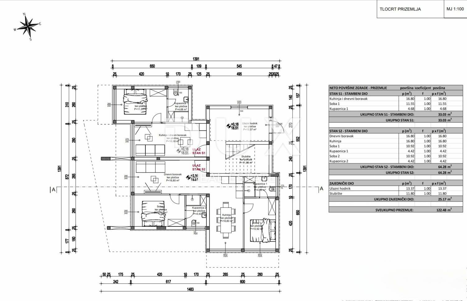
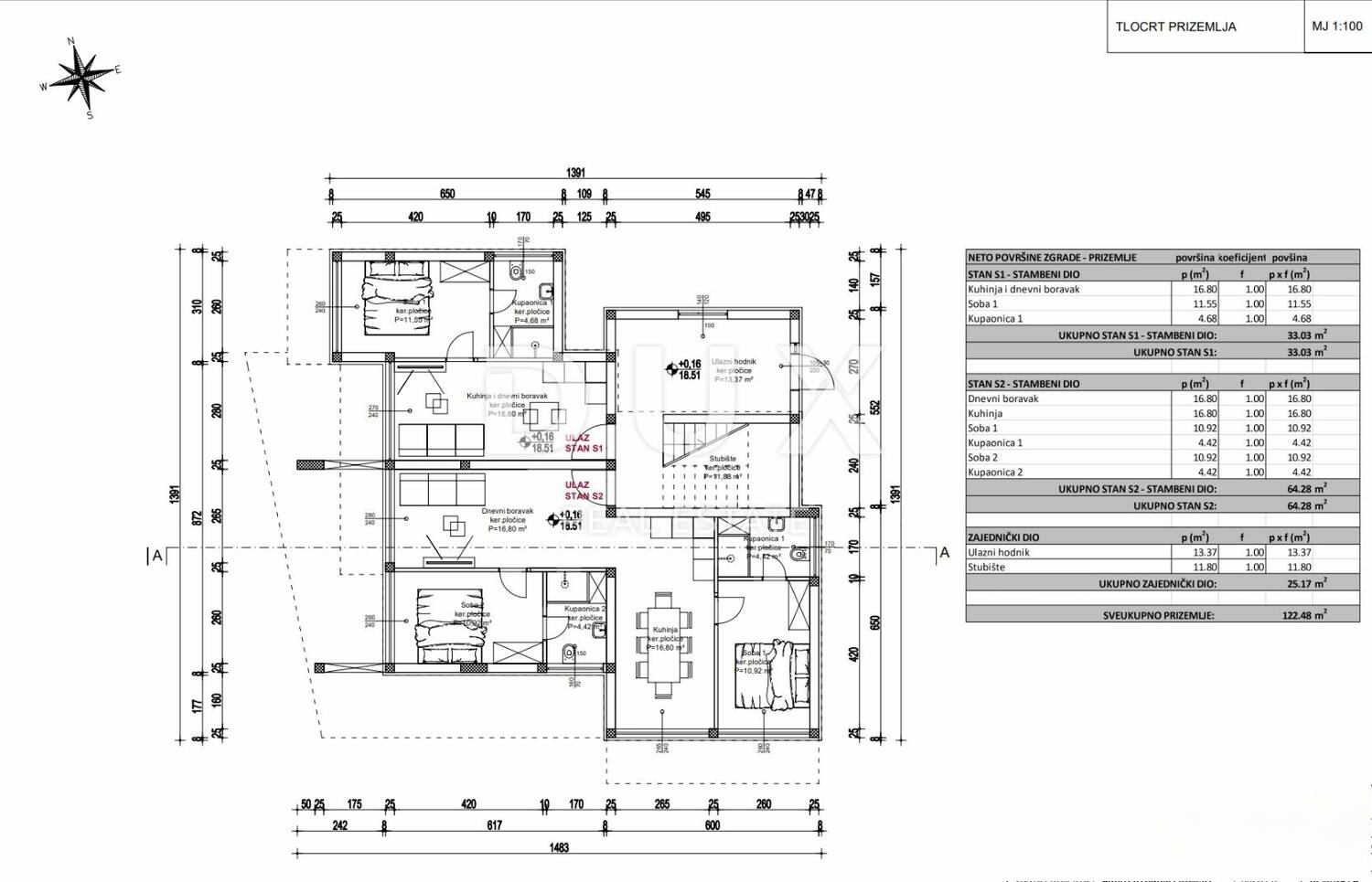
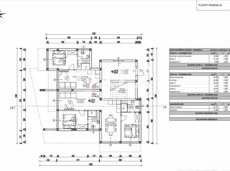
Za teren postoji građevna dozvola za zgradu od 5 stambenih jedinica + bazen - s gradnjom zgrade se može početi odmah!
Pgč - površina građ. čestice = 997,00 m
Pzg - površina ispod zgrada = 194,33 + 35,63 + 31,43 = 261,39 m
Brp - brutto površina zgrada = 399,97 m + 31,43 m = 431,40 m
Kig - koefic. izgrađenosti = 261,39 / 997,00 = 0,26 < 0,30
Kis - koefic. iskoristivosti = 431,40 / 997,00 = 0,43< 1,20
ZP - zelena površina = 416,40/ 997,00 = 0,42 (42%)
Teren je konfiguracijski potpuno ravan.
Teren se nalazi na tihoj i mirnoj poziciji i odmah do asfaltiranog puta.
Sve komunalije do terena.
Čisto i uredno vlasništvo.
Teren je očišćen i spreman za gradnju.
Buduće izgrađena nekretnina ne bi imala pogled na more iz prizemlja, ali s prve etaže pružao bi se pogled na more.
Dobra prilika za investitore koji se bave izgradnjom stambenih zgrada–stanova-apartmana,
Ova nekretnina je udaljena 550m zračne linije od mora, odnosno 1km automobilom (cca 3 min).
NEKRETNINA NA LIJEPOJ LOKACIJI S VELIKIM POTENCIJALOM – ZA OZBILJNE INVESTITORE!!!
POREČ
Poreč je smješten na zapadnoj obali poluotoka Istre. Zbog mediteranske klime, prirodnih ljepota i očuvane kulturne baštine idealno je mjesto za boravak tijekom cijele godine. Gradu pripadaju 53 okolna naselja gdje se nalaze moderne vile s bazeni
Kontakt info
- Agencija
-
DUX NEKRETNINE
- Kontakt osoba
- Dux Nekretnine
- Telefon 1
- + 385 51 518... Prikaži broj
- Telefon 2
- + 385 91 480 ... Prikaži broj
- Adresa
- Tizianova 8
- Rijeka, Hrvatska
Slične nekretnine
Poreč, građevinsko zemljište na traženoj lokaciji!
- 415.000€ 1028 m2
Poreč, prostrano građevinsko zemljište
- 418.000€ 2200 m2
Poreč, okolica, 4 zemljišta za izgradnju kuća!
- 420.000€ 3366 m2
Poreč, okolica, zemljište sa projektom na 100 m od mora!
- 420.000€ 376 m2
Jedinstvena pozicija zemljišta u prirodi, okružena šumom, Istra, Poreč
- 410.000€ 12550 m2
Poreč, okolica, prostrano građevinsko zemljište u mirnom mjestu!
- 426.500€ 3612 m2
građevinsko zemljište okolica Poreča...
- 390.960€ 2896 m2
Poreč – ekskluzivno zemljište 1.265 m², 500 m od mora!
- 442.750€ 1265 m2
ISTRA,POREČ - Prekrasno građevinsko zemljište 200m od mora
- 385.000€ 616 m2
Poreč, okolica, 4 zemljišta za izgradnju kuća!
- 445.000€ 4923 m2
Prodaje se zemljište s građevinskom dozvolom – Tar, Poreč
- 450.000€ 120000 m2