Kaštanjer - Prekrasan stan s 3 SS, novogradnja!
Kaštanjer, Pula
358.500€
3 200 €/m2
Tip
Stan
Površina
112 m2
Struktura
4
Detalji
- Tip
- Stan
- Struktura
- 4
- Cijena
- 358.500€
- Površina
- 112 m2 (3 200 €/m2)
- Kat
- 1
- Garaža
- Da
- Ažuriran
- 21.01.2026
- ID
- 95174
Opis
Istra, Pula
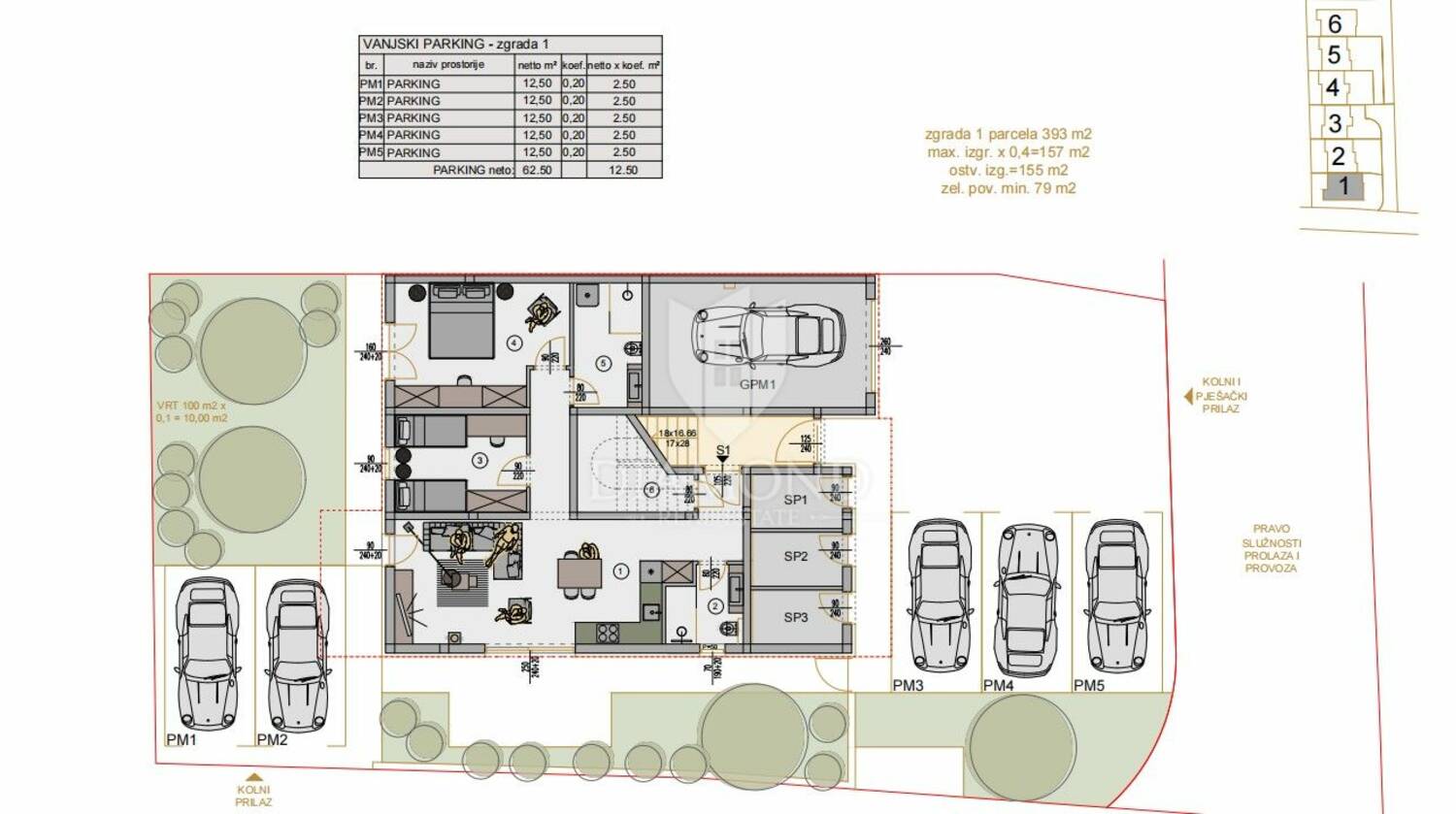
Na atraktivnoj lokaciji u Puli, u naselju Kaštanjer, u tijeku je izgradnja modernog stambenog kompleksa koji se sastoji od 6 manjih zgrada, svaka s 4 stana. Završetak gradnje planiran je krajem 2026. godine.
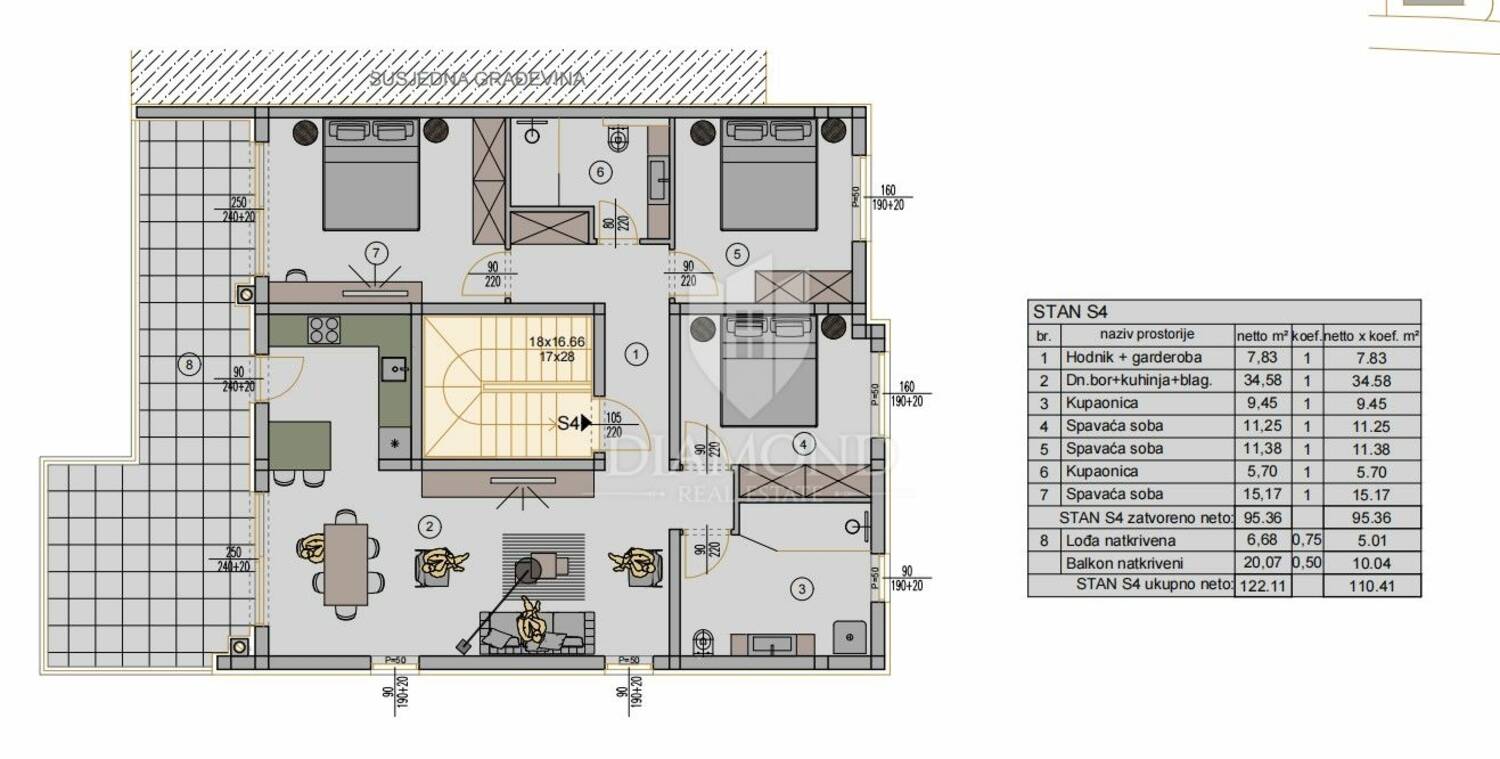
Na prodaju je stan na drugom katu ukupne površine 112 m2. Stan se sastoji od: tri spavaće sobe, dvije kupaonice, kuhinje s blagovaonicom i dnevnim boravkom s izlazom na prekrasnu terasu od 20 m2. Stan je opremljen: troslojnom PVC stolarijom s komarnicima i električnim roletama, podnim grijanjem u kupaonici, klimom za hlađenje i grijanje. Stanu pripadaju dva parkirna mjesta, koja se dodatno naplaćuju, a postoji i mogućnost kupnje i garažnog mjesta. U cijenu stana uračunata je ostava.
Novogradnja, mirno okruženje, odlična povezanost s gradom i svim sadržajima – idealna prilika!
ID KOD AGENCIJE: 1041-459
Kontakt info
- Agencija
-
Diamond Real Estate
- Kontakt osoba
- Robert Pinzan
- Telefon 1
- + 385 (0)52 210... Prikaži broj
- Adresa
- Partizanska 5A
- Poreč, Hrvatska
Slične nekretnine
ISTRA, PULA - Trosobni stan u novogradnji na top lokaciji
- 289.000€ 93 m2
ISTRA, PULA- Stan u novogradnji na mirnoj lokaciji!
- 275.400€ 57 m2
ISTRA, PULA Prekrasan obiteljski stan na odličnoj lokaciji!
- 265.000€ 101 m2
ISTRA, PULA - 3S+DB stan u centru s parkingom 83 m2
- 260.000€ 83 m2
Istra, Pula, 61.85m2, uređen stan s dvije lođe
- 260.000€ 61 m2
ISTRA, PULA- Stan u novogradnji na mirnoj lokaciji!
- 255.000€ 56 m2
ISTRA, PULA - Stan u novogradnji na mirnoj lokaciji!
- 255.000€ 56 m2
ISTRA, PULA - Stan u novogradnji na mirnoj lokaciji!
- 244.800€ 54 m2
Kaštanjer – Novogradnja, stan s vrtom u prizemlju!
- 231.000€ 72 m2
Istra, Pula - Kaštanjer, 58.83m2, 1s+db, lođa
- 205.000€ 58 m2