PRODAJE SE STAN – STAN 1, PRIZEMLJE – PULA Na prodaju je stan u prizem...
Valdebek, Pula
191.500€
3 088 €/m2
Tip
Stan
Površina
62 m2
Struktura
2
Detalji
- Tip
- Stan
- Struktura
- 2
- Cijena
- 191.500€
- Površina
- 62 m2 (3 088 €/m2)
- Površina zemljišta
- 0
- Kat
- p
- Ukup. katova
- 3
- Udaljenost od mora
- 0m
- Parkirno mjesto
- Da
- Ažuriran
- 24.01.2026
- ID
- 99997
Opis
PRODAJE SE STAN – STAN 1, PRIZEMLJE – PULA
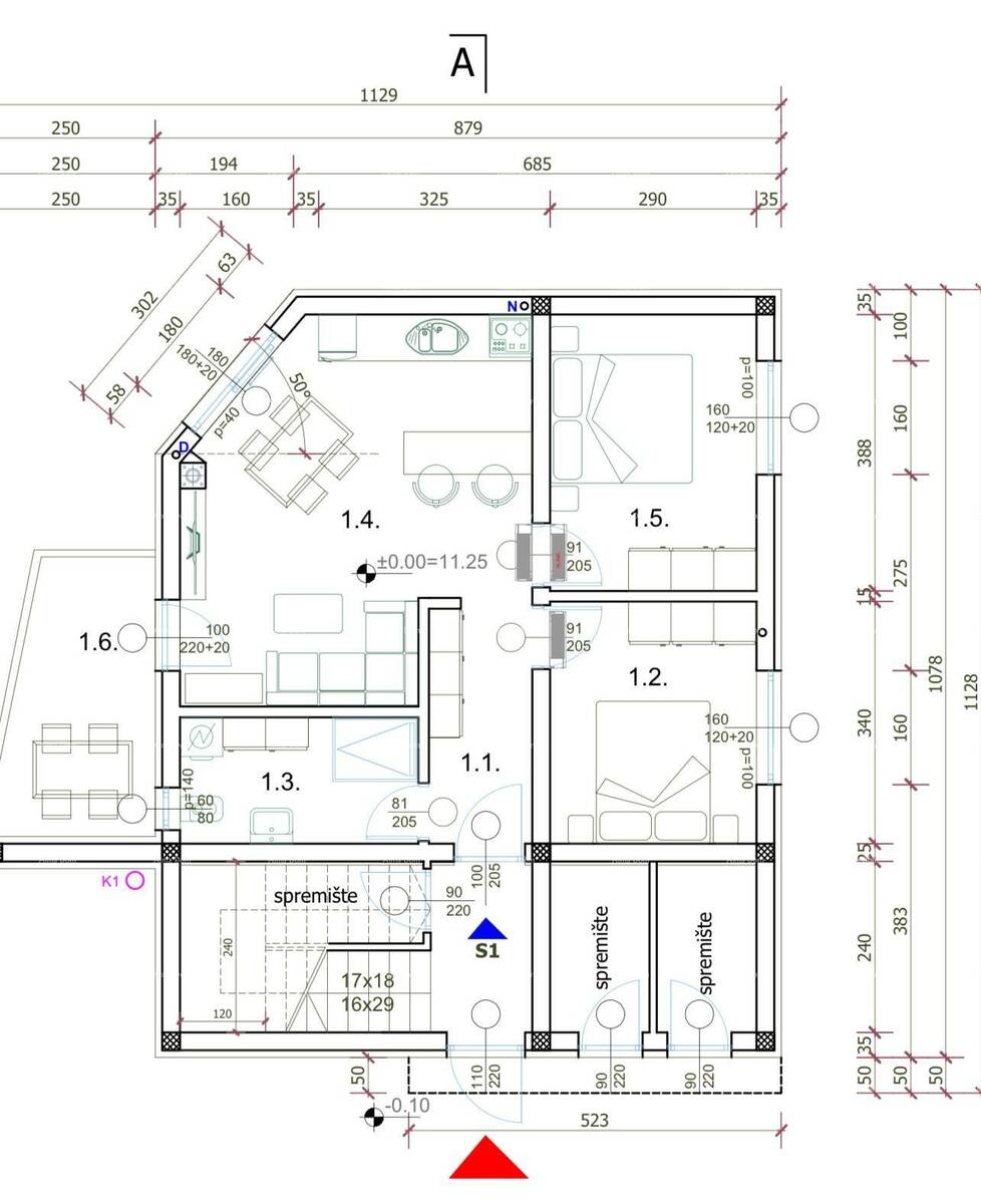
Na prodaju je stan u prizemlju (Stan 1) u modernoj novogradnji s ukupno tri stambene jedinice (po jedan stan na svakoj etaži), smještenoj na mirnoj lokaciji u Puli.
Stan se nalazi u prizemlju kvalitetno projektirane manje stambene zgrade, što osigurava mir, privatnost i mali broj susjeda. Zgrada je suvremenog dizajna s ravnim krovom i funkcionalnim rasporedom.
Stan uključuje predprostor, 2 spavaće sobe, kupaonu, kuhinju s dnevnim boravkom i blagavaonom i natkrivenu terasu.
Stanu pripada i parkirno mjesto, uključeno u cijenu.
Spremište stana, kao i vrt uz dodatnu nadoplatu.
Prizemni položaj čini ovu nekretninu posebno pogodnom za obitelji, starije osobe ili kao investiciju za dugoročni najam.
Lokacija:
Nekretnina se nalazi u mirnom stambenom okruženju s dobrom prometnom povezanošću i u blizini svih potrebnih sadržaja kao što su trgovine, škole i ostala infrastruktura.
Za dodatne informacije, molimo kontaktirajte:
Azra
+ 385 91 611 ... Prikaži broj
+ 385 98 420... Prikaži broj
azra@almadominvest.com
Kontakt info
- Agencija
-
Alma Dom
- Kontakt osoba
- Alma Dom
- Telefon 1
- + 385 52 213... Prikaži broj
- Telefon 2
- + 385 52 210... Prikaži broj
- Adresa
- Istarska 10
- Pula, Hrvatska
Slične nekretnine
ISTRA, PULA - Stan 2S+DB 64m2 blizu centra
- 195.000€ 64 m2
Istra, Pula, Valdabek, 2s+db, 54.98m2, terasa
- 195.500€ 54 m2
ISTRA, PULA - Najtraženija vrsta stana na super lokaciji!
- 186.131€ 58 m2
Pula, Valdebek - Stan ZG2A, 58m2,2 sobe, terasa, parking
- 185.000€ 58 m2
ISTRA, PULA - Dvosoban stan s terasom u blizini centra!
- 181.051€ 59 m2
Pula - stan, 56m2, 2 sobe, prizemlje
- 180.000€ 56 m2
Pula, Valdebek - Stan ZG2C, 59m2,2 sobe, terasa, parking
- 180.000€ 59 m2
ISTRA, PULA - 1SS+DB U NOVOGRADNJI
- 179.200€ 46 m2
ISTRA, PULA - 2SS+DB U NOVOGRADNJI
- 207.350€ 57 m2
ISTRA, PULA - Stan s dvije spavaće sobe u novom projektu!
- 211.900€ 65 m2