PULA, TROSOBAN STAN NA 2. KATU, STAN D - ZGRADA A
Veli vrh, Pula
415.000€
3 705 €/m2
Tip
Stan
Površina
112 m2
Struktura
4
Detalji
- Tip
- Stan
- Struktura
- 4
- Cijena
- 415.000€
- Površina
- 112 m2 (3 705 €/m2)
- Kat
- 2
- Udaljenost od mora
- 3000m
- Garaža
- Da
- Parkirno mjesto
- Da
- Ažuriran
- 21.10.2025
- ID
- 92566
Opis
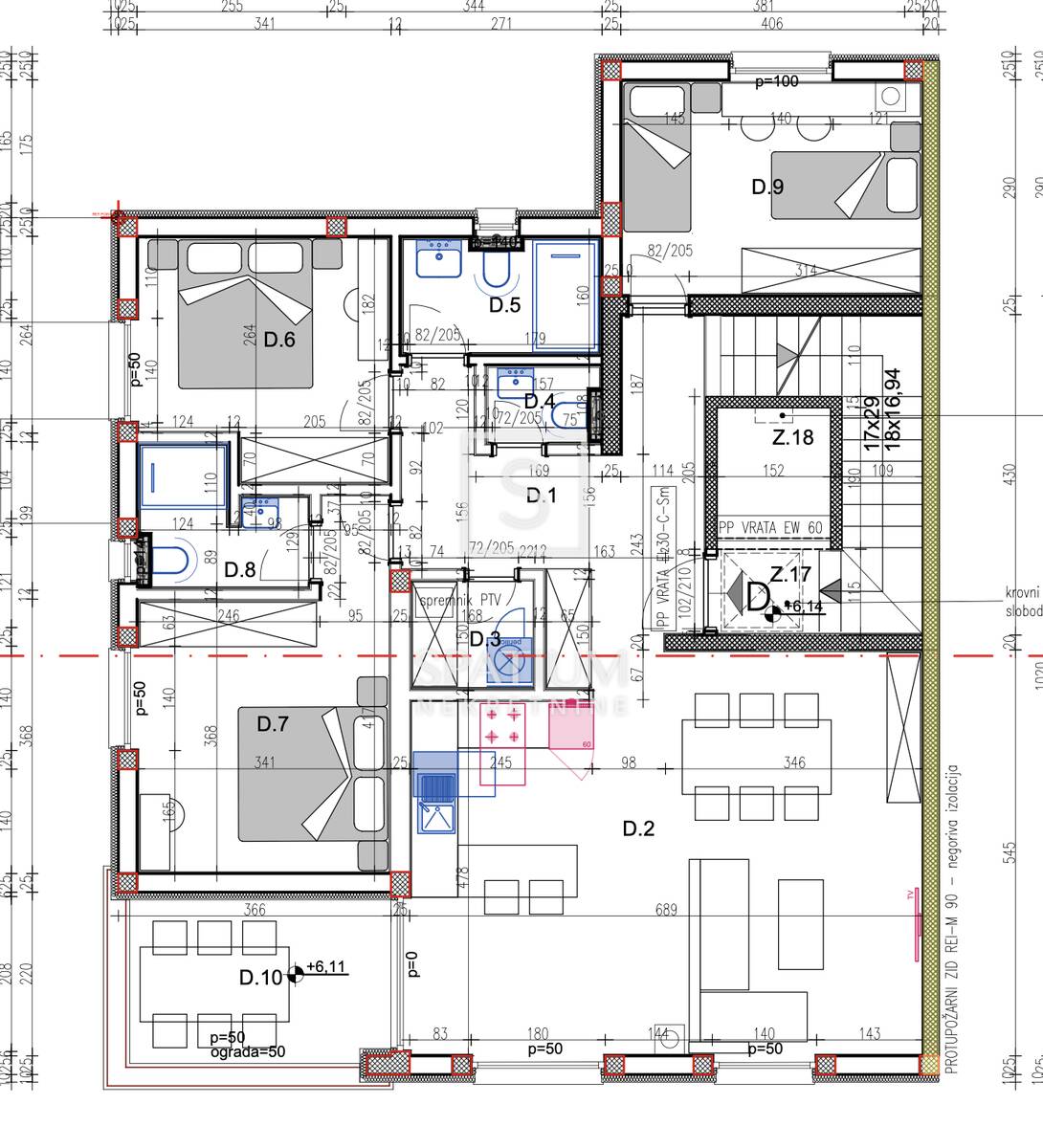
PULA, U ponudi imamo stan na 2. katu moderne zgrade s ukupno četiri stana. Stan odlikuje izuzetno funkcionalan raspored prostorija i kvalitetna izvedba uz korištenje suvremenih materijala i tehnologija.
Stan se sastoji od:
- hodnika – 12.46 m²
- kuhinje s blagovaonicom i dnevnim boravkom – 35.18 m²
- vešeraj - 2.39 m2
- WC - 1.60 m2
- kupaonice – 4.17 m²
- spavaće sobe – 10.16 m2
- spavaće sobe -13.54 m2
- kupaonice - 3.64 m2
- spavaće sobe - 11.49 m2
- spremišta - 1.22 m2
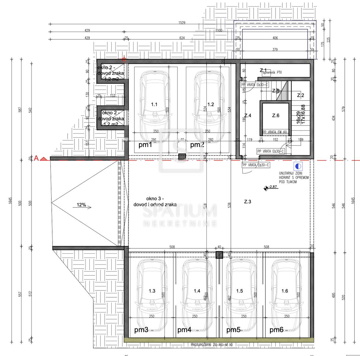
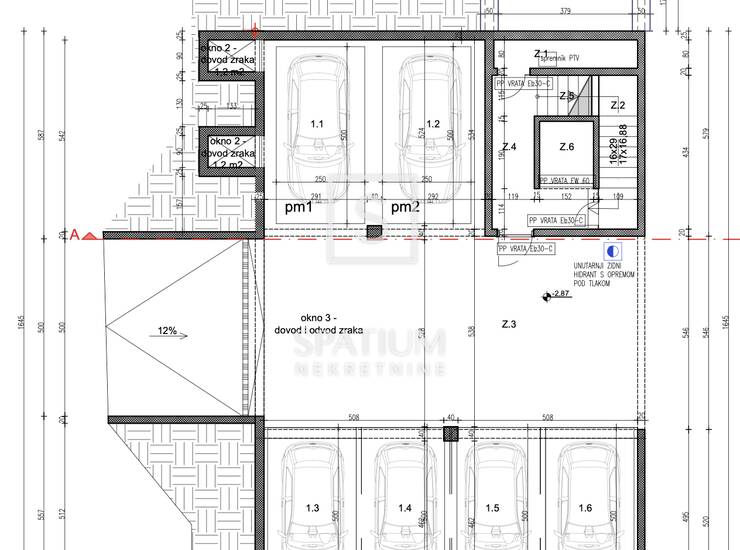
- garažnog parkirnog mjesta – 6.25 m2
- garažnog parkirnog mjesta 6.88 m2
Stan će biti opremljen podnim grijanjem na dizalicu topline te klima inverterima u svim prostorijama, što omogućuje visoku energetsku učinkovitost i udobnost tijekom cijele godine.
Vanjska stolarija uključuje ALU klizne stijene i PVC prozore s troslojnim staklom, električnim roletnama i komarnicima, čime je osigurana izvrsna toplinska i zvučna izolacija.
Veli Vrh je jedan od najtraženijih i najugodnijih dijelova Pule za život. Smješten je na svega nekoliko minuta vožnje od samog centra grada, a ipak pruža mir, privatnost i osjećaj obiteljskog okruženja.
U ovom kvartu prevladavaju nove zgrade i obiteljske kuće, a stanovnici cijene dobru prometnu povezanost, blizinu svih važnih sadržaja te ugodnu atmosferu. U neposrednoj blizini nalaze se trgovine, škola, vrtić, autobusna stanica, restorani, kafići te brojne šetnice i biciklističke staze. More i prekrasne plaže udaljene su svega
Kontakt info

- Agencija
-
Spatium Nekretnine
- Kontakt osoba
- Vedran Prica
- Telefon 1
- + 385 51 272... Prikaži broj
- Telefon 2
- + 385 95 812 ... Prikaži broj
- Adresa
- Šetalište Andrije Kačića Miošića 5
- Rijeka Centar
- Rijeka, Hrvatska
Slične nekretnine

ISTRA, PULA - Moderna novogradnja! Penthouse!
- 415.000€ 112 m2

PULA, TROSOBAN STAN NA 2. KATU, STAN D - ZGRADA B
- 398.000€ 113 m2

ISTRA, PULA - Moderna novogradnja! Penthouse!
- 398.000€ 113 m2

PULA, TROSOBAN STAN PRIZEMLJE, STAN A - ZGRADA A
- 395.000€ 111 m2

ISTRA, PULA - Moderna novogradnja! Prizemlje s dvorištem!
- 395.000€ 111 m2

ISTRA, PULA - Moderna novogradnja! Prizemlje s dvorištem!
- 395.000€ 113 m2

ISTRA, PULA - Penthouse 133,27 m2 u blizini mora!
- 395.000€ 133 m2

ISTRA, PULA - Penthouse s pogledom na more i Brijune
- 365.000€ 120 m2

ISTRA, PULA - Penthouse 117,75 m2 u blizini mora!
- 363.000€ 117 m2

ISTRA, PULA - Novogradnja! Tražena lokacija!
- 345.000€ 110 m2

PULA, STAN SA 3 SPAVAĆE SOBE 2. KAT - B4
- 344.000€ 110 m2