RIJEKA, CENTAR – Gospodski stan s projektom za 2 stambene jedinice! Investici
Centar, Rijeka
230.000€
2 346 €/m2
Tip
Stan
Površina
98 m2
Struktura
5+
Detalji
- Tip
- Stan
- Struktura
- 5+
- Cijena
- 230.000€
- Površina
- 98 m2 (2 346 €/m2)
- Kat
- 1
- Udaljenost od mora
- 200m
- Ažuriran
- 10.04.2026
- ID
- 106021
Opis
RIJEKA, CENTAR – Gospodski stan s projektom za 2 stambene jedinice! Investicija na elitnoj lokaciji!
Rijeka, grad bogate industrijske i kulturne baštine, nositelj titule Europske prijestolnice kulture, oduvijek je privlačila one koji znaju prepoznati vrijednost urbanog života uz more. Kombinacija arhitekture austrougarskog stila, mediteranskog šarma i suvremene gradske dinamike čini je idealnim okruženjem za život, posao ili ulaganje.
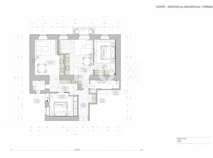
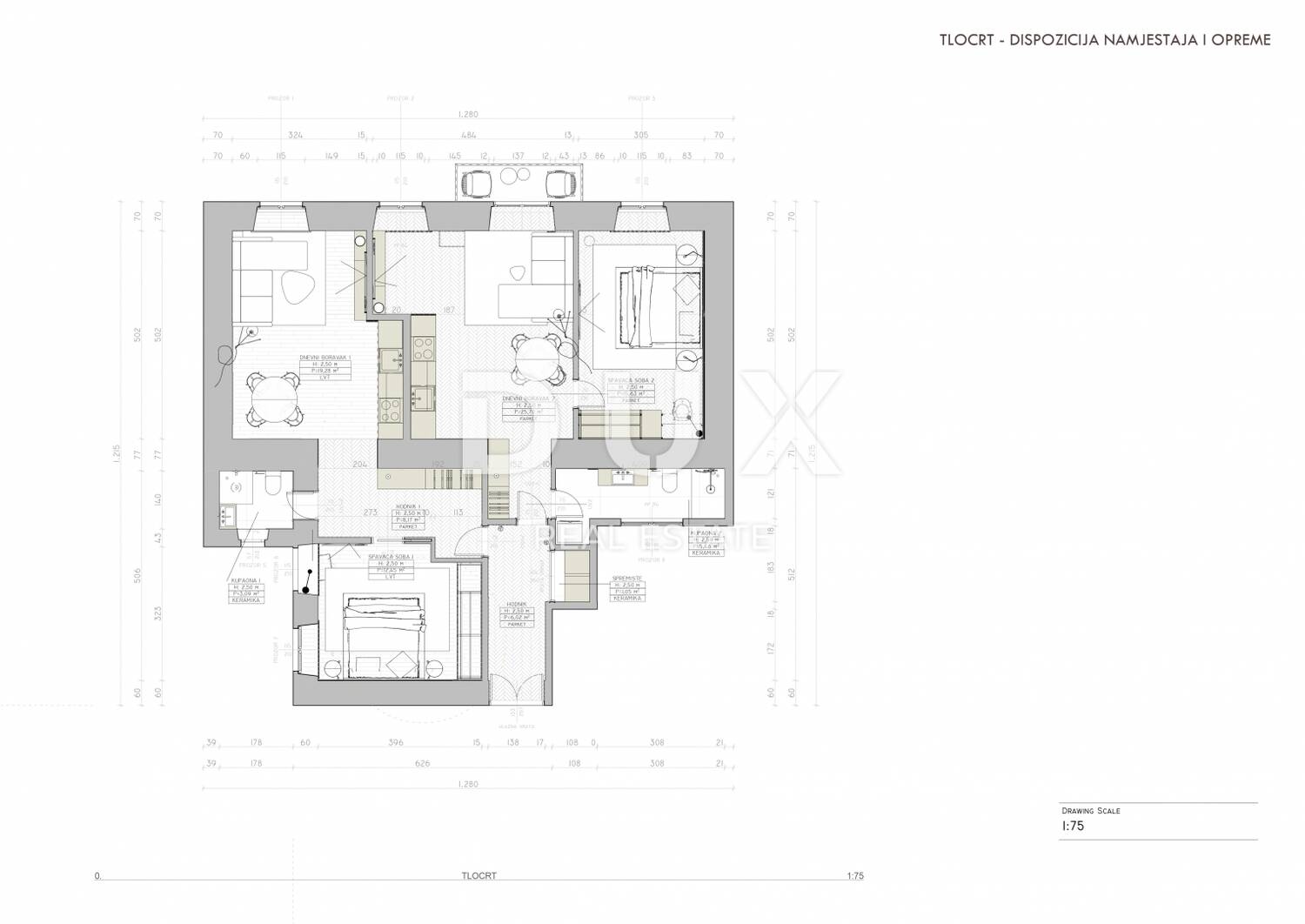
U samom središtu grada, svega nekoliko koraka od tržnice, HNK Ivana pl. Zajca, Korza i obale, smješten je prostrani stan unutar reprezentativne povijesne zgrade. Površine gotovo 100 m², ovaj prostor odiše gospodskim karakterom – visoki stropovi, veliki prozori i bogata prostornost daju mu poseban ugođaj i brojne mogućnosti.
Za ovu nekretninu već postoji izrađen projekt adaptacije kojim se stan može podijeliti na dvije funkcionalne stambene jedinice, što ga čini izuzetno atraktivnim za turistički najam, dugoročno iznajmljivanje ili kombinaciju stanovanja i investicije. Kupnjom putem DUX nekretnina, uz podršku naše arhitektice, moguće su i preinake postojećeg projekta, kao i kompletna razrada interijera i stručni nadzor kroz sve faze realizacije – do zadnjeg detalja.
Ovakve prilike na ovakvoj lokaciji rijetko se pojavljuju. Spoj mikrolokacije, arhitektonske vrijednosti i investicijskog potencijala daje ovoj nekretnini jedinstveno mjesto na tržištu.
Za dodatne informacije ili dogovor za razgledavanj
Kontakt info
- Agencija
-
DUX NEKRETNINE
- Kontakt osoba
- Dux Nekretnine
- Telefon 1
- + 385 51 518... Prikaži broj
- Telefon 2
- + 385 91 480 ... Prikaži broj
- Adresa
- Tizianova 8
- Rijeka, Hrvatska
Slične nekretnine
Rijeka, centar - prodaja 2S+DB stana, 98m2!
- 230.000€ 98 m2
Centar
- 230.000€ 72 m2
Rijeka, Centar, 78.19m2, 70m od Korza
- 230.000€ 78 m2
Rijeka, Centar - strogi, 93.16m2, 3skl
- 229.000€ 93 m2
Rijeka Centar, prostran novouređen stan 4S+DB
- 229.000€ 106 m2
Rijeka, Brajda - prodaja stana u zgradi od 95m2!
- 232.000€ 95 m2
CENTAR GRADA, 3S+DB
- 228.000€ 103 m2
RIJEKA, CENTAR, STAN ZA ADAPTACIJU
- 233.000€ 98 m2
Prostrani stan u centru grada
- 227.000€ 78 m2
Rijeka, centar - stan za investiciju!
- 227.000€ 40 m2
Centar - stan na odličnoj lokaciji!
- 227.000€ 72 m2